
Predaj bytu 3+kk • 79 m² bez realitkyDukelských hrdinů, Praha - Holešovice
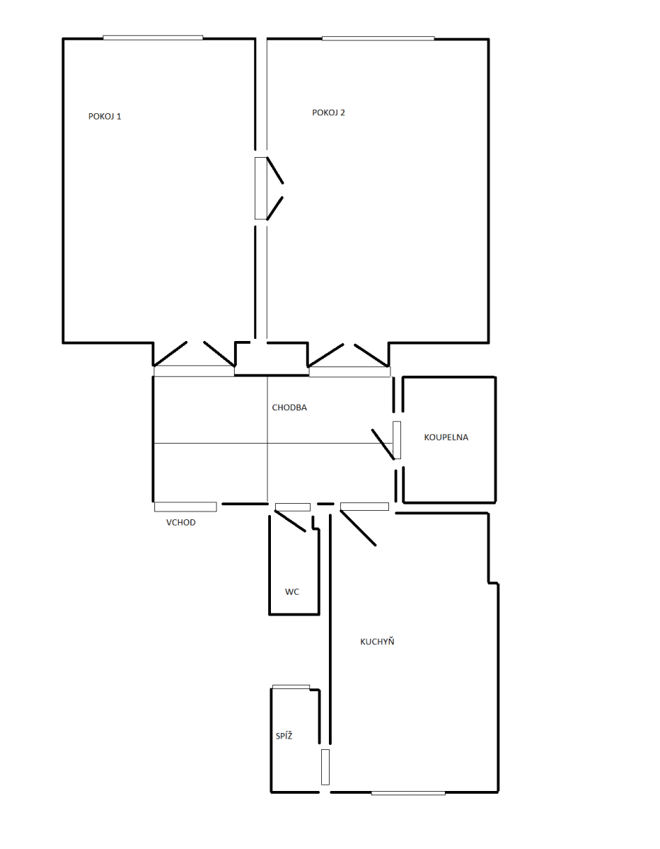
Nabízím k prodeji velmi světlý a prostorný byt 3+kk o výměře 79 m², který se nachází ve cihlové budově. Nemovitost je ve velmi dobrém stavu a je nabízena v osobním vlastnictví. Byt se nachází ve třetím patře z celkem pěti, přičemž budova je vybavena výtahem, což zajišťuje pohodlný přístup do všech pater.
Vysoké stropy, dveře, historické prvky, dřevěné podlahy po celkové rekonstrukci. Dvě místnosti orietovány na západ, ložnice do klidného vnitrobloku. Topení i ohřev vody na elektřinu.
V případě zájmu mě prosím kontaktujte prostřednictvím zpráv na komunikační platformě, kde se domluvíme na osobní prohlídce.
Parametre nehnuteľnosti
| Dostupné od | 1. 5. 2026 |
|---|---|
| Konštrukcia budovy | Tehla |
| Vybavené | Nevybavené |
| Číslo inzerátu | 988483 |
| PENB | G - Mimoriadne nehospodárne |
| Úžitková plocha | 79 m² |
| Stav | Dobrý |
|---|---|
| Dispozícia | 3+kk |
| Poschodie | 3. poschodie z 5 |
| Vlastníctvo | Osobné |
| Umiestnenie | Tichá lokalita |
| Cena za jednotku | 202 532 CZK / m2 |
Čo táto nehnuteľnosť ponúka?
| Výťah |
V okolí nehnuteľnosti nájdete
Stále hľadáte to pravé?
Nastavte si strážneho psa. Ponuky vybrané na mieru dostanete súhrnne 1× denne e-mailom. S Premium profilom máte po ruke rovno 5 strážcov a keď sa niečo objaví, informujú vás obratom.















