
Predaj pozemku • 1271 m² bez realitkyPodkopná Lhota - Podkopná Lhota, Zlínský kraj
Prodej stavebního pozemku 1271 m² s projektem RD, projektu vjezdu a vydaným stavebním povolením – Podkopná Lhota u Zlína. Pozemek je připraven k okamžité výstavbě rodinného domu. Inženýrské sítě- voda, elektřina– jsou na hranici pozemku.
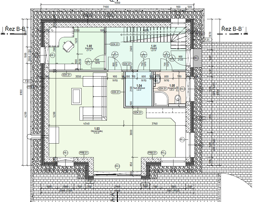
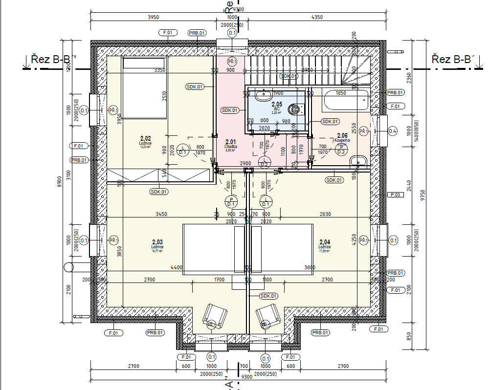
Součástí prodeje je hotový projekt zděného patrového rodinného domu o dispozici 5+kk a podlahové ploše 131,4 m², čtvercového půdorysu s valbovou střechou. Zastavěná plocha je 85,3m2 , oběstavený prostor 610m3
Cílem projektu byl návrh domu o co nejmenší ploše základové desky a zároveň co největší podlahové ploše. Tím stavebník ušetří nemalé peníze.
Více o projektu rád poskytnu po prvním kontaktu.
Dále je vyprojektovaný odsouhlasený vjezd z hlavní cesty. Díky platnému stavebnímu povolení, můžete začít stavět bez zbytečného čekání a vyřizování.
Projekt lze samozřejmě změnit podle svých představ dle platné regule obce.
Stavební pozemek o rozloze 1271 m², který je ideálně rovinatý, orientovaný na jih a nachází se v klidné rekreační oblasti s krásnou okolní přírodou. Okolí nabízí lesy, cyklostezky, pěší a dostatek prostoru pro odpočinek. Zároveň výbornou dostupnost do Slušovic, Zlína. Příme autobusové spojení se Zlínem. Ideální volba pro klidné rodinné bydlení s výhodami města na dosah.
Pro více informací či sjednání prohlídky mě neváhejte kontaktovat, jako první kontakt bych poprosil emailem.
Rozumná domluva samozřejmostí.
Parametre nehnuteľnosti
| Dostupné od | 6. 2. 2026 |
|---|---|
| Typ pozemku | Stavebný |
| Umiestnenie | Tichá lokalita |
| Cena za jednotku | 2 274 CZK / m2 |
| Číslo inzerátu | 988456 |
|---|---|
| Vlastníctvo | Osobné |
| Plocha pozemku | 1 271 m² |
V okolí nehnuteľnosti nájdete
Stále hľadáte to pravé?
Nastavte si strážneho psa. Ponuky vybrané na mieru dostanete súhrnne 1× denne e-mailom. S Premium profilom máte po ruke rovno 5 strážcov a keď sa niečo objaví, informujú vás obratom.

















