Predaj kancelárie • 739 m² bez realitkyDönseler Straße 4, , Dolné Sasko
Veľkorysý, zrekonštruovaný komerčný objekt s kancelárskymi, ordinčnými a výrobnými priestormi a s pripojeným bytom v Dickelu.
Budova bola postavená v roku 1955 ako školska budova a v roku 2003 bola komplexne zrekonštruovaná.
Hlavné body:
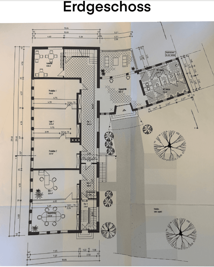
• Približne 647 m² kancelárskych/ordinčných priestorov
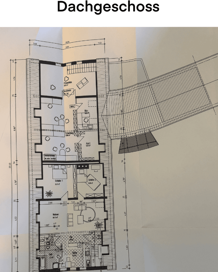
• Približne 92–107 m² pripojeného bytu
• 3 poschodia (suterén, prízemie, nadzemie)
• Ústredné kúrenie (plyn)
• 10 parkovacích miest na vlastnom dvore
• Veľkorysý pozemok s rozlohou cca 4.350 m²
• Bunkr s röntgenskou ochranou v suteréne
• Podkrovie s možnosťou zateplenia/rozšírenia
Ideálne pre firmy, ordinácie, výrobu, laboratóriá alebo remeslá. Flexibilné usporiadanie priestorov a svetlé miestnosti umožňujú okamžité využitie alebo individuálne úpravy. Integrovaný byt je vhodný ako bývanie pre prevádzkovateľa, pre zamestnancov alebo na samostatný prenájom.
Objekt sa nachádza v pokojnej, vidieckej lokalite v príjemnej obci Dickel (Dolné Sasko).
Infraštruktúra a okolie:
• Približne 4 km do Rehden, kde nájdete: EDEKA, ALDI, lekáreň, poštovú pobočku
• Deti majú v blízkosti materskú školu a základnú školu
• Verejná doprava dostupná pešo
• Dobrá dostupnosť k mestám Barnstorf a Diepholz, ako aj k regionálnym diaľniciam
• Obklopené bohatou zeleňou, prírodou a možnosťami oddychu (pešie a cyklistické trasy)
Povrchy: dlažba, kameň, vinyl
Sanitárne vybavenie: vaňa, návštevné WC
Kuchyňa: zabudovaná kuchyňa v pripojenom byte
Výnimočné vlastnosti: zimná záhrada, terasa, záhrada, suterén, podkrovie, bunkr s röntgenskou ochranou
Kúrenie: ústredné kúrenie, zdroj energie je plyn
Parkovacie miesta: 10 vonkajších parkovacích miest
Stav: zrekonštruovaný a okamžite použiteľný
Dostupnosť: podľa dohody
Rok výstavby: 1955 (rekonštrukcia v roku 2003)
Pozemok: 4.350 m² s možnosťou ďalšej výstavby
Výnimočnosť: pripojený byt, podkrovie, bunkr s röntgenskou ochranou
Využitie: kombinovateľné pre obchodné a bytové účely
Online prehliadka možná
Tento komerčný objekt ponúka históriu, priestor, flexibilitu a rozvojový potenciál – ideálny pre firmy, ktoré hľadajú pokojné prostredie s dobrou infraštruktúrou.
Parametre nehnuteľnosti
| Vek | Nad 50 rokov |
|---|---|
| Poschodie | 1. poschodie z 3 |
| Plocha kancelárie | 739 m² |
| Stav | Po rekonštrukcii |
|---|---|
| Číslo inzerátu | 988415 |
| Cena za jednotku | 744 € / m2 |
Čo táto nehnuteľnosť ponúka?
| Pivnica | |
| MHD 2 minúty pešo |
| Parkovanie | |
| Terasa |
V okolí nehnuteľnosti nájdete
Stále hľadáte to pravé?
Nastavte si strážneho psa. Ponuky vybrané na mieru dostanete súhrnne 1× denne e-mailom. S Premium profilom máte po ruke rovno 5 strážcov a keď sa niečo objaví, informujú vás obratom.
























