
Prenájom bytu 3+1 • 82 m² bez realitkyBreitenweg 1A, , Porýnie-Falcko
Breitenweg 1A, , Porýnie-FalckoMHD 2 minúty pešo • ParkovanieTu je preklad textu do slovenčiny:
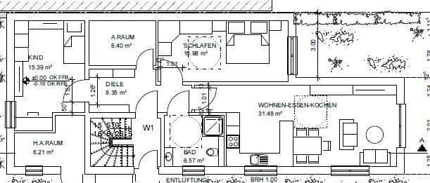
K prenájmu je kvalitný 3-izbový novostavbový byt v prízemí moderného štvordomového rodinného domu v Römerberg-Mechtersheim, Breitenweg 1A. Ide o prvé nasťahovanie, ktoré spája najvyšší pohodlie bývania s moderným, energeticky úsporným stavebným prístupom. Bezbariérový byt má obytnú plochu približne 82 m² a zaujme premysleným pôdorysom a vysoko kvalitným vybavením.
Byt ponúka priestranný obývací a jedálenský priestor s priamym vstupom na dlažbenú terasu, ktorá bude dokončená v mesiaci február. Odtiaľ sa nachádza samostatný zadný vstup s priamym prístupom k parkovacím miestam. Vonkajšiu časť obohacuje aj malá záhradka s umelým trávnikom, ktorá poskytuje ďalší priestor na oddych na čerstvom vzduchu.
Byt disponuje vysoko kvalitne vybavenou kúpeľňou s modernou, bezbariérovou sprchou, štýlovým sanitárnym vybavením a kvalitnými dlažbami, čím dôsledne potvrdzuje vysoký štandard komfortu a funkčnosti.
Všetky obytné miestnosti sú vybavené hladkými stenami a kvalitnými hladkotkanými tapetami. Topenie sa zabezpečuje moderným vzduch-voda tepelné čerpadlo v kombinácii s podlahovým kúrením vo všetkých miestnostiach. Navyše je v letných mesiacoch možné využiť podlahové kúrenie na príjemné chladenie miestností. Trojitým zaskleným oknám a elektrickým žalúziám vo všetkých miestnostiach prispieva k vysokému komfortu bývania, energetickej efektívnosti triedy A+ a príjemnému vnútornému prostrediu. Moderný videointerkom zvyšuje bezpečnosť a komfort navyše.
Byt je vybavený modernými digitálnymi vodomermi a teplomermi, takže všetky spotreby je možné prehľadne a pohodlne sledovať cez aplikáciu.
Parkovacie miesta sú k dispozícii samostatne na prenájom podľa potreby a účtujú sa vo výške 50,00 € za miesto mesačne. Je možné si prenajať jedno alebo dve parkovacie miesta.
Lokalita v Römerberg-Mechtersheim sa vyznačuje pokojnou a udržiavanou obytnou atmosférou, ktorá zároveň ponúka veľmi dobrú infraštruktúru. Obchody, lekári, lekárne, ako aj materské školy a školy sú dostupné v krátkej vzdialenosti. Okolie je charakterizované množstvom zelene, poľami a nedaleko ležiacimi riekymi lúkami, ktoré lákajú na prechádzky a voľnočasové aktivity. V tesnej blízkosti sa nachádza obľúbené kúpalisko, ktoré najmä v letných mesiacoch poskytuje vysokú kvalitu voľnočasových aktivít a oddychu. Zároveň sú k dispozícii aj dobré dopravné spojenia smerom na Speyer, Germersheim, Ludwigshafen a Mannheim, čo robí byt mimoriadne atraktívnym aj pre dochádzajúcich do práce.
Parametre nehnuteľnosti
| Vek | Nad 50 rokov |
|---|---|
| Stav | Novostavba |
| Číslo inzerátu | 988273 |
| Úžitková plocha | 82 m² |
| Dostupné od | 1. 4. 2026 |
|---|---|
| Dispozícia | 3+1 |
| PENB | A - Mimoriadne úsporné |
| Cena za jednotku | 15 € / m2 |
Čo táto nehnuteľnosť ponúka?
| Parkovanie | |
| Terasa |
| MHD 2 minúty pešo |
V okolí nehnuteľnosti nájdete
Stále hľadáte to pravé?
Nastavte si strážneho psa. Ponuky vybrané na mieru dostanete súhrnne 1× denne e-mailom. S Premium profilom máte po ruke rovno 5 strážcov a keď sa niečo objaví, informujú vás obratom.









