
Predaj domu 6+1 • 131 m² bez realitkySonnenhalde 7, , Bádensko-Wurttembersko
Sonnenhalde 7, , Bádensko-WurttemberskoMHD 6minút pešo • Výťah • GarážRodinný dom v pokojnej slepej ulici v Rottwei-Göllsdorf
Tento udržiavaný rodinný dom na adrese Sonnenhalde 7 v Göllsdorfe zaujme svojou pokojnou polohou v zriedka frekventovanej slepej ulici a pevnou stavebnou konštrukciou s množstvom modernizácií. Dom bol pôvodne obsadený v roku 1962 a počas desaťročí bol priebežne renovovaný a rozširovaný.
Bytový komfort a modernizácie
Nehnuteľnosť je vo veľmi dobrom stave. Kuchyňa bola pred niekoľkými rokmi úplne obnovená; pôvodná kuchyňa je umiestnená v suteréne a je ideálna ako dodatočná zásobovacia kuchyňa. Vysoce kvalitné okná z izolovaného skla značky Meranti s hliníkovými vonkajšími rámami a moderné vstupné dvere zabezpečujú vynikajúcu energetickú efektívnosť a dlhú životnosť. Aj kúpeľňa bola kompletne zrekonštruovaná.
Medzi krokvami bola inštalovaná izolácia, ktorá bola následne prekrytá obkladovými doskami – ďalší plus pre energetický stav domu.
Priestranná nadstavba a zimná záhrada
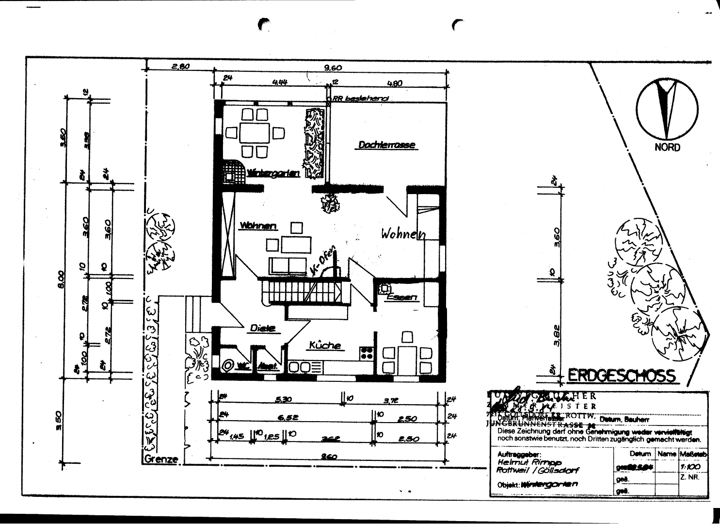
V rokoch 1984/85 bola postavená priestranná nadstavba, ktorá sa tiahne cez celú dĺžku domu. Tá zahŕňa:
• garáž
• vyhrievaný suterénny priestor
• vyhrievanú zimnú záhradu v hornom podlaží
• veľkú terasu s elektrickou markízou
Zimná záhrada poskytuje vďaka elektrickým žalúziám a dodatočným vykurovacím možnostiam – radiátor alebo keramický kachlík – komfort bývania počas celého roka.
Kúrenie a energia
Dom je vykurovaný olejovým kotlom značky Viessmann (rok výstavby 1989) s horákom MAN (2003). K dispozícii je aj prípojka na plyn, ktorá umožňuje budúce úpravy. Keramický kachlík v obývacej izbe je zahrievaný prostredníctvom radiátora a zabezpečuje príjemné teplo.
Ďalšie vybavenie
• Veľká zásobná nádrž na dažďovú vodu, čiastočne zapustená do pôdy
• Kvalitné schodiskové výťahy na oboch schodoch
• Veľký satelitný systém pre veľmi dobrý príjem TV signálu
• Nábytok je možné prebrať na základe dohody
• Ihneď k dispozícii
Záver:
Mimoriadne udržiavaný a priebežne modernizovaný rodinný dom v pokojnej lokalite s veľkým množstvom extra vybavenia, priestrannou nadstavbou a vynikajúcou využiteľnosťou. Ideálny pre kupujúcich, ktorí kladú dôraz na solídnu stavebnú konštrukciu, komfort a okamžitú dostupnosť.
Popis lokality
Rodinný dom sa nachádza v mimoriadne pokojnej a rodinne priateľskej lokalite v Göllsdorfe, obľúbenom sídlišti Rottweil. Ulica Sonnenhalde je čisto obytná a končí slepou uličkou, čo zaisťuje minimálnu premávku a mimoriadne príjemné, bezpečné prostredie na bývanie.
Okolie je charakteristické udržiavanými rodinnými domami, množstvom zelene a harmonickým susedstvom. Obchodné možnosti, školy, materské školy, lekári a ďalšie zariadenia každodenných potrieb sú v danej časti alebo v blízkom Rottweile rýchlo dostupné. Dopravné spojenie verejnou dopravou je výborné a cesty do centra mesta či k okolitým obciam sú krátke.
Prírodné prostredie navyše ponúka vysokú hodnotu pre voľnočasové aktivity: prechádzkové a turistické cesty, lesy a rekreačné oblasti sa nachádzajú v bezprostrednej blízkosti. Zároveň lokalita profitovala z blízkosti diaľnice A81, čo umožňuje pohodlné spojenie so štutgartským regiónom a oblasťou Bodenského jazera.
Celkovo lokalita spája pokojné bývanie, kvalitnú infraštruktúru a atraktívne okolie – ideálna pre všetkých, ktorí si cenia kvalitu života a uvoľnené prostredie.
• Pokojná lokalita v slepej uličke
• Pôvodné obsadenie 1962, projekt z roku 1958
• Priebežne renovovaný a udržiavaný
• Možnosť prebratia nábytku
• Ihneď k dispozícii
Okná a dvere
• Vysoce kvalitné okná značky Meranti s izolačným sklom a hliníkovými vonkajšími rámami
• Moderné, kvalitné vstupné dvere
Interiérové vybavenie
• Kompletne zrekonštruovaná kuchyňa (novšia zabudovaná kuchyňa)
• Dodatočná staršia kuchyňa v suteréne (ideálna ako zásobovacia kuchyňa)
• Kombinovaný varný spotrebič s keramickou varnou doskou (2 platne) a plynom (2 varné miesta)
• Kompletne zrekonštruovaná kúpeľňa
• Keramický kachlík v obývacej izbe (zahrievaný prostredníctvom radiátora)
• Izolácia medzi krokvami, následne prekrytá obkladovými doskami
Kúrenie a energia
• Olejový kotol Viessmann, rok výstavby 1989
• Horák MAN, rok 2003
• Prítomná prípojka na plyn
• Zimná záhrada je možné vykurovať radiátorom alebo keramickým kachlíkom
Nadstavba (1984/85)
• Garáž
• Vyhrievaný suterénny priestor
• Vyhrievaná zimná záhrada v hornom podlaží
• Veľká terasa nad nadstavbou
• Elektrické žalúzie na zatienenie zimnej záhrady
• Veľká elektrická markíza pre terasu
Technológia a komfort
• Veľký satelitný systém pre vynikajúci príjem TV signálu
• Kvalitné schodiskové výťahy na oboch schodoch
• Veľká zásobná nádrž na dažďovú vodu (čiastočne zapustená do pôdy)
Parametre nehnuteľnosti
| Vek | Nad 50 rokov |
|---|---|
| Stav | Dobrý |
| Číslo inzerátu | 988270 |
| Úžitková plocha | 131 m² |
| Celkové poschodia | 2 |
| Dostupné od | 17. 2. 2026 |
|---|---|
| Dispozícia | 6+1 |
| PENB | G - Mimoriadne nehospodárne |
| Plocha pozemku | 514 m² |
| Cena za jednotku | 2 824 € / m2 |
Čo táto nehnuteľnosť ponúka?
| Balkón | |
| Garáž | |
| MHD 6 minút pešo |
| Pivnica | |
| Výťah | |
| Terasa |
V okolí nehnuteľnosti nájdete
Stále hľadáte to pravé?
Nastavte si strážneho psa. Ponuky vybrané na mieru dostanete súhrnne 1× denne e-mailom. S Premium profilom máte po ruke rovno 5 strážcov a keď sa niečo objaví, informujú vás obratom.

























































