
Prenájom bytu • 16 m² bez realitkyAchtungstraße 9 Heilbronn Heilbronn Baden-Württemberg 74072
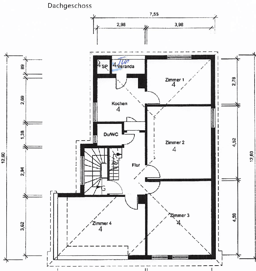
Achtungstraße 9 Heilbronn Heilbronn Baden-Württemberg 74072MHD 6minút pešo • VybavenéIn starostlivo udržiavanom viacnásobnom bytovom dome je na prenájom ponúkaných celkovo 5 atraktívnych izieb do spolubývania. Keďže bývanie je momentálne prázdne, ponúka sa tak ideálna príležitosť pre vznik novej spolubývajúcej skupiny. Či už ako jednotlivec alebo priamo ako skupina priateľov – tu si môžete svoj spoločný život od začiatku vytvoriť sami. Byt v podkroví bol čerstvo zrekonštruovaný a ponúka priestranné využitie rozprestierajúce sa na dvoch podlažiach (štýl maisonette).
- Izby: 5 izieb s rozlohou približne 15 až 18 m².
- Rozdelenie:
Nižšie podlažie: 3 izby, vybavená kuchyňa, spoločenská miestnosť, balkón a kúpeľňa.
Vyššie podlažie: 2 izby a samostatná druhá kúpeľňa.
- Špeciálne: Obe izby vo vyššom podlaží sú vybavené vlastnou klimatizáciou – ideálne pre horúce letné dni.
Náklady a podmienky:
Izba 2: 470 € bez príplatkov
Izba 3: 470 € bez príplatkov
Izba 4: 450 € bez príplatkov
Izba 1 (horné podlažie): 450 € bez príplatkov
Izba 2 (horné podlažie): 450 € bez príplatkov
Paušál na riešenie dodatočných nákladov: 100,00 €
V paušále na riešenie sú obsiahnuté: elektrina, kúrenie, voda/odpadovody, poplatky za odpad, WLAN (internet) ako aj služby domového správcu. Nevznikajú žiadne ďalšie mesačné náklady na základné služby.
Zaujal/a Vás inzerát? Radi si dohodneme termín na obhliadku miesta.
Spolubývanie sa nachádza vo veľmi praktickej a centrálnej lokalite v Heilbronne (PSČ 74072). Okolie kombinuje výhody mestského života s optimálnou dostupnosťou vzdelávacích inštitúcií a verejnej dopravy.
1. Vynikajúca dostupnosť a mobilita:
Hlavná stanica: Hlavná stanica v Heilbronne je dostupná pešo za menej ako 10 minút. Odtiaľ máte napojenie na regionálnu a diaľkovú dopravu, ako aj na všetky linky S-Bahn KVV/HNV.
Verejná doprava: Niekoľko autobusových zastávok sa nachádza v bezprostrednej blízkosti, takže ste aj bez auta po celej Meste flexibilní.
2. Vzdelávanie a blízkosť kampusu:
Univerzita Heilbronn a vzdelávací kampus: Kampus Sontheim aj moderný vzdelávací kampus (Europaplatz) sú pohodlne dostupné na bicykli (cca 10 min.) alebo verejnou dopravou. To robí byt ideálnou voľbou pre študentov HHN, DHBW alebo TU München.
3. Obchodné možnosti a každodenný život:
Všetko, čo potrebujete na každodenný život, je doslova na dosah: Supermarkety (ako Lidl, Kaufland alebo REWE), pekárne, lekárne a drogerie sú v bezprostrednom okolí.
Centrum Heilbronna so svojou obchodnou galériou a pešou zónou je len na krátku prechádzku.
4. Voľný čas a kvalita života:
Neckarmeile: Oblúbená gastronomická ulica pozdĺž Neckaru s množstvom kaviarní, barov a reštaurácií je ľahko dostupná a láka na príjemné večery.
Zeleň a parky: Blízky Wertwiesenpark alebo breh Neckaru ponúkajú ideálne možnosti na jogging, prechádzky alebo letné pikniky v prírode.
Náklady a podmienky:
Izba 2: 470 € bez príplatkov
Izba 3: 470 € bez príplatkov
Izba 4: 450 € bez príplatkov
Izba 1 (horné podlažie): 450 € bez príplatkov
Izba 2 (horné podlažie): 450 € bez príplatkov
Paušál na riešenie dodatočných nákladov: 100,00 €
V paušále na riešenie sú obsiahnuté: elektrina, kúrenie, voda/odpadovody, poplatky za odpad, WLAN (internet) ako aj služby domového správcu. Nevznikajú žiadne ďalšie mesačné náklady na základné služby.
Parametre nehnuteľnosti
| Dostupné od | 6. 2. 2026 |
|---|---|
| Poschodie | 3. poschodie |
| Úžitková plocha | 16 m² |
| Vybavené | Vybavené |
|---|---|
| Číslo inzerátu | 988259 |
| Cena za jednotku | 28 € / m2 |
Čo táto nehnuteľnosť ponúka?
| Balkón |
| MHD 6 minút pešo |
V okolí nehnuteľnosti nájdete
Stále hľadáte to pravé?
Nastavte si strážneho psa. Ponuky vybrané na mieru dostanete súhrnne 1× denne e-mailom. S Premium profilom máte po ruke rovno 5 strážcov a keď sa niečo objaví, informujú vás obratom.













