
Prenájom bytu 2+1 • 52 m² bez realitky, Bádensko-Wurttembersko
, Bádensko-WurttemberskoMHD 2 minúty pešoDiese vollständig kernsanierte 2-Zimmer-Wohnung befindet sich im Hochparterre eines gepflegten Mehrfamilienhauses in Lörrach.
Tento kompletne zrekonštruovaný 2-izbový byt sa nachádza na zvýšenom prízemí udržiavaného viacfamilijného domu v Lörrach.
Die Wohnung wurde umfassend modernisiert und präsentiert sich in einem neuwertigen Ausstattungsstandard. Erneuert wurden unter anderem Elektrik, Heiztechnik, Badezimmer inklusive Leitungen sowie sämtliche Oberflächen. In den Wohnräumen wurde ein hochwertiger Vinylboden verlegt, der für ein modernes und pflegeleichtes Wohngefühl sorgt.
Byt bol komplexne zmodernizovaný a prezentuje sa v novom stave vybavenia. Medzi obnovené prvky patria predovšetkým elektroinštalácia, vykurovací systém, kúpeľňa vrátane rozvodov a všetky povrchy. V obytných priestoroch bol položený vysoko kvalitný vinylový podlahový kryt, ktorý poskytuje moderný a nenáročný životný štýl.
Der Grundriss ist funktional und gut nutzbar und eignet sich ideal für Singles oder Paare. Die Wohnung ist aktuell bezugsfrei und kann kurzfristig angemietet werden.
Dispozícia je funkčná a dobre využiteľná, čo robí byt ideálnym pre osamelých alebo páry. Byt je momentálne voľný a je možné ho prenajať na krátku dobu.
Die Bilder von der Wohnung sind Originalaufnahmen und wurden nicht mit KI bearbeitet
Fotografie bytu sú originálne snímky a neboli upravené pomocou umelej inteligencie.
Die Wohnung befindet sich in zentraler Kernstadtlage von Lörrach. Die Mikrolage zeichnet sich durch kurze Wege und eine sehr gute Alltagsinfrastruktur aus.
Byt sa nachádza v centrálnej časti mesta Lörrach. Mikro-lokalita sa vyznačuje krátkymi vzdialenosťami a veľmi dobrou každodennou infraštruktúrou.
- Bushaltestelle: ca. 2–3 Gehminuten
Autobusová zastávka: cca 2–3 minúty chôdze
- Bahnhof / S-Bahn (Richtung Basel): ca. 8–10 Gehminuten
Vlaková stanica / S-Bahn (smer Basel): cca 8–10 minút chôdze
- Innenstadt / Fußgängerzone: ca. 6–8 Gehminuten
Centrum mesta / pešia zóna: cca 6–8 minút chôdze
- Supermarkt: ca. 4–5 Gehminuten
Supermarket: cca 4–5 minút chôdze
- Bäckerei / Gastronomie: ca. 2–5 Gehminuten
Cukráreň / gastronomia: cca 2–5 minút chôdze
- Ärzte / Apotheke: ca. 5–7 Gehminuten
Lekári / lekáreň: cca 5–7 minút chôdze
Die Kombination aus zentraler Lage, guter ÖPNV-Anbindung und fußläufiger Versorgung sorgt für eine stabile Nachfrage, insbesondere bei Singles, Paaren und Berufspendlern – auch mit Blick auf die Nähe zur Schweizer Grenze.
Kombinácia centrálnej polohy, vynikajúcej dostupnosti verejnej dopravy a občianskej vybavenosti zabezpečuje stabilný dopyt, najmä zo strany osamelých, párov a dochádzačov do práce – a to aj vďaka blízkosti k švajčiarskej hranici.
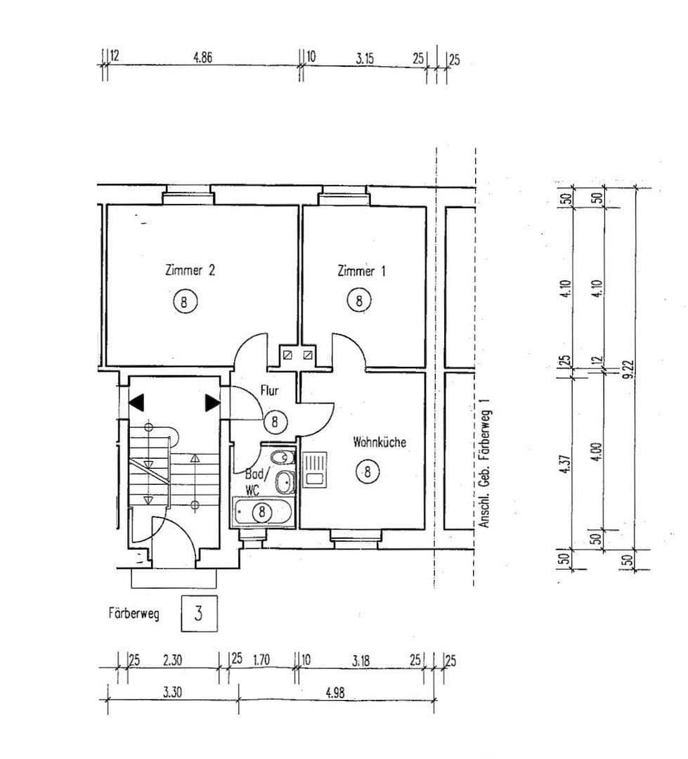
- Wohnfläche ca. 52 m²
Obytná plocha cca 52 m²
- 2 Zimmer
2 izby
- Hochparterre
Zvýšené prízemie
- Kernsaniert
Kompletná rekonštrukcia
- Neue Gas-Etagenheizung (2026)
Nové plynové kúrenie (2026)
- Neue Elektrik
Nová elektroinštalácia
- Neues Badezimmer inkl. aller Leitungen
Nová kúpeľňa vrátane všetkých rozvodov
- Hochwertiger Vinylboden
Vysoko kvalitná vinylová podlaha
- Badezimmer mit Fenster
Kúpeľňa s oknom
- Parken mit Anwohnerausweis möglich
Parkovanie s rezidenčným preukazom je možné
- Bezugsfrei – sofortige Anmietung möglich
Voľné na nasťahovanie – prenájom možný okamžite
- Fernwärmeanschluss in Vorbereitung – zukunftssichere Perspektive
Pripojenie na diaľkové kúrenie je v príprave – perspektíva zabezpečenej budúcnosti
- Hohe Decken – klassischer Altbaucharakter
Vysoké stropy – klasický charakter starej budovy
- Zentrale Kernstadtlage mit stabiler Mietnachfrage
Centrálna poloha v jadre mesta so stabilným dopytom po prenájme
Impressum
Nils Weisel
WohnVision Südbaden
Pelzwinkel 1
79426 Buggingen
Kontakt
Telefón: +49 (0)7634 3500318
E-mail: info@wohnvision-suedbaden.de
Wirtschaftsidentifikationsnummer
DE437872375
Parametre nehnuteľnosti
| Vek | Nad 50 rokov |
|---|---|
| Stav | Po rekonštrukcii |
| Číslo inzerátu | 988204 |
| Úžitková plocha | 52 m² |
| Dostupné od | 6. 2. 2026 |
|---|---|
| Dispozícia | 2+1 |
| PENB | E - Nehospodárne |
| Cena za jednotku | 17 € / m2 |
Čo táto nehnuteľnosť ponúka?
| Pivnica |
| MHD 2 minúty pešo |
V okolí nehnuteľnosti nájdete
Stále hľadáte to pravé?
Nastavte si strážneho psa. Ponuky vybrané na mieru dostanete súhrnne 1× denne e-mailom. S Premium profilom máte po ruke rovno 5 strážcov a keď sa niečo objaví, informujú vás obratom.









