Predaj bytu 3+1 • 68 m² bez realitky, Hesensko
, HesenskoMHD 2 minúty pešoNa predaj je veľmi dobre prenajatý 3-izbový vlastnícky byt (približne 68 m²) v prvom poschodí starostlivo udržiavaného 6-dielového domu. Tento objekt je ideálnou voľbou pre investorov, ktorí hľadajú stabilnú existujúcu nehnuteľnosť s moderným energetickým vybavením a výnimočnými daňovými výhodami.
Investičné výhody na prvý pohľad:
Atraktívny výnos: Pri kúpnej cene 139 000 € a ročnom nájme 7 080 € (590 € mesačne) dosiahnete hrubý nájomný výnos okolo 5,1 % (faktor 19,6).
„Daňový turbo“: Predávajúci poskytuje bezplatne posudok o zostávajúcej dobe využiteľnosti. Tento posudok vám umožňuje zvýšenú odpisovú sadzbu až 4 % p.a. (namiesto obvyklých 2 %). Vaša výhoda: výrazne znížený zdaniteľný príjem a podstatne vyšší čistý cash flow.
Energetický stav najvyššej kvality (aktualizácia 2025/2026):
• Nové vykurovanie: Energeticky efektívna plynová kondenzácia (inštalácia 2026).
• Maximálna tepelná ochrana: Nové plastové okná s trojskleným izolačným sklom.
• Zachovanie hodnoty: Čerstvé natretie fasády, izolovaná horná stropná podlaha a nové vstupné dvere.
Spoľahlivý príjem: Od začiatku roku 2025 spoľahlivo prenajaté – žiadne riziko dlhodobého prázdnoty, žiadne oneskorené rekonštrukcie.
Detaily objektu:
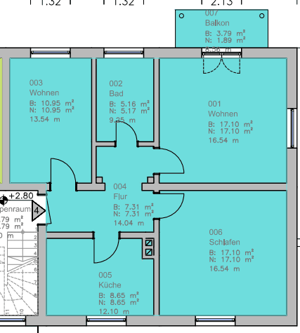
Byt zaujme premyslenou dispozíciou s 3 izbami, svetlou kúpeľňou s denným osvetlením, balkónom na oddych a vlastným pivničným priestorom. Spoluvlastnícke poplatky sú s približne 190–200 € mierne kalkulované.
Záver: Kúpte, odpíšte, profitujte. Vďaka čerstvej energetickej modernizácii investujete do nehnuteľnosti, ktorá je technicky pripravená na nasledujúce desaťročia, pričom posudok okamžite znižuje vašu daňovú povinnosť.
Ideálny „štartovací balík“ pre budovanie vášho majetku:
Hľadáte jednoduchý vstup do trhu s nehnuteľnosťami alebo chcete budovať dôchodkové zabezpečenie bez operatívneho stresu? Potom je tento objekt presne tým správnym stavebným prvkom do vášho portfólia.
Vďaka čerstvej energetickej rekonštrukcii, spoľahlivej štruktúre nájomcov a už existujúcemu daňovému posudku získavate skutočne „komplexne bezstarostnú investíciu“. Kým sa iní trápia oneskorenými rekonštrukciami alebo zložitými daňovými otázkami, vy si už od prvého dňa užívate pokojnú príjmovosť z nájmu a maximálnu daňovú efektívnosť.
Jednoduchšia a bezpečnejšia cesta k prvej vlastnej investičnej nehnuteľnosti sa ťažko nájde.
Predaj bez provízie priamo od vlastníka!
Dom je plánovaný na kompletný predaj, preto existuje aj možnosť zakúpenia celého domu alebo viacerých bytov z domu.
Nehnuteľnosť sa nachádza v 35716 Dietzhölztal-Ewersbach – najväčšej a najinfrastruktúrnejšie najvyspelejšej časti obce.
Ekonomika a trh práce: Lokalita výrazne ťaží zo svetového lídera Rittal (Friedhelm Loh Group). S približne 10 000 zamestnancami v regióne je Rittal najväčším zamestnávateľom a zaisťuje stály dopyt po bývaní a nadpriemernú kupnú silu.
Infrastruktúra a kvalita života:
• Zabezpečenie: V obci sú dostupné supermarkety (Rewe, Edeka), drogerie, lekári a lekárne, pričom mnohé sú dostupné pešo.
• Vzdelávanie: Materská škola a základná škola sa nachádzajú v bezprostrednej blízkosti (600 m – 800 m).
• Doprava: Dobré spojenie cez B253 a diaľnicu A45 (približne 10–15 minút).
• Rekreácia: Lokalita priamo pri Národnom parku Lahn-Dill-Bergland s množstvom možností na pešiu turistiku a voľnočasové aktivity.
Parametre nehnuteľnosti
| Vek | Nad 50 rokov |
|---|---|
| Stav | Dobrý |
| Poschodie | 1. poschodie z 2 |
| PENB | D - Menej hospodárne |
| Cena za jednotku | 2 044 € / m2 |
| Dostupné od | 8. 2. 2026 |
|---|---|
| Dispozícia | 3+1 |
| Číslo inzerátu | 987976 |
| Úžitková plocha | 68 m² |
Čo táto nehnuteľnosť ponúka?
| Balkón | |
| MHD 2 minúty pešo |
| Pivnica |
V okolí nehnuteľnosti nájdete
Stále hľadáte to pravé?
Nastavte si strážneho psa. Ponuky vybrané na mieru dostanete súhrnne 1× denne e-mailom. S Premium profilom máte po ruke rovno 5 strážcov a keď sa niečo objaví, informujú vás obratom.







