Predaj domu • 711 m² bez realitkyWuppertal Uellendahl-Katernberg Nordrhein-Westfalen 42109
Zriedkavá príležitosť kúpiť si solídnu a čerstvú investíciu v tejto lokalite!
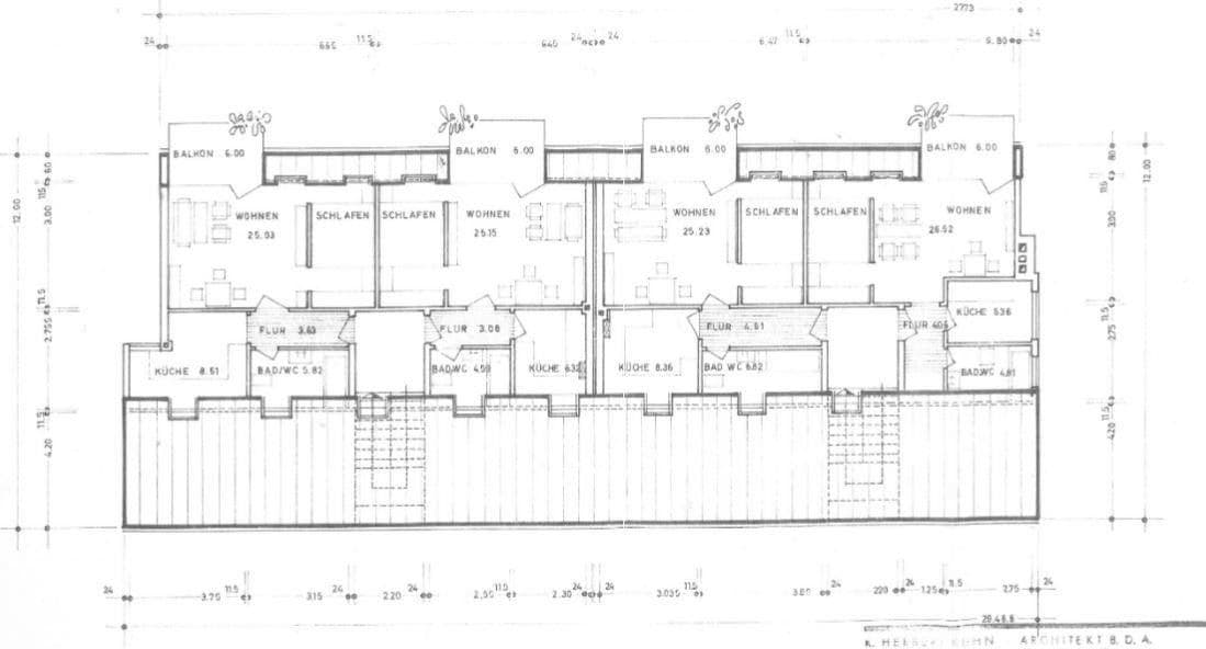
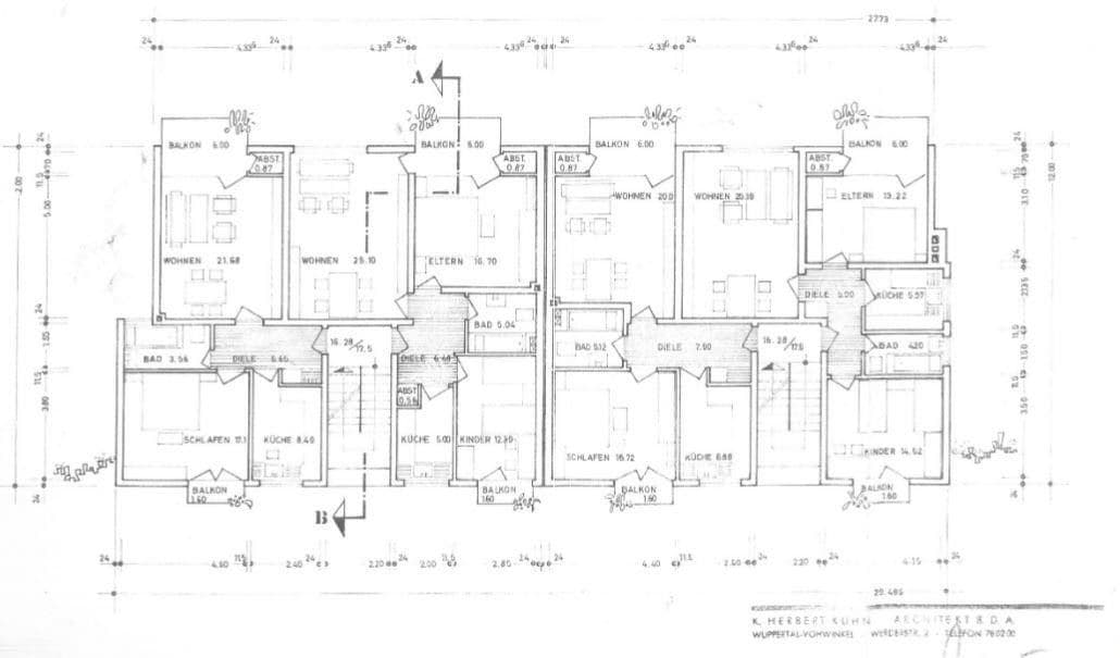
Na predaj sú 2 viacbytové domy s približne 711 m² obytných priestorov / cca 1 850 m² pozemku, priamo na Uellendahlerstr. vedľa predajcu Volvo. Jedinečná príležitosť v tejto lokalite! Idylna slnečná záhrada s viac než 1 000 m² plochy!
Najlepšia slnečná orientácia – väčšina bytov má dva balkóny – smerom dopredu aj dozadu – zmiešaná zóna – zaujímavé pre krátkodobý prenájom!
12 bytov + 8 garáží – očakávaný nájom 117 000 až 139 000 € v závislosti od modernizácie a typu prenájmu – banková splátka približne 105 000 € ročne, opäť v závislosti od spôsobu financovania – špičková kapitálová investícia!
Všetko je uvoľnené pre nového majiteľa – bez nájomcov!
12 bytov – 3 byty vyžadujú rekonštrukciu – 1 čerstvo zrekonštruovaný – 8 bytov je v poriadku, len potrebné premaľovať a sťahovať sa.
Podkrovie zatiaľ nie je upravené. Suterén má približne 80 m².
Solídna a čerstvá kapitálová investícia s perspektívou do budúcnosti vďaka robustnej a modernej stavebnej technike!
Tu sedí lokalita – tu sedí aj dispozícia bytov!
Pozemok za domom ponúka ďalšie možnosti rozvoja do budúcnosti.
Informácie o stanovovaní ceny:
Solídne byty v tejto lokalite stoja približne 2 500 € / m² * 711 m² = 1 777 500 €
8 garáží, ak vôbec nejaké na predaj, *20 000 € = 160 000 €
Odhadovaná hodnota pozemku 245 € / m² * 1 850 m² = 453 250 €
Z toho 1 000 m² pripadá na zadný nevybudovaný pozemok = 245 000 €
Ďalšie informácie nasledujú . . .
V prípade záujmu mi napíšte správu s vaším telefónnym číslom a menom a priezviskom.
Parametre nehnuteľnosti
| Vek | Nad 50 rokov |
|---|---|
| Úžitková plocha | 711 m² |
| Celkové poschodia | 3 |
| Číslo inzerátu | 987960 |
|---|---|
| Plocha pozemku | 1 852 m² |
| Cena za jednotku | 2 743 € / m2 |
Čo táto nehnuteľnosť ponúka?
| Balkón | |
| Garáž | |
| MHD 1 minúta pešo |
| Pivnica | |
| Parkovanie |
V okolí nehnuteľnosti nájdete
Stále hľadáte to pravé?
Nastavte si strážneho psa. Ponuky vybrané na mieru dostanete súhrnne 1× denne e-mailom. S Premium profilom máte po ruke rovno 5 strážcov a keď sa niečo objaví, informujú vás obratom.













