Predaj domu • 754 m² bez realitkyKrämpferufer 4 Erfurt Altstadt Thüringen 99084
Udržiavaný viacrodinný dom z obdobia zakladateľov, ktorý sa nachádza centrálne na okraji historického centra, no zároveň ticho umiestnený.
Bytový dom sa nachádza medzi ulicou Stauffenbergallee a vnútorným mestom Erfurtu, pričom obe lokality aj železničná stanica sú pohodlne dostupné pešo, na bicykli alebo električkou.
K domu nepatria žiadne parkovacie miesta. Keďže je ulica postavená len jednostranne a parkovanie je povolené na oboch jej stranách, je k dispozícii dostatok verejných parkovacích možností.
Správu domu a domovníka nájdete v budove a starostlivosť o objekt bude pokračovať.
Objekt bol v rokoch 1996/1997 kompletné zrekonštruovaný.
Prosíme Vás o pochopenie, že vybavujeme iba dopyty, ktoré obsahujú úplnú adresu, telefónne číslo a e-mailovú adresu.
Objekt:
10-rodinný dom, prízemie, 1. nadzemné poschodie – 3. nadzemné poschodie, podkrovie, dvojdeckový
99084 Erfurt
Krämpferufer 4
Rok výstavby: 1906
Rekonštrukcia: 1996/1997
Prvé prenájmanie od: 01.11.1997
Byty:
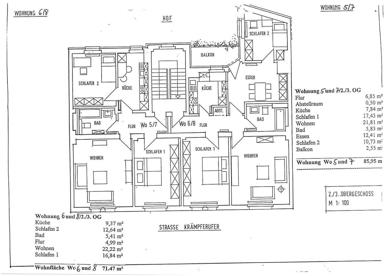
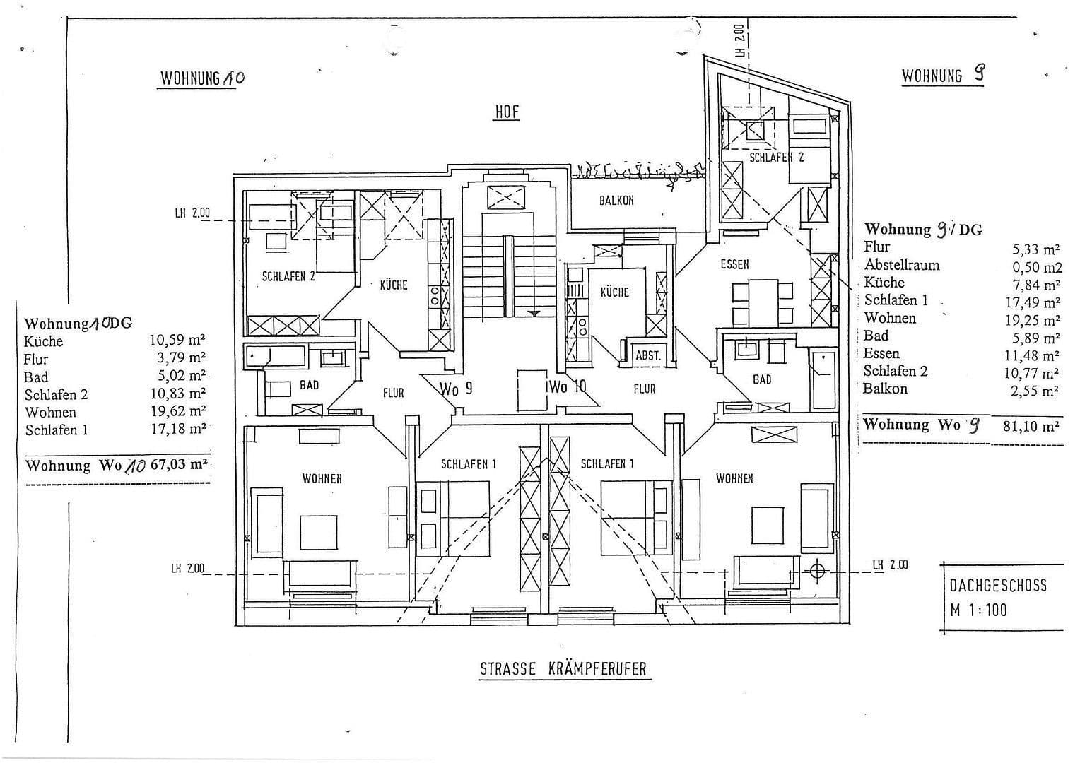
• 5 x 3,5-izbové byty o rozlohe 80 až 86 m² s balkónom (prízemie, 1. nadzemné poschodie až podkrovie)
• 1 x 2-izbový byt s 60 m² (prízemie)
• 4 x 3-izbové byty s rozlohou 67 až 71 m² (1. nadzemné poschodie až podkrovie)
Celková obytná plocha: 754 m²
Potvrdenie o neoddeliteľnosti vlastníctva pre rozdelenie spadá do programu vlastníctva bytov je k dispozícii.
Dosiahnuté čisté nájomné v roku 2025: 67 152 €
(plne prenajaté)
čo zodpovedá priemernému nájmu 7,42 €/m² s rozpätím od 6,40 €/m² do 8,26 €/m².
Pri poslednom prenájme k 01.02.2025 bol za 3-izbové byty bez balkóna dosiahnutý nájom 8,26 €/m².
Posledšie zvyšovanie nájmu bolo k 01.10.2024.
Energetický preukaz spotreby z 20.11.2025, 74,2 kWh/(m².ročne)
Energetická trieda: B
Pozemok: 280 m²
Katastrálne územie: Erfurt-Mitte, katastrálna oblasť 127, parcela 67
Kompletná rekonštrukcia v rokoch 1996/1997 zahŕňala nasledujúce práce:
• Obnovenie všetkých vedení pre zásobovanie a odvod odpadových vôd,
• Inštalácia tepelnej izolácie na dvorovej strane (6 cm),
• Nové usporiadanie pôdorysu,
• Obnovenie dverí,
• Elektroinštalácie,
• Nové centrálny plynové kúrenie,
• Nový komín,
• Cementový podklad na suteréne,
• Liatený asfalt v bytoch,
• Dokončenie podkrovia,
• Celá nová konštrukcia strešného rámu s novým krytinovým materiálom,
• Strešné okná,
• Drevené nosníkové podlahy boli skontrolované a v prípade potreby čiastočne vymenené,
• Všetky kúpeľne sú vybavené vaňou,
• V kuchyniach sú inštalované prípojky pre práčky,
• Schodisko bolo obložené mramorom,
• Inštalovaná je hviezdicová káblová sieť pre TV, ktorá je v prevádzke,
• Obnovenie okien – drevené okná s izolačným dvojsklom (K-hodnota 1,3, zvuková izolačná trieda 2),
• Vybudovanie 5 nad sebou umiestnených balkónov,
• Fasáda smerom k ulici bola vyčistená a poškodené miesta boli opravené, čiastočne novopriplátené,
• Kuchyne, kúpeľne a vstupné chodby boli obložené dlažbou,
• Na dimenzovanie a projektovanie vykurovacej sústavy bolo najaté inžinierske štúdio.
Novšie práce:
• Podlahové krytiny v bytoch sú prevažne laminátové, v byte č. 2 ešte kobercová podlaha,
• Zariadenie na ohrev teplej vody bolo v roku 2021 obnovené,
• Obehové čerpadlo pre teplú vodu bolo v roku 2020,
• Nabíjacie čerpadlo zásobníka bolo obnovené v roku 2021,
• V byte č. 9 je iba 1 DFF, obnovený vo februári 2017,
• V byte č. 10 sú 2 DFF, pričom 1 DFF bol obnovený v septembri 2023.
Parametre nehnuteľnosti
| Vek | Nad 50 rokov |
|---|---|
| Číslo inzerátu | 987942 |
| Úžitková plocha | 754 m² |
| Celkové poschodia | 4 |
| Stav | Dobrý |
|---|---|
| PENB | B - Veľmi úsporné |
| Plocha pozemku | 280 m² |
| Cena za jednotku | 1 923 € / m2 |
Čo táto nehnuteľnosť ponúka?
| Balkón | |
| MHD 3 minúty pešo |
| Pivnica |
V okolí nehnuteľnosti nájdete
Stále hľadáte to pravé?
Nastavte si strážneho psa. Ponuky vybrané na mieru dostanete súhrnne 1× denne e-mailom. S Premium profilom máte po ruke rovno 5 strážcov a keď sa niečo objaví, informujú vás obratom.


















