
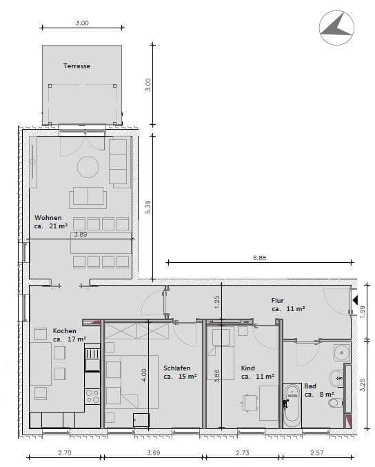
Prenájom bytu 3+1 • 87 m² bez realitkyBerlin Marzahn Berlin 12685
Berlin Marzahn Berlin 12685MHD 3 minúty pešo • VýťahDas moderné viacfamilijné sídlo ponúka veľa priestoru pre celú rodinu. Všetky poschodia, vrátane suterénu, sú prístupné výťahom. Ku bytu patrí suterén. Na vnútornom dvore a v suteréne sa nachádzajú stojany na bicykle. Obytné prostredie je starostlivo upravené s ihriskom pre deti, možnosťami oddychu a veľkorysými zeleňami.
Objekt sa nachádza na okraji starého jadra obce Marzahn a je pešo dostupný k mestskej hromadnej doprave.
• Umiestnenie v prízemí, ale nie úplne „nízkom“
• Výťah
• Elektrické rolety vo všetkých izbách
• Tepelné čerpadlo (energie zo zeme s elektrickým napájaním)
• Podlahové kúrenie
• Samostatné regulátory pre jednotlivé miestnosti
• Videointerkom
• Komfortná podlahová krytina v obytných priestoroch a kuchyni
• Kúpeľňa (vaňa a sprcha oddelene) s oknom, dlažbou na podlahe a stenách a prípojkou na práčku
• Vyhrievač na uteráky navyše k podlahovému kúreniu
• Opláštené steny a stropy vo farbe bielej omietky
• Kuchyňa: Vstavaná kuchynská linka s drezom, značkovým vstavaným sporákom, keramickou varnou doskou a digestorom
• Nájomný suterén s elektrickou zásuvkou
• Cyklotop
Byt bude možné prenajímať najskôr od mája 2026. Presná adresa bude zverejnená neskôr.
Všetky údaje uvedené v tomto expozé vychádzajú z informácií vlastníka a poskytované sú bez záruky. Slúžia výlučne ako informácia a dôkaz o opísanom objekte. Nezaručuje sa správnosť, úplnosť, aktuálnosť ani dispozície. Vyhradené sú prípadné omyly a medzitýždenný prenájom. Žiadosti o prenájom zasielajte prosím spolu s priloženým formulárom seba-hodnotenia nájomcu.
Bischoff Grundbesitz
GmbH & Co KG
Niebergallstr. 4
12557 Berlín
Sídlo: Berlín
Okresný súd:
Berlín-Charlottenburg
HRB 50326 A
DIČ: 37/142/02058
Osobne ručiteľská spoločníčka:
Bischoff Grundbesitz
Geschäftsführungs GmbH
Okresný súd:
Berlín-Charlottenburg
HRB 163444 B
Konateľ:
Dipl.-Wi.Jur. (FH) André Bischoff
Parametre nehnuteľnosti
| Vek | Nad 50 rokov |
|---|---|
| Stav | Dobrý |
| Číslo inzerátu | 987922 |
| Úžitková plocha | 87 m² |
| Dostupné od | 1. 5. 2026 |
|---|---|
| Dispozícia | 3+1 |
| PENB | A - Mimoriadne úsporné |
| Cena za jednotku | 15 € / m2 |
Čo táto nehnuteľnosť ponúka?
| Bezbariérový prístup | |
| Výťah |
| Pivnica | |
| MHD 3 minúty pešo |
V okolí nehnuteľnosti nájdete
Stále hľadáte to pravé?
Nastavte si strážneho psa. Ponuky vybrané na mieru dostanete súhrnne 1× denne e-mailom. S Premium profilom máte po ruke rovno 5 strážcov a keď sa niečo objaví, informujú vás obratom.




