
Prenájom bytu 2+1 • 64 m² bez realitkyHeilbronn Böckingen Baden-Württemberg 74080
Heilbronn Böckingen Baden-Württemberg 74080MHD 2 minúty pešoDiese exklusive 2,5-izbová bytosť v centrálnom Heilbronnske, v mestskej časti Böckingen, je jedinečnou príležitosťou pre nájomcov, ktorí si cenia prvotriednu polohu s vynikajúcou infraštruktúrou. Presvedčte sa pri obhliadke o mnohých prednostiach tejto atraktívnej nehnuteľnosti. Byt je okamžite na nasťahovanie.
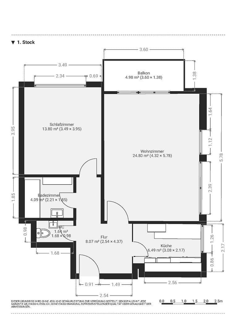
Nehnuteľnosť sa nachádza v 1. nadzemnom podlaží udržiavaného viacfamilijného domu, ktorý obsahuje deväť bytových jednotiek. S obytnou plochou približne 64 metrov štvorcových ponúka priestranný obývací priestor. Balkon rozširuje obytný priestor smerom von a vyzýva na oddych.
Po vstupe do bytu vás privíta príjemná predsieň, z ktorej máte prístup do všetkých izieb. Priestranný obývací/jedálenský priestor ponúka dostatok miesta pre celú rodinu. Tu je možné spoločne zdieľať príbehy zo dňa a tráviť príjemné večery na pohovke. Balkon je ideálnym miestom na zakončenie dňa s pohárom vína.
Štýlovo riešená spálňa, ktorá môže slúžiť ako spálňa, detská izba či pracovňa, ponúka optimálne útočisko a vyzýva k snívaniu a oddychu.
Kúpeľňa pozostáva z vane a umývadla.
Kuchyňa vás vyzýva k spoločným kulinárskym zážitkom.
Neváhajte a dohodnite si prehliadku už dnes a presvedčte sa vlastnými očami o tejto jedinečnej možnosti bývania.
V bezprostrednej blízkosti sa nachádza množstvo nákupných možností, reštaurácií a kaviarní. Pre každodenné potreby sú supermarkety, pekárne a drogérie pohodlne dostupné pešo.
Verejná doprava je výborne zorganizovaná: niekoľko autobusových liniek a električka (S4) sú rýchlo dostupné a ponúkajú priamu linku do centra Heilbronnu aj do okolitých miest. Aj diaľnica A6 je autom dostupná za pár minút, čo zabezpečuje ideálne spojenie s nadregionálnou cestnou sieťou.
Pre rodiny a nadšencov voľného času ponúka Böckingen rôzne možnosti na rekreáciu a voľnočasové aktivity. Nedaleko sa nachádza park Wertwiesenpark, ktorý vás pozýva na prechádzky, šport a oddych. Okrem toho sú v bezprostrednej blízkosti školy, materské školy aj športové kluby.
Táto lokalita ponúka dokonalú rovnováhu medzi mestským životom a oddychom v prírode, ideálna pre singlov, páry či malé rodiny, ktoré si cenia blízkosť mesta aj výhody ustáleného mestského obvodu.
Balkón, pivnica, návštevná toaleta, laminát, dlaždice
Poznámky:
S radosťou vám ponúkame veľmi dobre navrhnutý, moderný a priestranný 2,5-izbový byt.
Ďalšie informácie
- Byt je novo natretý a zrekonštruovaný
- Krytý balkón
- Vybavená kuchyňa
- Žiadne parkovacie miesto
- Uzamykateľná pivnica v suteréne budovy
- Prípojka na práčku v kúpeľni
- Paušálna mesačná záloha na služby 200 eur
Prosím, majte pripravené posledné tri potvrdenia o príjme, vlastné vyhlásenie a výpis zo SCHUFA pri kontaktovaní alebo prehliadke.
Informácie podľa § 5 DDG
KVLB Services GmbH
Allee 40
74072 Heilbronn
Tel.: 07131/6188375
Zápis v obchodnom registri:
Zápis do obchodného registra.
Okresný súd Stuttgart
Registračné číslo: B 783669
DIČ pre DPH
Identifikačné číslo pre DPH podľa §27a zákona o DPH: DE352606175
Parametre nehnuteľnosti
| Vek | Nad 50 rokov |
|---|---|
| Stav | Po rekonštrukcii |
| Poschodie | 1. poschodie z 4 |
| Úžitková plocha | 64 m² |
| Dostupné od | 6. 2. 2026 |
|---|---|
| Dispozícia | 2+1 |
| Číslo inzerátu | 987882 |
| Cena za jednotku | 11 € / m2 |
Čo táto nehnuteľnosť ponúka?
| Balkón | |
| MHD 2 minúty pešo |
| Pivnica |
V okolí nehnuteľnosti nájdete
Stále hľadáte to pravé?
Nastavte si strážneho psa. Ponuky vybrané na mieru dostanete súhrnne 1× denne e-mailom. S Premium profilom máte po ruke rovno 5 strážcov a keď sa niečo objaví, informujú vás obratom.























