
Predaj bytu 3+kk • 52 m² bez realitkyTřída Míru, Beroun - Beroun, Středočeský kraj
Zařízený nový byt pro toho, kdo má rád uklidňující modrou a potěší ho výhled na berounskou Městskou horu s rozhlednou. Pro toho, kdo chce jen nastavit dlaň, převzít klíče, nastěhovat se a začít bydlet, čeká v Berouně tento zařízený byt po nedávné rekonstrukci.
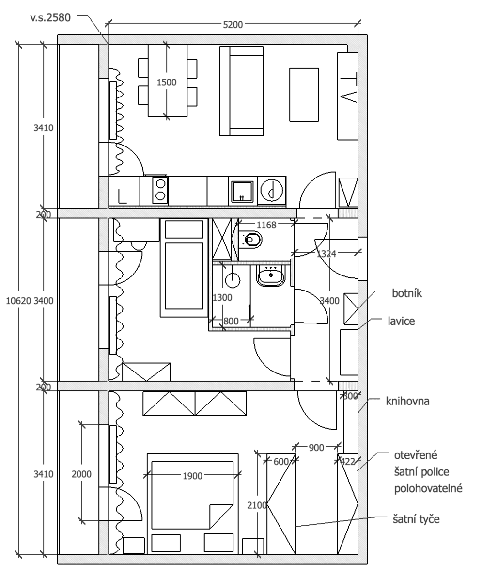
Byt 3+kk v 3.NP, o celkové ploše 63m2 - 52 m² vnitřní plochy plus tři lodžie (celkem o 11 m²)směrem na SV, vstup z každého pokoje na jednu, sklepní kóje se nachází v -1.PP Třída Míru, Beroun - Město. Poplatky 5409,- plus 300,- zálohy na elektřinu.
Řešit rekonstrukci, řemeslníky, projekt a jejich koordinaci už tedy nemusíte. Kompletní obnovou prošlo i náměstí a okolní zeleň přímo před domem a jeho okolí. Spousta služeb praktických ke každodennímu životu je také hned po ruce - obchody s potravinami, knihovna, zastávky autobusů, nákupní zóna, sportovní centrum Eden s letním bazénem a golfem pro děti, jídelny i zásilkové boxy, workout hřiště s inline okruhem na kopci za domem - vše v docházkové vzdálenosti. Do kaváren a restaurací v centru Berouna je to jen pár minut autem nebo 20 minut procházkou.
Rekonstrukce proběhla vyloženě od podlahy - vinyl s měkčenou podložkou, nové elektro instalace, radiátory, ruch z okolí dokonale izolují nová okna s trojskly, sádrokartonové podhledy a koupelnové jádro. Koupelna má sprchový kout s vaničkou a dešťovou sprchou, wc je samostatné s bidetovou sprškou a vestavěnou skříňkou. Vestavěná je také šatna s policemi i šatními tyčemi v ložnici. Zatemňovací závěsy v každém pokoji dokážou prodloužit noc a nepropustit noční světlo lamp.
Byt se prodává včetně hlavního vybavení tak, jak je zobrazen na fotografiích. Jen bez dekorací. To znamená kuchyň vč. vestavěné lednice, trouby, pračky, filtrační digestoře, dále rozkládací pohovka, jídelní stůl s židlemi, TV stolek, botník, postele, komoda, psací stůl atd.
Dům je v pořádku. Zateplený, společné prostory jsou také po renovaci, SVJ je vedené profesionální firmou a velmi dobře komunikuje.
Parametre nehnuteľnosti
| Dostupné od | 28. 2. 2026 |
|---|---|
| Konštrukcia budovy | Panel |
| Vybavené | Vybavené |
| Vykurovanie | Ústredné |
| Vlastníctvo | Osobné |
| Rekonštrukcia | Kompletné |
| Úžitková plocha | 52 m² |
| Stav | Po rekonštrukcii |
|---|---|
| Dispozícia | 3+kk |
| Poschodie | 1. poschodie z 11 |
| Číslo inzerátu | 987872 |
| PENB | C - Hospodárne |
| Umiestnenie | Rušná oblasť |
| Cena za jednotku | 124 929 CZK / m2 |
Čo táto nehnuteľnosť ponúka?
| Pivnica 2 m² | |
| Lodžia 11 m² |
| Výťah |
V okolí nehnuteľnosti nájdete
Stále hľadáte to pravé?
Nastavte si strážneho psa. Ponuky vybrané na mieru dostanete súhrnne 1× denne e-mailom. S Premium profilom máte po ruke rovno 5 strážcov a keď sa niečo objaví, informujú vás obratom.




















