Predaj domu 3+1 • 87 m² bez realitkyBURGBLICK GRUNDSTÜCK EXKLUSIV NUR FÜR DANWOOD-HAUSBAU Güssing Burgenland 7540
Bungalov: Nižšie v PDF nájdete niekoľko príkladov cien!
Vážené dámy a páni, ktorí plánujete stavbu,
Chcete si splniť sen o vlastnom bývaní, no nie ste si istí, ktorý poskytovateľ je pre Vás ten pravý, alebo kto Vám môže dodať dom v požadovanom stavebnoprvkovom prevedení? S DAN-WOOD-HOUSE môžete zrealizovať svoj vysnívaný dom – aj keď ešte nemáte konkrétny stavebný plán. Vyberte si z 130 rôznych typových domov a prispôsobte si ich zadarmo podľa svojich predstáv. Okrem toho sú k dispozícii rôzne varianty stenových konštrukcií.
Aké genialne zistenie: Nejde o to, čo ponúka DAN-WOOD alebo jednotlivé firmy, ale ako vyzerá Váš individuálny sen o bývaní! Tu Vám ponúkame profesionálne poradenstvo, ktoré Vás nadchne!
Ponúkam Vám svoje individuálne poradenstvo pre Váš projekt! Začínam úvodnou konzultáciou, ktorú najradšej vykonám priamo na Vašom stavebnom pozemku. Tvar, výškový rozdiel a orientácia pozemku sú v tomto prípade absolútnymi hlavnými aktérmi!
Ak ešte nemáte pozemok? Žiadny problém! Rada Vám predstavím množstvo skvelých možností dizajnu DAN-WOOD domov. Je tu toľko zaujímavých aspektov na prebratie: typ domu, rozloženie miestností, tvar strechy, vykurovanie, elektroinštalácia, tienenie a možné vybavenie ako "Smart Home".
Je naozaj dôležité poznať celkové finančné náklady vrátane preukázania vzoriek!
S radosťou Vám oznamujem, že na tento účel vykonám predbežné preukázanie vzoriek. Takto si môžete tieto náklady jednoducho naplánovať! Je to skutočne skvelá pomoc! Vďaka tomu si nielen vytvoríte financovací plán, ale aj začnete hľadať financovanie.
Neváhajte a kontaktujte ma teraz! 0676 5537747
Objednávku katalógu uskutočnite prostredníctvom "Katalóg Séria Today" na e-mail tatjana.wyss@danwood.at
Pri objednávke prosím uveďte svoju adresu a telefónne číslo.
Na Vašom pozemku alebo v…
Güssing: Približne 2 600 m², lokalita úplne rovinatá, veľkosti pozemkov a ich umiestnenie sú možné na výber. Rozmery od 500 m² do 1500 m².
Tu sú stavebné pozemky najvyššej triedy! V najlepšej lokalite a s dychberúcim výhľadom na nádherný zámok Güssing!
Güssing ponúka budúcnosť zabezpečujúci, dostupný a energeticky nezávislý život v zelenej prírode, čo robí investíciu do nehnuteľnosti tam strategickým aktívom.
Prečo Güssing
Energetický priekopník a udržateľnosť:
Mesto je energeticky sebestačné a medzinárodne uznávané.
Vysoké pokrytie (viac ako 85 %) regionálnym biomasy vyhnutým teplom vedie k stabilným a priaznivým nákladom na vykurovanie.
Dostupné ceny nehnuteľností:
Ceny sú stále výrazne priaznivejšie ako priemerné ceny v Rakúsku, čo poskytuje možnosť splniť si sen o vlastnom dome s priestranným pozemkom.
Silná infraštruktúra a kvalita života:
Ako predmestie okresného centra zaručuje Güssing krátke vzdialenosti a najlepšie zásobovanie.
Plánované veľké investície:
Nový vzdelávací kampus a moderné lekárske centrum (od roku 2026).
Kultúrne centrum (zámok Güssing) a blízkosť kúpeľov.
Úplné otvorenie S7 prináša Güssingu a jeho obyvateľom značné výhody:
Rýchlejšie spojenie s mestskými centrami: Diaľnica výrazne skracuje čas do diaľnice A2 smer juh, čím sa výrazne znižujú cestovné časy do Graz a Viedne.
Odľahčenie regiónu: Nová trasa presmerováva tranzitnú premávku, ktorá predtým výrazne zaťažovala obce ako Fürstenfeld a Rudersdorf.
Hospodárske impulzy: Nové spojenie, mimo iného cez prístupové miesto pri Rudersdorf/Dobersdorf a blízkosť pripojenia pri Königsdorf, posilňuje Güssing ako okresné predmestie a hospodársku lokalitu prostredníctvom zlepšenej dostupnosti a podpory nových priemyselných zón.
Stabilita hodnôt a rozvojový potenciál:
Cielené komunálne investície do infraštruktúry, oživenia mestského centra a technologického centra zaisťujú dlhodobú stabilitu hodnôt nehnuteľností.
Komunálna stratégia je zameraná na zvládnutie demografických výziev a etablovanie Güssingu ako atraktívnej miesta na bývanie a podnikanie.
Cieľová skupina
Rodiny, ktoré hľadajú budúcnosť, bezpečnosť a prírodu, ako aj všetci, ktorí kladú dôraz na nízke energetické náklady a ekologickú zodpovednosť.
Ďalšie pozemky v:
Pozemok, 8323 Kohldorf: Stavebný pozemok s množstvom slnka v strednom štátnom kopcovitom teréne, 15 km od Grazu!
Veľkosť 758 m², kúpna cena € 66 000, --
Pozemok, 8323 Kohldorf: Slnivý stavebný pozemok v Kohldorfe, 15 km východne od Grazu!
Veľkosť 787 m², kúpna cena € 69 000, --
Pozemok, 8311 Markt Hartmannsdorf: Úplne sprístupnený, slnečný stavebný pozemok v Markt Hartmannsdorf!
Veľkosť 920 m², kúpna cena € 53 000, --
Pozemok, 9335 Lölling Graben: Stavebný pozemok s nádherným diaľkovým výhľadom v malebnom kerne karintských hôr!
Veľkosť 1001 m², kúpna cena € 50 000, --
Pozemok, 8075 Hart pri Grazi: Slnivý pozemok pred bránami Grazu!
Veľkosť 1980 m², kúpna cena € 475 000, --
Pozemok na predaj v Stainzi: Slnivý pozemok na okraji Stainzu
Veľkosť 825 m², kúpna cena € 149 000,
Medzi vlastníkom pozemku a staviteľom domu neexistuje žiadne obchodné spojenie.
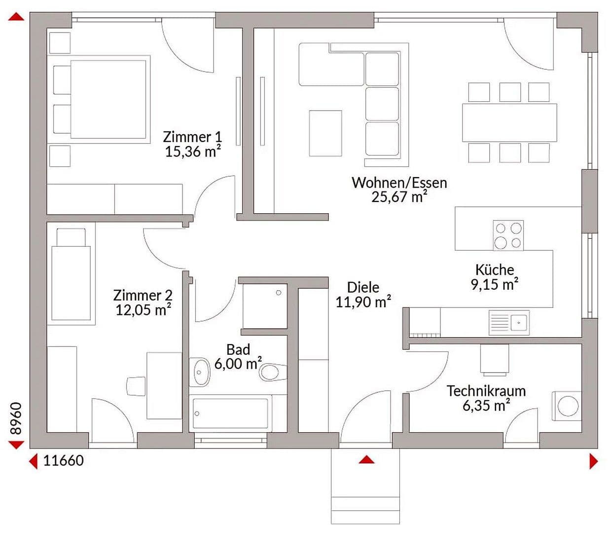
BUNGALOV – 3 izbový, kúpeľňa, WC, bez vybavenia!
Pozemok, 500 m², 1000 m², 1500 m² – na požiadanie k dispozícii.
V cene je zahrnuté:
Dom postavený na kľúč (nábytok nasťahujte a bývajte!)
Dodávka a montáž od základovej dosky po horný okraj
Zateplená strecha zvýšená proti snežným nárokom
Vzduchovo-vodná tepelné čerpadlo, podlahové kúrenie
Decentralizovaná rekuperácia vzduchu s tepelnoodberom (v lete chladí)
Elektrické žalúzie v celom dome
Všetky podlahové krytiny podľa Vášho výberu
Všetky kúpeľňové zariadenia podľa Vášho výberu.
Príprava na fotovoltaiku,
Balenie "kompletná starostlivosť", kde sa nemusíte o nič starať.
OPTIONÁLNE: Samostatné práce sú samozrejmosťou!
Poradenstvo – Predaj: pani Tatjana Wyss
+43 676 553 77 47, tatjana.wyss@danwood.at
Okamžitá informácia resp. úvodná konzultácia!
Ďalšie ponuky:
https://qr.scan.page/uploads/pdf/1751712478803_686335a001f76.pdf
Vyžiadajte si stavebný opis a katalógy!
Na to je potrebné uviesť Vaše telefónne číslo, e-mailovú adresu a adresu.
Ďakujem Vám!
Parametre nehnuteľnosti
| Vek | Nad 50 rokov |
|---|---|
| Dispozícia | 3+1 |
| Úžitková plocha | 87 m² |
| Celkové poschodia | 1 |
| Stav | Novostavba |
|---|---|
| Číslo inzerátu | 987728 |
| Plocha pozemku | 1 m² |
| Cena za jednotku | 2 564 € / m2 |
Čo táto nehnuteľnosť ponúka?
| Garáž |
| MHD 2 minúty pešo |
V okolí nehnuteľnosti nájdete
Stále hľadáte to pravé?
Nastavte si strážneho psa. Ponuky vybrané na mieru dostanete súhrnne 1× denne e-mailom. S Premium profilom máte po ruke rovno 5 strážcov a keď sa niečo objaví, informujú vás obratom.












