Predaj domu 3+1 • 87 m² bez realitkyGRUNDSTÜCK FERNBLICK EXKLUSIV NUR FÜR DANWOOD-HAUSBAU Lölling Graben Lölling Graben Kärnten 9335
Bungalov: Nižšie v PDF nájdete niekoľko cenových príkladov!
Vážené staviteľky a stavitelia,
Chcete si splniť sen o vlastnom bývaní, ale nie ste si istí, ktorý dodávateľ je pre vás ten pravý, alebo kto vám dokáže postaviť dom podľa vašich predstáv?
S DAN-WOOD-HOUSE si môžete zrealizovať dom snov – aj keď ešte nemáte konkrétny stavebný plán. Vyberte si z 130 rôznych typových domov a prispôsobte si ich bezplatne podľa vlastných želaní. Navyše máte možnosť voľby z rôznych variantov výstavby stien.
Aký genialný objav: Nezáleží na tom, čo DAN-WOOD alebo jednotlivé spoločnosti ponúkajú, ale na tom, ako si predstavujete svoj domov snov! Tu vám poskytneme odborné poradenstvo, ktoré vás nadchne!
Ponúkam vám individuálne poradenstvo pre váš projekt! Začneme úvodnou konzultáciou, ktorú preferujem priamo na vašom stavebnom pozemku. Forma, výškový rozdiel a orientácia pozemku sú tu absolútnymi hlavnými faktormi!
Nemáte ešte pozemok? Žiadny problém! Rád vám poskytnem prehľad o množstve krásnych možností, ako si zariadiť DAN-WOOD-domy. Je tu veľa vzrušujúcich aspektov na prerokovanie: typ domu, dispozícia, tvar strechy, kúrenie, elektroinštalácie, tieňovanie a možnosti vybavenia ako napríklad "Smart Home".
Je naozaj dôležité poznať celkové finančné náklady vrátane ukážkového balíčka! Teším sa, že vám môžem oznámiť, že na tento účel uskutočním predbežnú ukážkovú prehliadku. Takto si tieto náklady môžete jednoducho naplánovať! Je to naozaj skvelá pomoc! Vďaka tomu si môžete nielen zostaviť finančný plán, ale aj vyhľadávať možnosti financovania.
Neváhajte a kontaktujte ma hneď teraz! 0676 5537747
Objednávku katalógu (pod "Katalog Serie Today") zašlite na tatjana.wyss@danwood.at. Prosím, uveďte svoju adresu aj telefónne číslo pri objednávke.
Na vašom pozemku alebo v…
Güssing: cca 2 600 m², úplne rovný terén. Veľkosť a poloha pozemku sú voľne voliteľné – od 500 m² do 1500 m².
Tu nájdete stavebné pozemky najvyššej triedy! Nachádzajú sa v najlepšej lokalite a ponúkajú úchvatný výhľad na nádherný hrad Güssing!
Güssing ponúka budúcnosť, dostupné a energeticky nezávislé bývanie v prírode, čo robí investíciu do nehnuteľnosti tam strategickou hodnotovou investíciou.
Prečo Güssing
Energetický priekopník a udržateľnosť:
• Mesto je energeticky sebestačné a medzinárodne uznávané.
• Vysoké pokrytie (nad 85 %) regionálnym biomasovým diaľkovým teplom vedie k stabilným a výhodným nákladom na kúrenie.
Dostupné ceny nehnuteľností:
• Ceny sú ešte výrazne nižšie ako priemer v Rakúsku, čo umožňuje splniť sen o vlastnom dome s priestranným pozemkom.
Silná infraštruktúra a kvalita života:
• Ako okresné predmestie zaručuje Güssing krátke vzdialenosti a najlepšiu dostupnosť.
• Plánované veľké investície: nový vzdelávací kampus a moderné lekárske centrum (od roku 2026).
• Kultúrne centrum (hrad Güssing) a blízkosť k termálnym kúpeľom.
Úplné otvorenie S7 prináša výrazné výhody pre Güssing a jeho obyvateľov:
• Rýchlejšie spojenie s metropolitnými oblasťami: diaľnica významne skracuje cestu k A2 Süd, čím sa cestovné časy do Grazu a Viedne výrazne znížia.
• Odľahčenie regiónu: Tranzitná doprava, ktorá predtým zaťažovala obce ako Fürstenfeld a Rudersdorf, je presmerovaná na novú trasu.
• Ekonomické impulzy: Nové spojenie, okrem iného aj cez pripojové miesto pri Rudersdorf/Dobersdorf a v blízkosti spojenia Königsdorf, posilňuje Güssing ako okresné predmestie a obchodné centrum vďaka lepšej dostupnosti a podpore nových priemyselných zón.
Hodnotová stabilita a rozvojový potenciál:
• Cielené komunálne investície do infraštruktúry, oživenie mestského jadra a technologické centrum zabezpečia dlhodobú hodnotovú stabilitu nehnuteľností.
• Komunálna stratégia sa zameriava na zvládnutie demografických výziev a etablovanie Güssingu ako atraktívneho miesta pre bývanie aj podnikanie.
Cieľová skupina
Rodiny, ktoré hľadajú budúcnosť, bezpečnosť a spojenie s prírodou, ako aj všetci, ktorí si cenia nízke energetické náklady a ekologickú zodpovednosť.
Ďalšie pozemky v:
Pozemok, 8323 Kohldorf: Stavebný pozemok so slnečným vystavením vo východnom Štajersku, 15 km od Grazu!
Veľkosť: 758 m²; kúpna cena: €66 000, --
Pozemok, 8323 Kohldorf: Slnečný stavebný pozemok v Kohldorfe, 15 km východne od Grazu!
Veľkosť: 787 m²; kúpna cena: €69 000, --
Pozemok, 8311 Markt Hartmannsdorf: Plne pripravený, slnečný stavebný pozemok v Markt Hartmannsdorf
Veľkosť: 920 m²; kúpna cena: €53 000, --
Pozemok, 9335 Lölling Graben: Stavebný pozemok s nádherným výhľadom do diaľky v malebnom Kärnten vo svahoch
Veľkosť: 1001 m²; kúpna cena: €50 000, --
Pozemok, 8075 Hart pri Graze: Slnečný pozemok tesne pred bránami Grazu
Veľkosť: 1980 m²; kúpna cena: €475 000, --
Pozemok na predaj v Stainzi: Slnečný pozemok na okraji Stainzu
Veľkosť: 825 m²; kúpna cena: €149 000,
Medzi vlastníkom pozemku a staviteľom domu neexistuje žiadne obchodné spojenie.
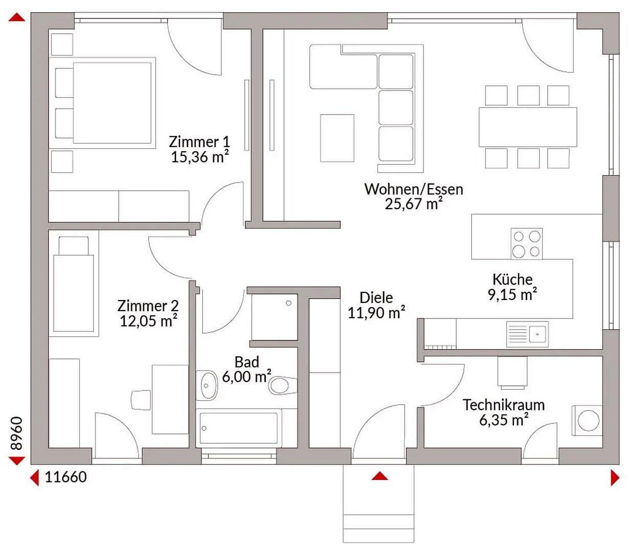
BUNGALOV: 3 izby, kúpeľňa, WC, exkluzívne vybavenie!
Pozemok: 500 m², 1000 m², 1500 m² – k dispozícii podľa požiadavky.
V cene je zahrnuté:
• Hotový stav (kľúč odovzdania – stačí nasadiť nábytok a ihneď bývať!)
• Doručenie a montáž od úrovne horného okraja základu
• Strešná konštrukcia zosilnená pre snehovú záťaž
• Tepelné čerpadlo vzduch-voda
• Podlahové kúrenie
• Decentralizované vetranie obytných priestorov so spätným získavaním tepla (v lete chladí)
• Elektrické žalúzie v celom dome
• Všetky podlahové krytiny podľa vášho výberu
• Všetky sanitárne zariadenia podľa vášho výberu
• Príprava pre fotovoltaiku
• Kompletný balík bezstarostného riešenia
VOLITELNÉ: Vlastná práca je samozrejme možná!
Poradenstvo a predaj: Fr. Tatjana Wyss
+43 676 553 77 47
tatjana.wyss@danwood.at
Okamžité informácie resp. úvodná konzultácia!
Ďalšie ponuky:
https://qr.scan.page/uploads/pdf/1751712478803_686335a001f76.pdf
Požiadajte o stavebný opis a katalógy! Na tento účel je potrebné uviesť vaše telefónne číslo, e-mailovú adresu a adresu.
Ďakujem!
Parametre nehnuteľnosti
| Vek | Nad 50 rokov |
|---|---|
| Dispozícia | 3+1 |
| Úžitková plocha | 87 m² |
| Celkové poschodia | 1 |
| Stav | Novostavba |
|---|---|
| Číslo inzerátu | 987709 |
| Plocha pozemku | 1 m² |
| Cena za jednotku | 2 535 € / m2 |
Čo táto nehnuteľnosť ponúka?
| Garáž |
| MHD 3 minúty pešo |
V okolí nehnuteľnosti nájdete
Stále hľadáte to pravé?
Nastavte si strážneho psa. Ponuky vybrané na mieru dostanete súhrnne 1× denne e-mailom. S Premium profilom máte po ruke rovno 5 strážcov a keď sa niečo objaví, informujú vás obratom.











