
Predaj domu 4+1 • 124 m² bez realitkyBURGBLICK GRUNDSTÜCK EXKLUSIV NUR FÜR DANWOOD-HAUSBAU Güssing Burgenland 7540
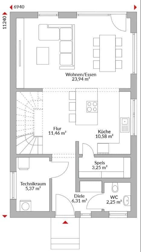
Kompaktný a premyslený – priestorový zázrak na malej pôdoryse. Napriek malej zastavanej ploche tento dom spĺňa všetky požiadavky moderného bývania. Kuchyňa je funkčne usporiadaná, technická miestnosť ponúka dostatok priestoru pre domovú techniku a uskladnenie. Kúpeľňa je vybavená vaňou a sprchou, navyše je k dispozícii aj hosťovská toaleta. Chodba ponúka priestranný priestor pre vešiaky, detská izba aj spálňa majú dobré možnosti uskladnenia. Obývačková/jedálenská časť ohromuje veľkými oknami a otvorenými prechodmi, ktoré opticky zväčšujú priestor.
Ideálne pre tých, ktorí sa zameriavajú na podstatu – bez toho, aby museli obetovať komfort.
Na vašom pozemku alebo v...
Güssing: Približne 2 600 m², lokalita úplne rovná. Veľkosti pozemkov a umiestnenie pozemkov sú voliteľné. Veľkosti od 500 m² do 1500 m².
Tu sú stavebné pozemky extraklasy! V najlepšej lokalite a s úchvatným výhľadom na nádherný hrad Güssing!
Güssing ponúka budúcnostne bezpečný, dostupný a energeticky nezávislý život v prírode, čo robí z investície do nehnuteľnosti tam strategickú hodnotovú investíciu.
Prečo Güssing
Energetický priekopník a udržateľnosť:
Mesto je energeticky sebestačné a medzinárodne uznávané.
Vysoké pokrytie (nad 85 %) regionálnej biomasy-centrálneho kúrenia vedie k stabilným a nízkym nákladom na kúrenie.
Dostupné ceny nehnuteľností:
Ceny sú ešte výrazne nižšie ako rakúsky priemer, čo umožňuje splniť sen o vlastnom dome s priestrannými pozemkami.
Silná infraštruktúra a kvalita života:
Ako okresné predmestie zaručuje Güssing krátke vzdialenosti a najlepšie občianske vybavenie.
Plánované veľké investície:
Nový vzdelávací kampus a moderné centrum pre lekárov (od roku 2026).
Kultúrne centrum (hrad Güssing) a blízkosť kúpeľov.
Úplné otvorenie S7 prináša výrazné výhody pre Güssing a jeho obyvateľov:
Rýchlejšie napojenie na aglomerácie: Rýchlostná cesta výrazne skracuje čas cestovania k diaľnici A2 Južná, čím sa výrazne znižujú cestovacie časy do Grazu a Viedne.
Odľahčenie regiónu: Presmeruje tranzitnú premávku, ktorá predtým výrazne zaťažovala obce ako Fürstenfeld a Rudersdorf, na novú trasu.
Ekonomické impulzy: Nové napojenie, medzi iným cez výjazd pri Rudersdorf/Dobersdorf a vďaka blízkosti spojenia s Königsdorf, posilňuje Güssing ako okresné predmestie a hospodársku lokalitu vďaka zlepšenej dostupnosti a podpore nových priemyselných parkov.
Stabilita hodnoty a rozvojový potenciál:
Cielené komunálne investície do infraštruktúry, oživenia centra mesta a technologického centra zabezpečujú dlhodobú stabilitu hodnoty nehnuteľností.
Komunálna stratégia sa zameriava na zvládanie demografických výziev a budovanie Güssingu ako atraktívnej lokality pre bývanie aj podnikanie.
Cieľová skupina
Rodiny, ktoré hľadajú budúcnosť, bezpečnosť a prírodu, ako aj všetci, ktorí kladú dôraz na nízke náklady na energiu a ekologickú zodpovednosť.
Ďalšie pozemky v:
Pozemok, 8323 Kohldorf: Stavebný pozemok s množstvom slnka vo východnom Štajersku, 15 km od Grazu!
Veľkosť 758 m², kúpna cena € 66 000, --
Pozemok, 8323 Kohldorf: Slnivý stavebný pozemok v Kohldorfe, 15 km východne od Grazu!
Veľkosť 787 m², kúpna cena € 69 000, --
Pozemok, 8311 Markt Hartmannsdorf: Úplne uzemnený, slnečný stavebný pozemok v Markt Hartmannsdorf
Veľkosť 920 m², kúpna cena € 53 000, --
Pozemok, 9335 Lölling Graben: Stavebný pozemok s úchvatným diaľkovým výhľadom v malebnom Karyntijskom pohorí
Veľkosť 1001 m², kúpna cena € 50 000, --
Pozemok, 8075 Hart bei Graz: Slnivý pozemok pred bránami Grazu
Veľkosť 1980 m², kúpna cena € 475 000, --
Pozemok v Stainz na predaj: Slnivý pozemok na okraji mesta Stainz
Veľkosť 825 m², kúpna cena € 149 000,
Medzi vlastníkom pozemku a staviteľom domu neexistuje žiadne ekonomické prepojenie.
Rodinný dom so 4 izbami – exkluzívne vybavenie!
Kľúč odovzdania vrátane dodania a montáže od základu – od vrchnej časti základov.
️ Strešný krov zosilnený pre snehovú záťaž
️ Vzduch-voda tepelná pumpa a podlahové kúrenie
️ Ventilácia obytných priestorov s rekuperáciou tepla (letné chladenie)
️ Elektrické žalúzie v celom dome
️ Výber podlahových krytín a sanitárnych zariadení podľa vlastného výberu
️ Predpríprava pre fotovoltaiku
️ Kompletný balík služieb "postaráme sa o všetko"
Možnosť vlastnej účasti na prácach – úplne podľa vašich predstáv.
Poradenstvo a predaj:
Pani Tatjana Wyss
+43 676 553 77 47
tatjana.wyss@danwood.at
Zabezpečte si úvodnú konzultáciu už teraz!
Požiadajte o stavebnú dokumentáciu a katalógy!
Na tento účel je nevyhnutné uviesť telefónne číslo, e-mail a adresu.
Ďakujeme!
FINANČNÝ KALKULÁTOR
https://www.finaustria.at/finanzierungsrechner
Ďalšie ponuky!
https://qr.scan.page/uploads/pdf/1752348182250_686ba1debcb60.pdf
Parametre nehnuteľnosti
| Stav | Novostavba |
|---|---|
| Číslo inzerátu | 987706 |
| Plocha pozemku | 1 m² |
| Cena za jednotku | 2 248 € / m2 |
| Dispozícia | 4+1 |
|---|---|
| Úžitková plocha | 124 m² |
| Celkové poschodia | 2 |
Čo táto nehnuteľnosť ponúka?
| Garáž |
| MHD 2 minúty pešo |
V okolí nehnuteľnosti nájdete
Stále hľadáte to pravé?
Nastavte si strážneho psa. Ponuky vybrané na mieru dostanete súhrnne 1× denne e-mailom. S Premium profilom máte po ruke rovno 5 strážcov a keď sa niečo objaví, informujú vás obratom.





















