Predaj domu 1+1 • 23 m² bez realitkyBURGBLICK BAUGRUNDSTÜCK EXKLUSIV NUR FÜR DANWOOD-HAUSBAU Güssing Burgenland 7540
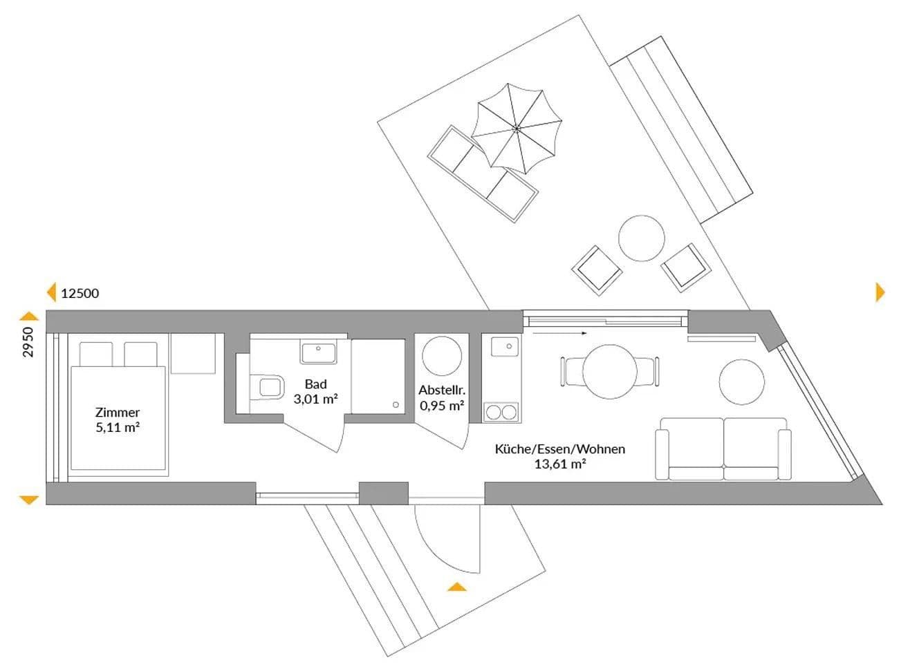
Ranné prebudenie spolu so vtákmi, behanie bosou nohou cez rosiaci vzduch a pozeranie, ako nesmelé slnečné lúče flirtujú s hmlistými závojmi. Po prechádzke pri jazere si vychutnáte prvú kávu dňa. Ešte krátko sa zaležte do postele, kým vás raňajky nepozvú na slnečnú terasu. Páči sa vám takýto scenár? Naša mini-dovolenková chalupa s jednou spálňou by bola ideálnou základňou. Dostatočne malá, aby s ňou takmer nebolo treba riešiť žiadnu námahu, a zároveň dostatočne veľká pre oddychové chvíle. Ponúka priestor pre kuchynský kút, komfortnú sprchovaciu kúpeľňu, kde nič nechýba, a tri sklenené panoramatické steny poskytujú úchvatný výhľad.
Na vašom pozemku alebo v...
Güssingu: cca 2 600 m², lokalita úplne rovinná. Pozemkové plochy a polohy sú možné zvoliť podľa vlastného uváženia. Veľkosti od 500 m² do 1 500 m².
Tu sú pozemky triedy extra! Najlepšia lokalita a ohromujúci výhľad na nádherný zámok Güssing!
Güssing ponúka budúcnosťou zabezpečený, dostupný a energeticky nezávislý život v prírode, čo robí investíciu do nehnuteľnosti tam strategickou hodnotovou investíciou.
Prečo Güssing
Energetický priekopník a udržateľnosť:
Mesto je energeticky sebestačné a medzinárodne uznávané.
Vysoké pokrytie (viac ako 85 %) regionálnym diaľkovým vykurovaním z biomasy vedie k stabilným a nízkym nákladom na vykurovanie.
Dostupné ceny nehnuteľností:
Ceny sú ešte výrazne výhodnejšie ako rakúsky priemer, čo umožňuje splniť sen o vlastnom dome s priestrannými pozemkami.
Silná infraštruktúra a kvalita života:
Ako okresné predmestie zaručuje Güssing krátke vzdialenosti a najlepšiu dostupnosť služieb.
Plánované veľké investície:
Nový vzdelávací kampus a moderné lekárske centrum (od roku 2026).
Kultúrne centrum (zámok Güssing) a blízkosť k termálnym kúpeľom.
Úplné otvorenie S7 prináša významné výhody pre Güssing a jeho obyvateľov:
Rýchlejšie spojenie s metropolitnými aglomeráciami: Rýchlostná diaľnica výrazne skracuje cestovnú dobu na A2 Süd, čím sa výrazne znižujú cesty do Grazu a Viedne.
Odľahčenie regiónu: Nová trasa presmeruje tranzitnú premávku, ktorá predtým zaťažovala obce ako Fürstenfeld a Rudersdorf, na novú trasu.
Ekonomické impulzy: Nové spojenie, okrem iného cez prípojku pri Rudersdorf/Dobersdorf a blízkosť k napojeniu na Königsdorf, posilňuje Güssing ako okresné predmestie a podnikateľské centrum vďaka lepšej dostupnosti a podpore nových priemyselných parkov.
Hodnotová stabilita a rozvojový potenciál:
Cielené komunálne investície do infraštruktúry, oživenia centra mesta a technologického centra zaisťujú dlhodobú hodnotovú stabilitu nehnuteľností.
Komunálna stratégia je zameraná na zvládnutie demografických výziev a etablovanie Güssingu ako atraktívnej lokality pre bývanie a podnikanie.
Cieľová skupina:
Rodiny, ktoré hľadajú budúcnosť, bezpečnosť a prírodu, ako aj všetkých, ktorí si cenia nízke náklady na energiu a ekologickú zodpovednosť.
Ďalšie pozemky v:
Pozemok, 8323 Kohldorf: Stavebný pozemok s veľa slnka vo východnom štajerskom kopcovitom teréne, 15 km od Grazu!
Rozloha 758 m², kúpna cena €66 000, --
Pozemok, 8323 Kohldorf: Slnečný stavebný pozemok v Kohldorfe, 15 km východne od Grazu!
Rozloha 787 m², kúpna cena €69 000, --
Pozemok, 8311 Markt Hartmannsdorf: Plne zavesený, slnečný stavebný pozemok v Markt Hartmannsdorf
Rozloha 920 m², kúpna cena €53 000, --
Pozemok, 9335 Lölling Graben: Stavebný pozemok s vysnívaným diaľkovým výhľadom v malebnom králičkom horskom prostredí
Rozloha 1 001 m², kúpna cena €50 000, --
Pozemok, 8075 Hart pri Graze: Slnečný pozemok pred bránami Grazu
Rozloha 1 980 m², kúpna cena €475 000, --
Pozemok na predaj v Stainz: Slnečný pozemok na okraji dediny Stainz
Rozloha 825 m², kúpna cena €149 000,
Medzi vlastníkom pozemku a staviteľom domu neexistuje žiadne hospodárske prepojenie.
Infračervené vykurovanie a tepelné čerpadlo na ohrev teplej vody a decentralizovaná ventilácia obytných priestorov s rekuperáciou tepla
Dodané hotové
Drevená obložení na fasáde
Vinylová podlaha
Sanitárne zariadenie
Veľkoformátové a vodotesné dlaždice v kúpeľni
Dekoračné dosky na stenách a strope
Príprava pre fotovoltaickú inštaláciu
Objednajte si stavebnú dokumentáciu a katalógy!
Na to je potrebné uviesť telefónne číslo, e-mailovú adresu a adresu.
Ďakujeme!
KALKULAČKA FINANCOVANIA
https://www.finaustria.at/finanzierungsrechner
Parametre nehnuteľnosti
| Vek | Nad 50 rokov |
|---|---|
| Dispozícia | 1+1 |
| Úžitková plocha | 23 m² |
| Celkové poschodia | 1 |
| Stav | Novostavba |
|---|---|
| Číslo inzerátu | 987703 |
| Plocha pozemku | 1 m² |
| Cena za jednotku | 3 552 € / m2 |
Čo táto nehnuteľnosť ponúka?
| Parkovanie | |
| Terasa |
| MHD 2 minúty pešo |
V okolí nehnuteľnosti nájdete
Stále hľadáte to pravé?
Nastavte si strážneho psa. Ponuky vybrané na mieru dostanete súhrnne 1× denne e-mailom. S Premium profilom máte po ruke rovno 5 strážcov a keď sa niečo objaví, informujú vás obratom.



















