Predaj kancelárie • 485 m² bez realitkyBartäcker 6, , Bavorsko
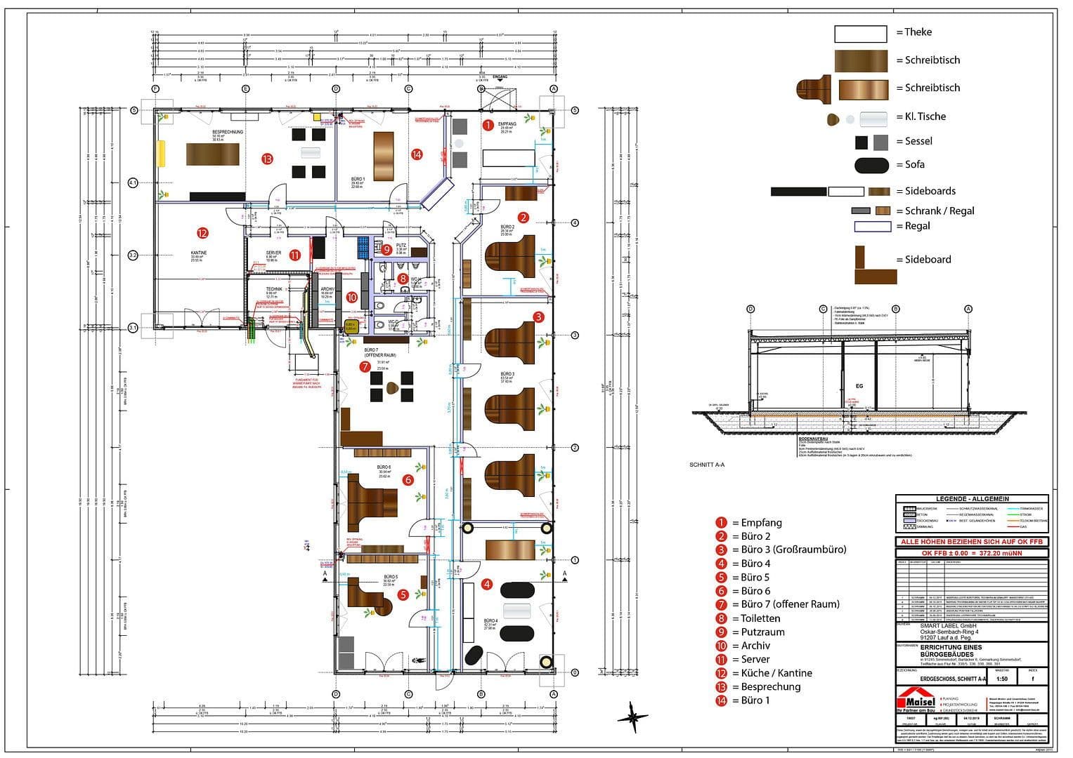
Bartäcker 6, , BavorskoMHD 6minút pešo • Parkovanie • GarážModerná, vysokokvalitná stavba zaujme svojím príťažlivým vzhľadom a premysleným plánovaním a vybavením. L-tvarová stavba je v prípade potreby možné rozdeliť na dve jednotky. Nehnuteľnosť je vybavená na vysokom štandarde a cez okná od podlahy po strop preniká svetlo. Vďaka kompletnej inštalácii roliet (Raffstore) je možné individuálne regulovať prienik svetla.
Možná je aj prípravka na rozšírenie stavby o približne 300 m² využiteľnej plochy. Spoločenské priestory a sanita sú vysoko kvalitné a nachádzajú sa v takmer novom stave. Budova disponuje tromi terasami a nachádza sa v pokojnej lokalite so zelenými plochami.
Okrem toho je pozemok úplne oplotený a disponuje prístupovou kontrolou až ku parkovisku. Osvetlenie, dátové káblovanie, poplachový systém s kamerovým systémom a prepojením na bezpečnostnú službu, podlahové kanály v kanceláriách a zasadacích miestnostiach, LED vnútorné osvetlenie, Sonos mediálny systém, elektronický zamykací systém, serverovňa s klimatizáciou, ako aj podlaha, ktorá je v celom objekte schopná vykurovania a chladenia, spĺňajú najvyššie nároky.
Steny je možné v prípade potreby upraviť, s výnimkou protipožiarnych múrov. Budova bola postavená v roku 2016 firmou Maisel.
Objekt sa nachádza na východ od Schnaittach a je ideálne napojený na diaľnicu A9 (výjazd Schnaittach). Lokalita pozemku je ideálne zapojená do metropolitnej oblasti Norimbergu. Cestovná doba do Norimbergu, Neumarktu, Bayreuthu, Schwabachu a Erlangenu je medzi 30 a 35 minútami.
Budova je vybavená najkvalitnejšími podlahami, dverami, oknami, systémami roliet, sanitárnym vybavením a osvetľovacími telesami. Bola postavená v ocelovej konštrukcii s vysoko tepelně izolovanými Iso-Paneel stenami (12 cm).
Sadzba obchodnej dane obce Simmelsdorf je 310. Celková plocha pozemku je 2585 m², je plne inžiniersky spracovaná a nie sú na ňom žiadne ťarchy ani obmedzenia.
Parametre nehnuteľnosti
| Vek | Nad 50 rokov |
|---|---|
| Číslo inzerátu | 987633 |
| Cena za jednotku | 2 866 € / m2 |
| Stav | Veľmi dobrý |
|---|---|
| Plocha kancelárie | 485 m² |
Čo táto nehnuteľnosť ponúka?
| Garáž | |
| MHD 6 minút pešo |
| Parkovanie | |
| Terasa |
V okolí nehnuteľnosti nájdete
Stále hľadáte to pravé?
Nastavte si strážneho psa. Ponuky vybrané na mieru dostanete súhrnne 1× denne e-mailom. S Premium profilom máte po ruke rovno 5 strážcov a keď sa niečo objaví, informujú vás obratom.
























