Prenájom bytu 2+kk • 58 m² bez realitkySiedlung 17 und 18, , Bavorsko
Siedlung 17 und 18, , BavorskoMHD 1 minúta pešoTáto svetlá a esteticky navrhnutá bytová jednotka obsahuje vstavanú kuchyňu, ktorá je zahrnutá v nájomnom. Okrem toho byt disponuje skladovacou miestnosťou o rozlohe približne 15–20 m² v pivnici a parkovacím miestom.
Pravidelné poplatky za bývanie sú stanovené pre jednú osobu (poplatok sa zvyšuje o 70,00 € za každú ďalšiu osobu), pričom ročný poplatok sa vypočíta a upraví podľa spotreby.
Do poplatkov za bývanie patria náklady na kúrenie, vodu, odvoz odpadu, služby domovníka a satelitnú televíziu.
K objektu patrí približne 600 m² záhradných a zelených plôch, ktoré je možné využívať spoločným spôsobom.
Bývate vo Fischerdorfe, v absolútnej blízkosti Deggendorfu, a máte všetko, čo si srdce želá, na dosah ruky. V bezprostrednom okolí nájdete mäsiarstvo a pekáreň, bazén Elypso, futbalové ihrisko, autobusovú zastávku, kúpalisko aj cyklistickú cestu takmer priamo pred vašimi dverami. K deggendorfskejskému námestiu alebo k vysokej škole sa na bicykli dostanete približne za 5 minút.
Vybavenie: Elegantné
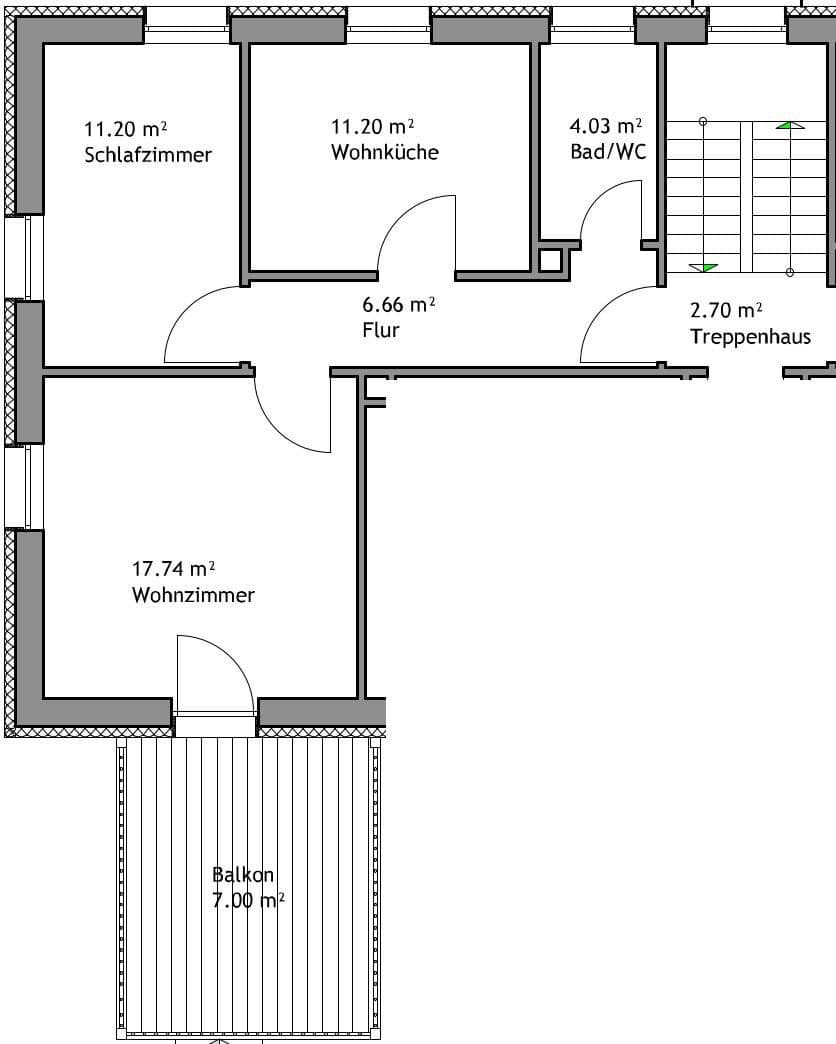
Byt nie je zariadený!
Kúpeľňa je obložená dlažbou a vybavená sprchou. Zvyšok bytu je pokrytý vinylovou podlahou.
K bytu patrí vstavaná kuchyňa, ktorá je zahrnutá v nájomnom. Obsahuje chladničku s oddelenou mrazničkou, umývadlo, rúru a keramickú varnú dosku so digestorom z nerezovej ocele.
Parkovacie miesto umožňuje parkovanie bez otravných hľadaní voľného miesta.
Kúpeľňa disponuje toaletou a umývadlom. V pivnici je pripojka pre práčku.
Celý dom bol čerstvo zrenovovaný. V rámci rekonštrukcie boli inštalované nové okná (trojitá zateplená), ktoré je možné elektricky zastieniť rolety.
Okrem toho je na celom dome aplikovaná kompletná tepelná ochrana, čo umožňuje úsporu nákladov na kúrenie. Byt je tiež vybavený priestrannou terasou (cca 14 m²) a prístupom do záhrady.
Celý dom je zásobovaný centrálnym plynovým kúrením a kúrením na drvené štiepky.
Budova bola postavená solídnou kameňou. Byt nemá žiadne praskliny a je bez plesní! Zvuková izolácia oproti ostatným bytom je veľmi dobrá, takže rušenie minimálne postrádate.
Pri tomto byte sa neuplatňujú
- žiadne poplatky sprostredkovateľa (podľa zákonných predpisov od 01.06.2015) a
- žiadny poplatok za prevzatie vstavanej kuchyne (zahrnutý v nájomnom).
Ak máte záujem dohodnúť si termín obhliadky, kontaktujte prosím pána Schillera na čísle:
Mobil: 0151 28535182
Miesto: Sídliště 17 a 18, 94469 Deggendorf
Byt č. 11
Parametre nehnuteľnosti
| Vek | Nad 50 rokov |
|---|---|
| Stav | Po rekonštrukcii |
| Číslo inzerátu | 987607 |
| Úžitková plocha | 58 m² |
| Dostupné od | 1. 4. 2026 |
|---|---|
| Dispozícia | 2+kk |
| PENB | B - Veľmi úsporné |
| Cena za jednotku | 10 € / m2 |
Čo táto nehnuteľnosť ponúka?
| Pivnica | |
| Terasa |
| MHD 1 minúta pešo |
V okolí nehnuteľnosti nájdete
Stále hľadáte to pravé?
Nastavte si strážneho psa. Ponuky vybrané na mieru dostanete súhrnne 1× denne e-mailom. S Premium profilom máte po ruke rovno 5 strážcov a keď sa niečo objaví, informujú vás obratom.











