Prenájom kancelárie • 2225 m² bez realitkyBerlin Tegel Berlin 13507
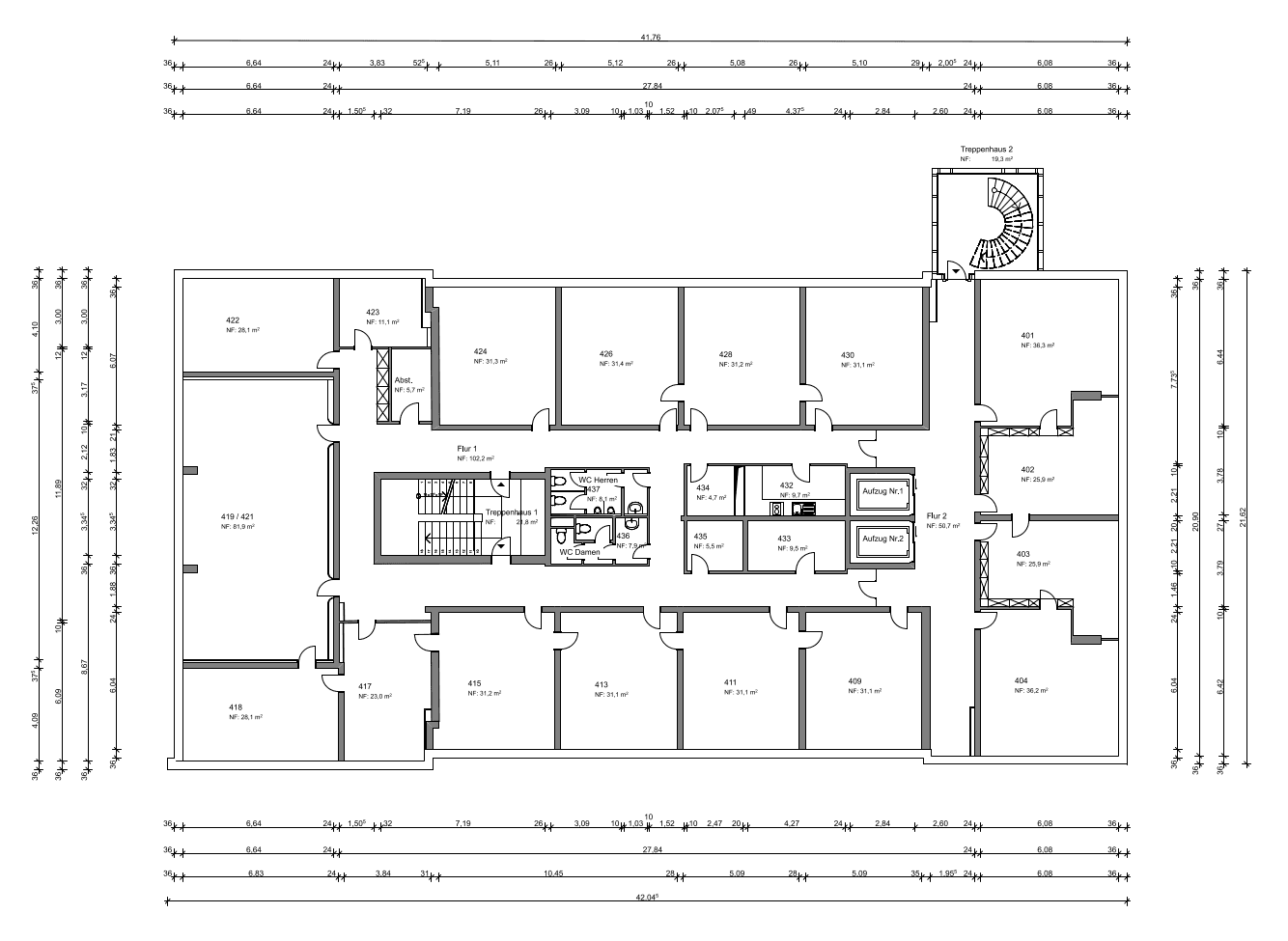
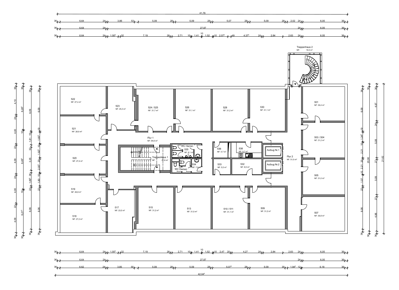
Berlin Tegel Berlin 13507MHD 4 minúty pešo • VýťahPrenájom bez provízií priamo od majiteľa: Na prenájom sú od 01.07.2026 k dispozícii 4., 5. a 6. poschodie v modernej kancelárskej budove v Berlíne-Tegel. Každé kancelárske poschodie o rozlohe približne 740 m² je možné prenajať samostatne alebo spoločne. Nájomné činí 12 € za m² a zálohy na prevádzkové náklady 3,50 € za m² (vždy bez DPH).
Prístup na pozemok je zabezpečený závorou a v vchodovej hale kancelárskej budovy sa nachádza recepcia. Prenájomné priestory sú dostupné prostredníctvom dvoch výťahov.
Kancelárske priestory sa nachádzajú v pokojnej, ale zároveň dopravne výhodnej lokalite v Berlíne-Tegel na severozápade Berlína.
Diaľnica A 111 je vzdialená len približne 5 minút. V bezprostrednom okolí sa nachádzajú autobusové linky 133 a X33 s napojením na stanicu S-Bahn Tegel, ako aj linky metra U6 a U8.
Len približne 600 m vzdialené jazero Tegel navyše ponúka atraktívnu možnosť na oddych a vytvára príjemné prostredie pre prestávky a aktivity po práci.
Parametre nehnuteľnosti
| Vek | Nad 50 rokov |
|---|---|
| Číslo inzerátu | 987562 |
| Cena za jednotku | 12 € / m2 |
| Stav | Dobrý |
|---|---|
| Plocha kancelárie | 2 225 m² |
Čo táto nehnuteľnosť ponúka?
| Pivnica | |
| MHD 4 minúty pešo |
| Výťah |
V okolí nehnuteľnosti nájdete
Stále hľadáte to pravé?
Nastavte si strážneho psa. Ponuky vybrané na mieru dostanete súhrnne 1× denne e-mailom. S Premium profilom máte po ruke rovno 5 strážcov a keď sa niečo objaví, informujú vás obratom.



