Predaj domu 5+1 • 127 m² bez realitkyEschenweg 41 Bamberg Bamberg Bayern 96050
Ušetríte 19 278 eur maklérovej provízie.
Tento upravený radový dom z roku 2000 sa nachádza v pokojnej a obľúbenej bývalej NATO osade – rodinne priateľskom mieste s výrazným susedským duchom.
Na prízemí vás čaká svetlý obývací priestor o rozlohe približne 34 m² s prístupom na slnečnú západnú terasu – ideálny pre uvoľnené večery a príjemné chvíle. Samostatná kuchyňa, hostinská toaleta a príjemný vstupný priestor tieto priestory dotvárajú.
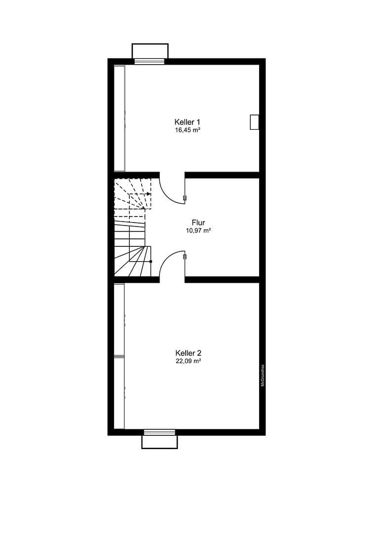
V horných poschodiach sú k dispozícii štyri útulné spálne a dve veľké kúpeľne so sprchou a vaňou – ideálne pre rodiny, hostí alebo domáce kancelárie. Plne vybavený suterén ponúka dodatočný úložný priestor, práčovňu a flexibilné možnosti využitia.
Dom je moderný, dobre izolovaný a zaujme vynikajúcimi energetickými hodnotami – čo predstavuje výhodu pre komfort a nízke prevádzkové náklady. Navyše je možné zakúpiť dva vonkajšie parkovacie miesta za 20 000 €.
Dom je ideálny pre rodiny s až piatimi osobami.
Eschenweg v bývalej „NATO osade“ na východe Bambergu je oveľa viac než len adresa – je to miesto, kde sa človek usadí a cíti sa dobre. Pokojná lokalita, presýtená zelenou a harmonickou susednosťou, sa už dávno etablovala ako obľúbené útočisko pre mladé rodiny.
Tu môžu deti bezstarostne hrať na bezpečných uliciach, zatiaľ čo vy si užívate výnimočnú kvalitu bývania. Osada vyžaruje atmosféru bezpečia a spolupatričnosti – pravý pocit domova, ktorý je hneď na prvý pohľad cítiť.
Napriek idylickej polohe ste výborne dopravovo napojení: len približne 500 metrov od domu sa nachádza zastávka mestského autobusu s 15-minútovým intervalom, ktorá vás pohodlne dopraví do centra. Autom dosiahnete diaľničný uzol už z približne 1 000 metrov – ideálne pre dojížďajúcich alebo výlety do okolia.
V bezprostrednej blízkosti sa nachádzajú obchodné možnosti, školy, materské školy a možnosti voľnočasových aktivít, takže vy a vaša rodina máte krátke trasy a najvyšší komfort bývania.
Eschenweg spája pokojné, prírodné bývanie s najlepšou infraštruktúrou – čím vytvára ideálne prostredie, kde rodinný život a každodenné sny idú ruka v ruke.
Parametre nehnuteľnosti
| Vek | Nad 50 rokov |
|---|---|
| Stav | Dobrý |
| Číslo inzerátu | 987522 |
| Úžitková plocha | 127 m² |
| Celkové poschodia | 3 |
| Dostupné od | 4. 2. 2026 |
|---|---|
| Dispozícia | 5+1 |
| PENB | B - Veľmi úsporné |
| Plocha pozemku | 178 m² |
| Cena za jednotku | 4 094 € / m2 |
Čo táto nehnuteľnosť ponúka?
| Pivnica | |
| MHD 7 minút pešo |
| Parkovanie | |
| Terasa |
V okolí nehnuteľnosti nájdete
Stále hľadáte to pravé?
Nastavte si strážneho psa. Ponuky vybrané na mieru dostanete súhrnne 1× denne e-mailom. S Premium profilom máte po ruke rovno 5 strážcov a keď sa niečo objaví, informujú vás obratom.























