Predaj domu • 250 m² bez realitkyHuglfing Huglfing Bayern 82386
Huglfing Huglfing Bayern 82386MHD 2 minúty pešo • Parkovanie • GarážViacgeneračný dom v Huglfingu, súkromná ponuka.
Dom bol postavený v roku 1982 vo vysokej stavebnej kvalite. Vykurovanie zabezpečuje olejové centrálne kúrenie z roku 2008 a podlahové kúrenie vo všetkých miestnostiach.
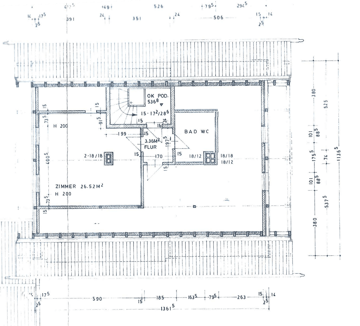
Prízemie (1. obytná jednotka):
V prízemnom byte bol inštalovaný centrálny murivý kachľový ohrievač s ťahmi a elektronickým ovládaním (2009). Kachľový ohrievač má veľké okno do obývacej izby a je možné ho Kŕmiť (zapáliť) zo vstupného chodby. Kúpeľňa (sprcha a WC) a kuchyňa v prízemí boli kompletne zrekonštruované. Ku kuchyni návesňuje skladovacia miestnosť.
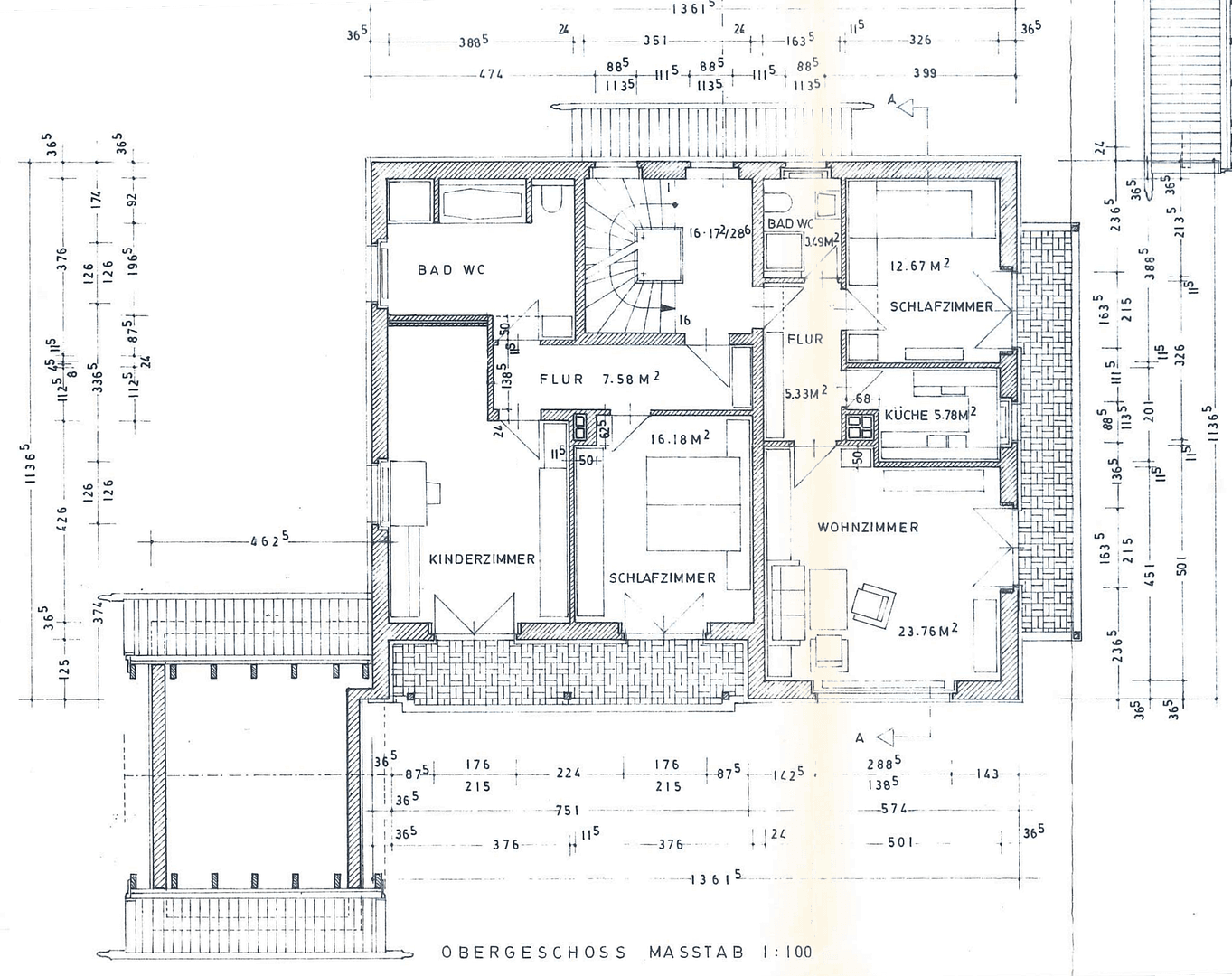
1. poschodie (možné vytvoriť 2 samostatné obytné jednotky):
Tri spálne (rozloženie 2/1) v 1. poschodí sú vybavené korekovými podlahami. Kúpeľne (každá so sprchou a WC) boli zrekonštruované. Menšia obytná jednotka disponuje vstavanou kuchyňou a balkónom orientovaným na východ. Balkón je prístupný z obývacej izby a spálne.
Druhá obytná jednotka má chránený balkón na južnej strane. Na balkón je prístup cez obe spálne. Väčšia izba má obloženú časť, ktorá môže byť využitá aj ako kuchynský kút.
2. poschodie:
Druhé poschodie pozostáva z jednej veľkej miestnosti a zrekonštruovanej kúpeľne (sprcha a WC) bez výškových obmedzení. K veľkej miestnosti návesňuje kriechspeicher (nízke nezateplený priestor). Zvyšok poschodia tvorí svetlý podkrovný priestor s izolovanou podlahou. V tomto priestore je možné vytvoriť tri spálňové linky oddeliteľné záclonami. Kriechspeicher je od miestnosti oddelený dverami.
Sklep:
Sklep pozostáva z práčovne, hostinského WC, kotolne, veľkej hobby miestnosti a množstva úložného priestoru.
Vonkajšia časť:
Dom je obklopený peknou záhradou. Pozemok je oplotený plotom z larchevého dreva. Na juhovej strane domu návesňuje terasa a veľký krytý vonkajší posedenie. Na severe je veľká drevená plošina. K dispozícii sú dvojgaráž, 2 parkovacie miesta pred garážou a ešte 2 ďalšie parkovacie miesta.
Dom sa nachádza na severnom okraji obce Huglfing. Vďaka vyvýšenej polohe nad obcou je možný výhľad na Alpy v pozadí. Len pár minút chôdze vám umožní, aby ste si počas prechádzok vychutnali nádherné alpské panorama.
V pešej vzdialenosti sa nachádza rodinná ordinácia praktického lekára, pekáreň a obchod Edeka.
Vzdialenosť od železničnej stanice: 2 km
Vzdialenosť od A95 (Sindelsdorf): 16 km / 13 minút
Spálňa v 1. poschodí s korekovými podlahami.
Jedáleň a spálňa v prízemí s parketovými podlahami.
Chodby, kuchyne a kúpeľne sú obložené dlažbou.
Parametre nehnuteľnosti
| Vek | Nad 50 rokov |
|---|---|
| Stav | Po rekonštrukcii |
| PENB | C - Hospodárne |
| Plocha pozemku | 931 m² |
| Cena za jednotku | 5 000 € / m2 |
| Dostupné od | 4. 2. 2026 |
|---|---|
| Číslo inzerátu | 986975 |
| Úžitková plocha | 250 m² |
| Celkové poschodia | 4 |
Čo táto nehnuteľnosť ponúka?
| Balkón | |
| Garáž | |
| MHD 2 minúty pešo |
| Pivnica | |
| Parkovanie | |
| Terasa |
V okolí nehnuteľnosti nájdete
Stále hľadáte to pravé?
Nastavte si strážneho psa. Ponuky vybrané na mieru dostanete súhrnne 1× denne e-mailom. S Premium profilom máte po ruke rovno 5 strážcov a keď sa niečo objaví, informujú vás obratom.










































