Predaj bytu 5+1 • 145 m² bez realitkyHamburg Harburg Hamburg 21079
Hamburg Harburg Hamburg 21079MHD 1 minúta pešo • Výťah • GarážAk hľadáte niečo výnimočné, vzdialené od každodenného štandardu, ste tu presne na správnom mieste. Zažite loftové bývanie s veľkým priestorom na sebarealizáciu rozprestierajúcim sa cez 3 priestranné, na svetlo prelietajúce úrovne.
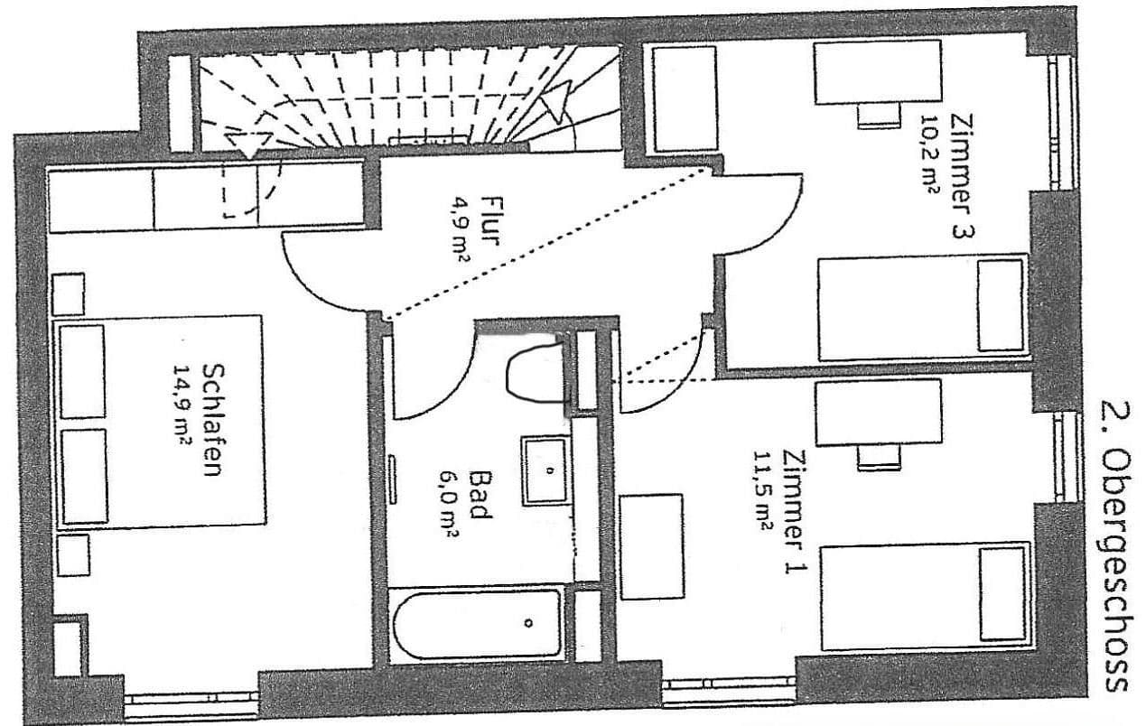
Na spodnej úrovni (2. poschodie) sa nachádzajú 3 spálne a kúpeľňa s vaňou. Stredné poschodie (3. poschodie = hlavná vstupná úroveň) je vybavené obývacou izbou, kuchyňou s jedálenským kútom, kanceláriou/izbou pre hostí a sprchovacou kúpeľňou, pričom na hornom poschodí (4. poschodie) sa nachádza galéria a technická/comunálna miestnosť s ďalším samostatným vstupom/východom do schodiska.
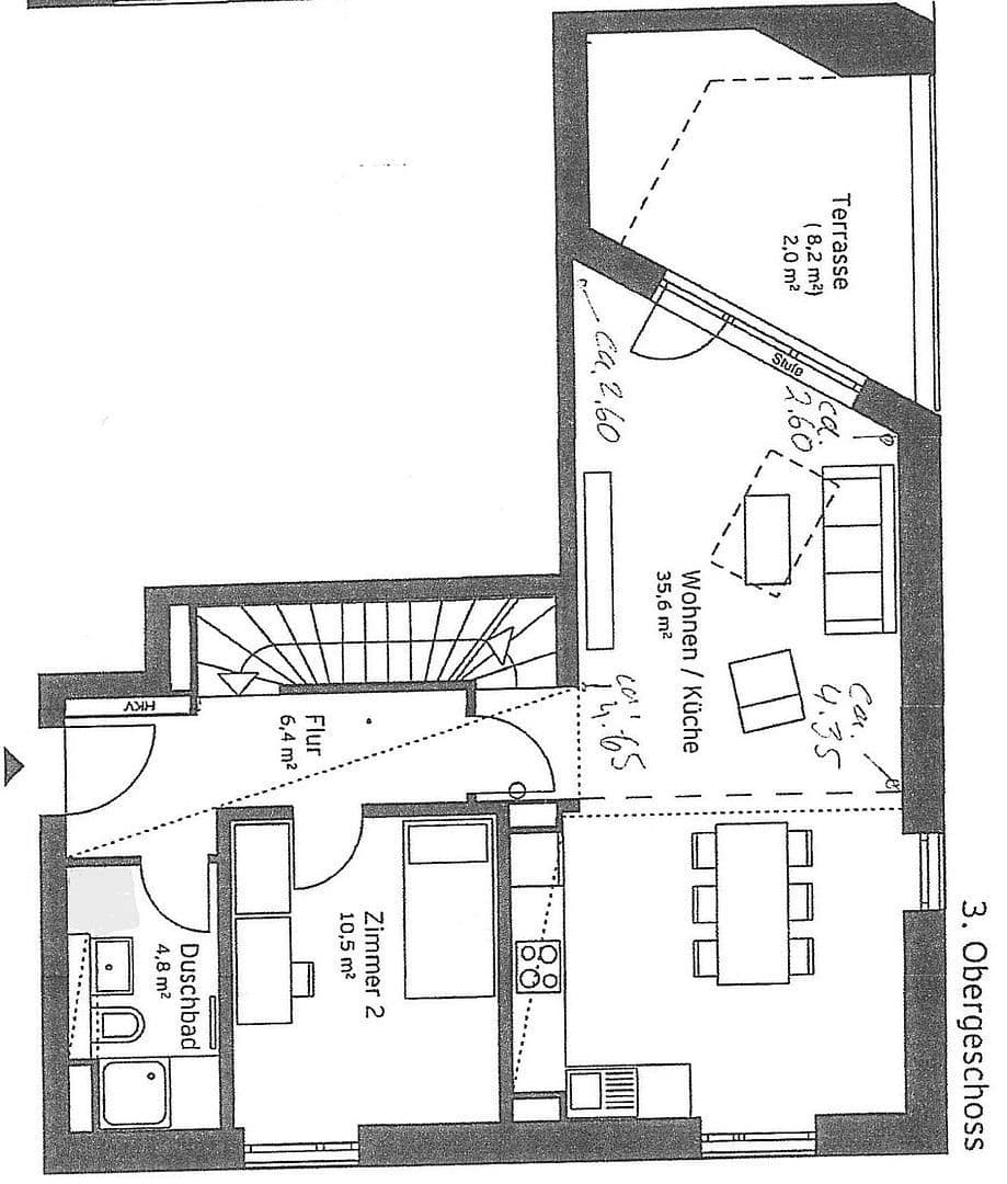
Hlavný vstup je na strednom poschodí (3. poschodie). Odtiaľ vedie chodba do svetlého, impozantného obytného priestoru s takmer 5-metrovou výškou stropov. Vďaka neprekážanému výhľadu na galériu vzniká jedinečný pocit priestoru – priestranný, presýtený svetlom a s pôsobivým architektonickým dojmom. Z každého okna priestrannej obývacej a jedálenskej časti sa otvára ďalekohľadný výhľad na pokojné vodné plochy vnútorného prístavu, na priľahlý nákupný kanál a Lotsekanal. Obývacia časť navyše poskytuje prístup na slnečný balkón orientovaný na západ. Vďaka prepracovanému pôdorysu má dostatok miesta pre rastliny, pre nevyhnutný gril aj pohodlný kút na sedenie. Tu si môžete vychutnať pokojnú chvíľu na čerstvom vzduchu – ideálne na zakončenie dňa pri pôsobivom západe slnka.
Na rovnakej úrovni sa taktiež nachádza izba pre hostí či kancelária a sprchovňa. Sprchovňa bola navrhnutá obdobne ako kúpeľňa na nižšom poschodí – s tmavou podlahou, svetlými obkladmi stien a preladená farebne zvýraznenými mozaikovými detailmi v niektorých častiach.
Na spodnej úrovni (2. poschodie) sa nachádzajú tri spálne a hlavná kúpeľňa s vaňou. Štýlová kombinácia tmavých podlahových dlaždíc, svetlých obkladov a jemných mozaikových detailov dodáva kúpeľni – rovnako ako sprchovnici na hornom poschodí – elegantný, ale zároveň výrazne uvoľnený charakter. Podlahové až k oknám ohybné okná vpúšťajú hojnosť denného svetla do všetkých izieb a napomáhajú vytvoriť príjemný pocit z bývania. Trojitým zasklením vybavené okná s integrovaným ventilačným systémom zaručujú v každom momente vyváženú atmosféru a radi vám ich pri prehliadke aj predstavíme.
Galéria na 4. poschodí zaujme otvorenou architektúrou a pôsobivým výhľadom cez strechy susediacich budov až k nákupnému kanálu. Tento otvorený a svetlom prelietajúci priestor je momentálne využívaný ako relaxačná a voľnočasová zóna, ktorá ponúka priestor pre športové aktivity, ale aj pre pokojnú chvíľu v pohodlnom sedení. Vedľa sa nachádza technická miestnosť domu, ktorá slúži ako multifunkčný priestor. Okrem práčky a sušičky je tu umiestnená aj technika pre automatické vetranie s rekuperáciou tepla a ističová skriňa. Napriek tomuto vybaveniu ponúka miestnosť dostatok priestoru pre poličky a ďalšie úložné riešenia – ideálne na uskladnenie potravín či bežného nákupu priamo a pohodlne. (Dodatočne je k dispozícii aj samostatná pivnica.) Obzvlášť komfortným prvkom je dodatočný vstup do technickej miestnosti, ktorý nielenže slúži ako druhá núdzová východ, ale aj umožňuje pohodlné uskladnenie nákupov. Týmto premyslene navrhnutým priestorom sa spája technológia, funkcionalita a komfort – skutočný prínos pre každodenný život.
Byt sa nachádza v obľúbenom Harburger Binnenhafen, štvrti, ktorá nemá náhodou prezývanú „malá sestra“ HafenCity. Tu sa moderné bývanie pri vode spája s mestským životným štýlom a bezprostrednou blízkosťou prírody. V pešej vzdialenosti nájdete množstvo kvalitných reštaurácií, útulných kaviarní, ako aj populárnu Lämmertwiete so svojou pestrou gastronomickou scénou. Pravidelne sa konajúci „Týždenný trh na piesku“ s regionálnymi produktmi zabezpečuje živú atmosféru a pohodlný prístup k čerstvým potravinám.
Vnútorný prístav navyše láka rôznymi možnosťami na voľný čas. Vybudovaná cyklotrasa je ideálna pre dlhé bicyklové výlety, zatiaľ čo milovníci vodných športov aj prechádzkoví pozdĺž upravenej pobrežnej promenády a Elbstrand určite neostanú sklamaní. Početné kotviace miesta pre obytné a domáce lode dodávajú štvrti jedinečný, morsko-mestský charakter. Aj zelené rekreačné zóny sú iba niekoľko minút vzdialené – idylický vonkajší mlynský rybník so svojím rozsiahlym parkom či Harburger Berge s turistickými a cyklistickými chodníkmi ponúkajú dokonalú príležitosť na vychutnanie prírody a oddych.
Harburger Binnenhafen je zároveň v kontinuálnom rozvoji. Štvrť sa už roky neustále rozrastá a rozvíja, a to architektonicky aj infraštruktúrne, čím sa mení na modernú, prestížnu mestskú štvrť. Nové obytné aj komerčné priestory, atraktívne zrekonštruované vonkajšie plochy pri vode a neustále zlepšovanie celého areálu robia túto lokalitu mimoriadne perspektívnou. Výnimočným prvkom je aj jedinečná architektúra budov navrhnutých v rámci IBA, v ktorých sa byt nachádza – výrazne vyniká oproti okoliu a dodáva štvrti moderný, jedinečný charakter.
Dopravné spojenie a dostupnosť:
Dopravné spojenie v Harburger Binnenhafen je skutočne vynikajúce. Autobusová zastávka sa nachádza priamo pred dverami, pričom stanica Harburg Rathaus je pohodlne dostupná pešo za iba 7 minút. Odtiaľ sa pomocou S-Bahn dostanete za približne 18 minút (šesť zastávok) na hlavnú stanicu Hamburgu. Vďaka vybudovanej sieti cyklotrás je centrum mesta rýchlo dostupné aj na bicykli.
Prívetivosť pre rodiny a vzdelanie:
Harburger Binnenhafen je rodinne prívetivá štvrť s krátkymi vzdialenosťami a ideálnou infraštruktúrou. Tri materské školy sú v pešej vzdialenosti a aj základná škola „am Park“ je ľahko dostupná pešo. Niekoľko stredných škôl sa nachádza v blízkosti a sú dostupné aj pešo alebo pohodlným autobusom. Kombinácia dobrej dostupnosti, rozmanitých možností voľného času a prírodného prostredia robí z tejto štvrte veľmi atraktívnu lokalitu pre rodiny.
Harburger Binnenhafen tak spája urbanitu, morské čaro a blízkosť prírody do životného prostredia s jedinečnou kvalitou – ide o lokalitu, ktorá osloví singlov, páry aj rodiny a poskytuje priestor pre individuálne životné štýly.
+ Trojitým zasklené, podlahové okná na všetkých poschodiach – v 4 spálňach so špeciálnymi ventilačnými systémami
+ Automatický ventilačný systém s rekuperáciou tepla
+ Podlahové kúrenie vo všetkých miestnostiach
+ Parketové podlahy z masívneho dreva vo všetkých priestoroch (okrem kúpeľní s obkladmi)
+ Kúpeľňa s vaňou a izba pre hostí so sprchovacím kútom
+ Vstavaná kuchyňa s kvalitnými spotrebičmi
+ Všetky zásuvky sú už inštalované s detskými poistkami
+ Veľký balkón orientovaný na západ, ideálny pre dokonalý západ slnka
+ Strešné okná Velux s vonkajšími rolety, ovládateľné diaľkovo a s automatickým uzatváraním pri daždi
+ Technická/comunálna miestnosť v byte s vlastným vstupom
+ Súčasťou je aj súkromná pivnica, spoločné priestory pre detské kočíky/hračky a samostatné či priestranné odkladacie priestory pre bicykle v úrovni pod garážou
+ Garážové parkovacie miesto s prípravou na pripojenie E-nabíjačky (Wallbox)
+ Výťah
Pre ďalšie informácie alebo dohodnutie prehliadky nás neváhajte kontaktovať.
!ŽIADNA PROVÍZIA/COURTAGE, KEĎZE IDE O SÚKROMNÝ PREDAJ!
Parametre nehnuteľnosti
| Vek | Nad 50 rokov |
|---|---|
| Dispozícia | 5+1 |
| Číslo inzerátu | 986913 |
| Úžitková plocha | 145 m² |
| Stav | Veľmi dobrý |
|---|---|
| Poschodie | 3. poschodie z 3 |
| PENB | B - Veľmi úsporné |
| Cena za jednotku | 5 483 € / m2 |
Čo táto nehnuteľnosť ponúka?
| Balkón | |
| Garáž | |
| MHD 1 minúta pešo |
| Pivnica | |
| Výťah |
V okolí nehnuteľnosti nájdete
Stále hľadáte to pravé?
Nastavte si strážneho psa. Ponuky vybrané na mieru dostanete súhrnne 1× denne e-mailom. S Premium profilom máte po ruke rovno 5 strážcov a keď sa niečo objaví, informujú vás obratom.


































