Prenájom bytu 5+1 • 140 m² bez realitkyForstweg 4, , Dolné Sasko
Forstweg 4, , Dolné SaskoMHD 2 minúty pešo • ParkovanieNa pokojnej bočnej ulici rozľahlej obytné oblasti rodinných domov a v blízkosti lesa sa nachádza tento 5-izbový byt v prízemí dvojrodinného domu.
Dom bol v roku 2021 dôkladne zrekonštruovaný.
Boli inštalované kvalitné trojitové okná, fasáda bola izolovaná, kúpeľne, chodby a kuchyňa boli obložené obkladmi z travertínového vápenatého pieskovca. Podlahy v spálňach a obývacej izbe sú z dubového parketu. V obývacej izbe je krb a veľké okná/posuvné dvere vedúce do záhrady. Izby majú vysoké stropy (v obývacej/chutynskej časti až do 3 m).
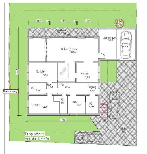
Skutočná obytná plocha presahuje 140 m². Takmer 30 m² veľká terasa nebola započítaná do výpočtu plochy, rovnako ako úložňa a kotolňa. Byt má vlastné kúrenie a samostatný priestranný vstup.
Momentálne sa objekt vykurčuje kondenzačnou olejovou kotolňou. Ročná spotreba bývalých nájomcov je 80 litrov ročne. Plánovaná je inštalácia tepelného čerpadla v roku 2026, ktoré je už na mieste pripravené. Byt má vlastný solárny systém na ohrev teplej vody. Okrem toho byt disponuje samostatnou fotovoltaickou/solárnou inštaláciou s výkonom 3 kW a batériovým úložiskom 7 kW, ktoré má zabezpečiť výrobu približne 3000 kWh elektriny pre vlastnú spotrebu. Nachádzajúca sa garáž slúži navyše ako úložný priestor pre obe nájomné strany. Na ulici je k dispozícii dostatočný počet parkovacích miest pre ďalšie autá. Pri efektívnom parkovaní by do príjazdovej cesty mohli zaparkovať aj dve autá za sebou.
Podiel na záhrade je cca 250 m², zahŕňajúci priestory pred, za a vedľa domu/tohto bytu v prízemí.
Veľmi pokojná obytná štvrť rodinných domov so záhradami.
Príjemná, osobná susedská komunita.
200 m do lesa.
Približne 3 km do centra mesta Meller.
(viac hore uvedený popis objektu)
Parametre nehnuteľnosti
| Vek | Nad 50 rokov |
|---|---|
| Stav | Po rekonštrukcii |
| Číslo inzerátu | 986824 |
| Cena za jednotku | 8 € / m2 |
| Dostupné od | 1. 6. 2026 |
|---|---|
| Dispozícia | 5+1 |
| Úžitková plocha | 140 m² |
Čo táto nehnuteľnosť ponúka?
| Parkovanie | |
| Terasa |
| MHD 2 minúty pešo |
V okolí nehnuteľnosti nájdete
Stále hľadáte to pravé?
Nastavte si strážneho psa. Ponuky vybrané na mieru dostanete súhrnne 1× denne e-mailom. S Premium profilom máte po ruke rovno 5 strážcov a keď sa niečo objaví, informujú vás obratom.




















