
Predaj domu 3+kk • 77 m² bez realitkyVagel-Griep-Platz 5 Hamburg-Eißendorf Eißendorf Hamburg 21077
Na predaj je masívne postavený radový dom v atraktívnej lokalite s dedinským šarmom v hamburgerkej štvrti Eißendorf, ktorý bol v roku 2025 komplexne zmodernizovaný.
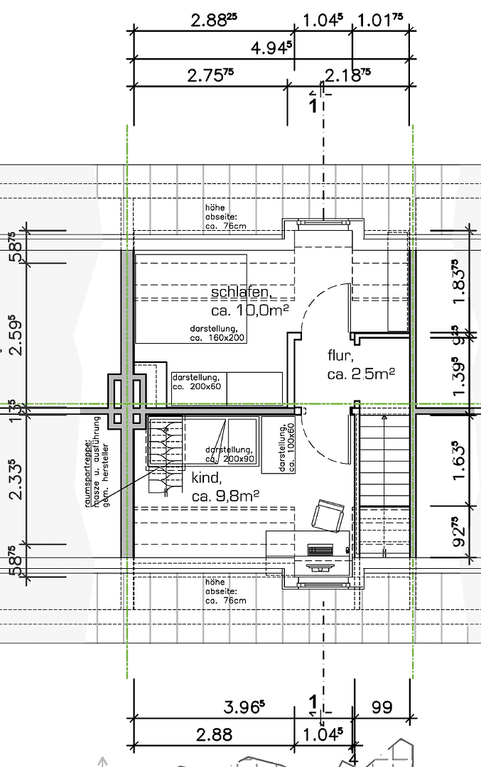
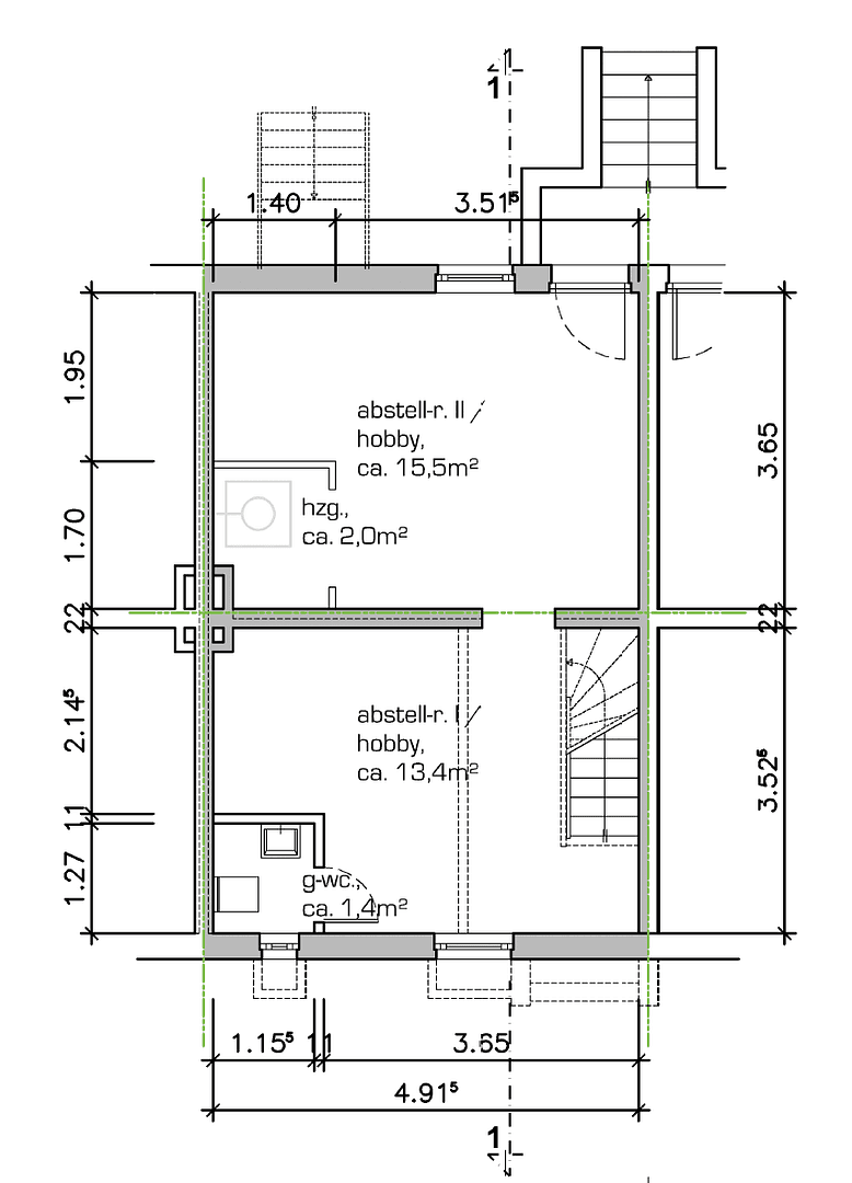
Pôvodne postavený v roku 1952, dom disponuje 3,5 izbami a obytnou plochou cca 76,6 m². Ponuku priestorov dopĺňa aj útulne spracované podkrovia a plne vykurovaná pivnica s využiteľnou plochou približne 31 m².
Špeciálna výhoda: Na želanie kupujúcej alebo kupujúceho možno schodisko vedúce na podkrovia pred odovzdaním a na náklady predávajúceho premiestniť do chodby. Tým sa podkrovia stane samostatne prístupným a využiteľným ako vlastný, uzavretý priestor. Rovnako sa pred odovzdaním nainštaluje vonkajšie schodisko z obývacej izby na terasu – podľa výberu buď priamo, alebo so štvrtovým oblúkom, úplne podľa želania kupujúceho a taktiež na náklady predávajúceho.
Vykurovaná pivnica s vonkajším vstupom ponúka množstvo možností využitia, či už ako priestor pre záľuby, úložný priestor alebo ako pracovňa z domu.
Reálne rozdelený pozemok má plochu 325 m². Nejedná sa o spoločné vlastníctvo (WEG) ani o zmluvu o stavebnom práve. Celú ponuku dopĺňa masívne postavená samostatná garáž.
Tento zmodernizovaný radový dom spája charakter ustáleného obytného prostredia s moderným komfortom bývania a je ideálny pre páry alebo malé rodiny, ktoré chcú bývať blízko mesta, no zároveň v prírode.
Dom sa nachádza v pokojnej a udržiavanej obytné štvrti v obľúbenej hamburgerkej štvrti Eißendorf, ktorá patrí do okresu Harburg. Lokalita je charakteristická rodinne priateľským prostredím a príjemným susedstvom prevažne radových a rodinných domov, ako aj zelene narasteným okolím.
Pokojné obytné ulice a hojná zeleň určujú okolie. Nedaleký Harburger Stadtpark s idylickým vonkajším mlynským rybníkom a Fischbeker Heide ako rozsiahle chránené územie pozývajú na prechádzky, športové aktivity a relaxačné chvíle na čerstvom vzduchu.
Aj infraštruktúra nezanecháva nič na náhodu: školy, materské školy, ihriská, športové zariadenia a rôzne možnosti nakupovania sú ľahko dostupné. Výborné spojenie s verejnou dopravou zaisťujú autobusové linky v pešej vzdialenosti a stanica S-Bahn Harburg, odkiaľ sa rýchlo dostanete do centra Hamburgu. Autom trvá cesta do centra približne 20 až 30 minút.
Táto lokalita spája pokojné, prírodné bývanie s mestskou dostupnosťou a ponúka ideálne podmienky pre rodiny, páry a pracujúcich, ktorí si cenia kvalitu života v uvoľnenej atmosfére.
Nehnuteľnosť je vybavená plynovým kondenzáciovým kotlom a trojsklenenými oknami (všetky z roku 2014).
V roku 2025 prebehli tieto modernizačné opatrenia:
+ čiastočná obnova elektroinštalácie
+ výmena stien, podláh a obkladov dlažbou
+ montáž nových vnútorných dverí a rámov
+ úprava a optimalizácia dispozície
+ vytvorenie novej kúpeľne v prízemí
+ inštalácia hostinského WC v pivnici
+ čistenie strechy a revitalizácia fasády
+ oprava schodiska, vonkajších dverí a okien v pivnici (z masívneho dreva)
+ vykonanie izolácie a dokončenie podkrovia
+ vytvorenie nového prístupu na terasu s vonkajšími schodmi (montáž ešte čaká)
Poznámka: Kuchynská linka nie je súčasťou tejto ponuky.
+++DÔLEŽITÁ INFO PRE VŠETKÝCH ZAINTERESOVANÝCH+++
Kontaktovanie, spätné volania alebo dohadovanie termínov prebieha v zásade a výlučne s tými záujemcami, ktorým sú nám poskytnuté správne a ÚPLNÉ kontaktné údaje (priezvisko, krstné meno, ulica, číslo domu, PSČ, mesto, telefónne číslo, email).
Táto ponuka je nezáväzná a neviaže! Chyby, zmeny a všetky práva sú vyhradené!
Parametre nehnuteľnosti
| Vek | Nad 50 rokov |
|---|---|
| Stav | Po rekonštrukcii |
| Číslo inzerátu | 986675 |
| Úžitková plocha | 77 m² |
| Celkové poschodia | 1 |
| Dostupné od | 1. 2. 2026 |
|---|---|
| Dispozícia | 3+kk |
| PENB | F - veľmi nehospodárne |
| Plocha pozemku | 325 m² |
| Cena za jednotku | 4 532 € / m2 |
Čo táto nehnuteľnosť ponúka?
| Pivnica | |
| MHD 10 minút pešo |
| Garáž | |
| Terasa |
V okolí nehnuteľnosti nájdete
Stále hľadáte to pravé?
Nastavte si strážneho psa. Ponuky vybrané na mieru dostanete súhrnne 1× denne e-mailom. S Premium profilom máte po ruke rovno 5 strážcov a keď sa niečo objaví, informujú vás obratom.










































