Prenájom bytu 3+1 • 75 m² bez realitkyauf Anfrage Bad Wiessee Bayern 83707
Rekonštruovaný trojizbový byt sa nachádza vo 2. poschodí/strešnom podlaží viacrodinného domu s celkovo 7 nájomníkmi, postaveného v roku 1964.
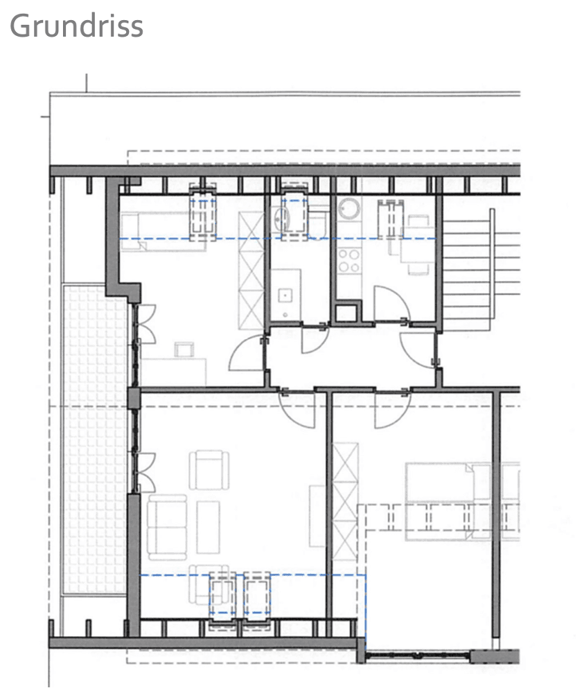
Zo udržiavaného schodiska sa dostanete do priestrannej haly bytu, z ktorej sú prístupné všetky izby. Vďaka stropnej výške minimálne 2,45 m a integrovanému stropnému osvetleniu, v kombinácii s parketovou podlahou a bielymi dverami, sa už pri vstupe a zatváraní dverí bytu cítite uvoľnene a ako doma.
Vpravo sa nachádza kuchyňa, v ktorej je kompletne vybavená zabudovaná kuchyňa vrátane elektrospotrebičov. Vďaka klasickej farebnej kombinácii bielych frontov a tmavej pracovnej dosky je kuchyňa elegantná a nadčasová.
V kúpeľni nájdete priestrannú sprchu, umývadlo, WC a oddelený priestor s prípojkou pre malú práčku alebo sušičku.
Prvým z troch izieb sa dostanete na priestranný západný balkón s nádherným výhľadom na hory. Táto izba je veľmi svetlá vďaka balkónovým dverám a prislúchajúcim oknám a môže byť využitá napríklad ako detská či hosťovská izba alebo kancelária.
Na druhej strane haly a taktiež s prístupom na balkón sa nachádza svetlá obývacia izba, ktorá navyše disponuje dvoma strešnými oknami a malým oknom umiestneným v priestore pod stropom. Na západnom balkóne si môžete vychutnať výhľad na hory a večer aj západ slnka.
Priľahlá k obývacej izbe sa nachádza spálňa, taktiež svetlá a útulná, so štyrmi oknami vo výklenku strechy.
Obec Bad Wiessee, uznávaný kúpeľný región už od roku 1922, sa nachádza na západnom brehu jazera Tegernsee, približne 50 km južne od Mníchova.
Obchody bežnej dennej potreby sú vzdialené len „kameňhod“; Lindenplatz v centre Bad Wiessee, kde nájdete ďalších maloobchodníkov, poštu, lekárne a podobne, je autom dostupný za 1 minútu.
Možnosti voľnočasových aktivít (tenis, jazda na koni, plachtenie, lyžovanie, turistika, golf a pod.) ako aj najbližšie lesné a lúčne chodníky sú prakticky priamo pred dverami.
Nádražie v Gmunde (Bayerische Regiobahn s prepojením do Mníchova, Rosenheim/Salzburg, Schliersee/Neuhaus a Lenggries) je dostupné autom za 5 minút. Prístup na diaľnicu Holzkirchen (A8) smerom na Mníchov a Salzburg je vzdialený len približne 20 km, teda asi 30 minút.
Autobusová zastávka, s odchodmi do Gmundu aj Rottach-Egern, sa nachádza približne 100 m od domu.
• Dubové parketové dosky vo všetkých obytných a chodbových priestoroch
• Kvalitný kameninový obklad v sprche a WC
• Exkluzívne sanitárne zariadenia a armatury v sprche a WC
• Priestranná sprcha
• Kvalitná zabudovaná kuchyňa vrátane všetkých elektrospotrebičov
• Nové okná a dvere s trojitým zasklením
• Ďalšie strešné okná
• Dvere v izbách v bielej farbe, s kassettirovým dekorem
• Osvetľovací koncept na stenách a strope
• Nová elektroinštalácia, káblovanie a rozdeľovacia skrinka
• Nové radiátory
Parametre nehnuteľnosti
| Vek | Nad 50 rokov |
|---|---|
| Stav | Po rekonštrukcii |
| Poschodie | 2. poschodie z 2 |
| PENB | C - Hospodárne |
| Cena za jednotku | 19 € / m2 |
| Dostupné od | 1. 5. 2026 |
|---|---|
| Dispozícia | 3+1 |
| Číslo inzerátu | 986459 |
| Úžitková plocha | 75 m² |
Čo táto nehnuteľnosť ponúka?
| Balkón | |
| Parkovanie |
| Pivnica | |
| MHD 1 minúta pešo |
V okolí nehnuteľnosti nájdete
Stále hľadáte to pravé?
Nastavte si strážneho psa. Ponuky vybrané na mieru dostanete súhrnne 1× denne e-mailom. S Premium profilom máte po ruke rovno 5 strážcov a keď sa niečo objaví, informujú vás obratom.














