
Prenájom bytu 2+1 • 68 m² bez realitkyHauptstraße 13a, , Dolné Sasko
Hauptstraße 13a, , Dolné SaskoMHD 2 minúty pešo • ParkovanieHAUS IM HAUS – VÁŠ NOVÝ DOMOV V SÚRDCI HOLLENSTEDTU
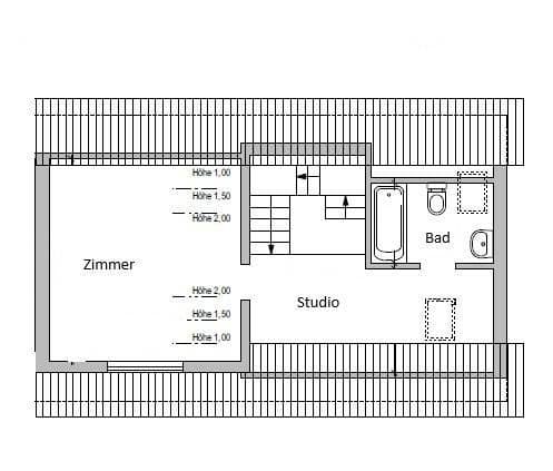
Tento pôvabný dvojpodlažný byt – s vlastným vstupom – ponúka približne 68 m² obytného priestoru v dvoch úrovniach s premysleným riešením rozloženia miestností.
Veľké výhľady z okien zaisťujú priesvitné miestnosti, zatiaľ čo obývacia kuchyňa s jedálenským kútom v výčuvi vyzýva na spoločné varenie a vychutnávanie si jedál.
Na poschodí nájdete útulnú spálňu a štúdio s praktickými vstavanými skriniami z masívneho dreva.
Plná kúpeľňa s oknom a samostatné hosťovské WC v prízemí dopĺňajú komfort bývania.
Hypoalergénne a kvalitné podlahové krytiny – dlažba a parkety – sú nenáročné na údržbu a nadčasové.
V roku 2024 bola inštalovaná nová plynová kondenzačná rúra (Vaillant).
Okrem toho byt obsahuje prízemný skladový alebo dielenský priestor s vodou a elektrickým prípojkou, ideálny pre voľnočasové aktivity.
Nájom je rozdelený nasledovne:
mesačný základný nájom: € 795,00
mesačný nájom za garážové stání (carport): € 50,00
mesačné náklady na vykurovanie: € 140,00
mesačné prevádzkové náklady: € 140,00
Celkový mesačný nájom vrátane všetkých nákladov: € 1.125,00
Nájomná kaucia: € 2.385,00 (= 3 mesačné nájmy)
Nehnuteľnosť sa nachádza priamo v srdci Hollenstedtu, pôvabnej obce v okrese Harburg. Všetky dôležité objekty denného života – supermarkety, pekárne, lekári a lekárne – sú pohodlne dostupné pešo.
Rodiny ocenia blízkosť materských škôl a základných škôl.
Vďaka priamej polohe pri hlavnej ceste je vynikajúce dopravné spojenie: diaľnicu A1 dosiahnete za pár minút, takže Hamburg a Bremen sú rýchlo dostupné.
Zároveň si môžete užívať pokoj ustáleného obytného prostredia s veľkým množstvom zelene v okolí.
Mnoho peších a cyklistických trás vás pozýva na oddych v prírode.
Lokalita kombinuje vidiecku idylku s mestskou blízkosťou – ideálna pre tých, ktorí ocenia kvalitnú infraštruktúru, ale nechcú sa vzdať pokoja a prírody.
Vybavenie a výhody:
+ Dvojpodlažný byt (maisonette) rozložený do 2 úrovní
+ Približne 68 m² obytného priestoru
+ Plná kúpeľňa s oknom a hosťovské WC
+ Obývacia kuchyňa s výčuvom a oknom nad jedálenským kútom
+ Veľké okná v obývacej izbe
+ Štúdio na podkroví
+ Vstavané skrine
+ Hypoalergénne podlahy (dlažba, kameň, parkety)
+ Nové centráltne vykurovanie (rok výstavby 2024)
+ Ďalší skladový/dielenský priestor s vodnou a elektrickou prípojkou
HAFERKAMP GMBH
Strandallee 11
23683 Scharbeutz (Haffkrug)
Telefón: 04563 / 423998-0
Fax: 04563 / 423998-9
E-mail: info(at)haferkamp-grundbesitz.de
Generálny riaditeľ: Jens-Hendrik Haferkamp
Okresný súd Lübeck HRB 23030 HL
DIČ: DE304113136
Haferkamp Grundbesitz je obchodné označenie spoločnosti Haferkamp GmbH.
Povolená činnosť podľa § 34c ods. 1 obchodného zákonníka
Dohliadajúci orgán:
Obec Scharbeutz (živnostenský úrad) · Am Bürgerhaus 2, 23683 Scharbeutz
Haferkamp Grundbesitz je obchodné označenie spoločnosti Haferkamp GmbH
Osoba zodpovedná za obsah podľa § 6 MDStV:
Jens-Hendrik Haferkamp
Parametre nehnuteľnosti
| Vek | Nad 50 rokov |
|---|---|
| Stav | Dobrý |
| Číslo inzerátu | 986039 |
| Úžitková plocha | 68 m² |
| Dostupné od | 30. 1. 2026 |
|---|---|
| Dispozícia | 2+1 |
| PENB | E - Nehospodárne |
| Cena za jednotku | 12 € / m2 |
Čo táto nehnuteľnosť ponúka?
| Parkovanie |
| MHD 2 minúty pešo |
V okolí nehnuteľnosti nájdete
Stále hľadáte to pravé?
Nastavte si strážneho psa. Ponuky vybrané na mieru dostanete súhrnne 1× denne e-mailom. S Premium profilom máte po ruke rovno 5 strážcov a keď sa niečo objaví, informujú vás obratom.











