Predaj domu 4+1 • 95 m² bez realitkyHohe Wiese 71 Braunschweig Stöckheim Niedersachsen 38124
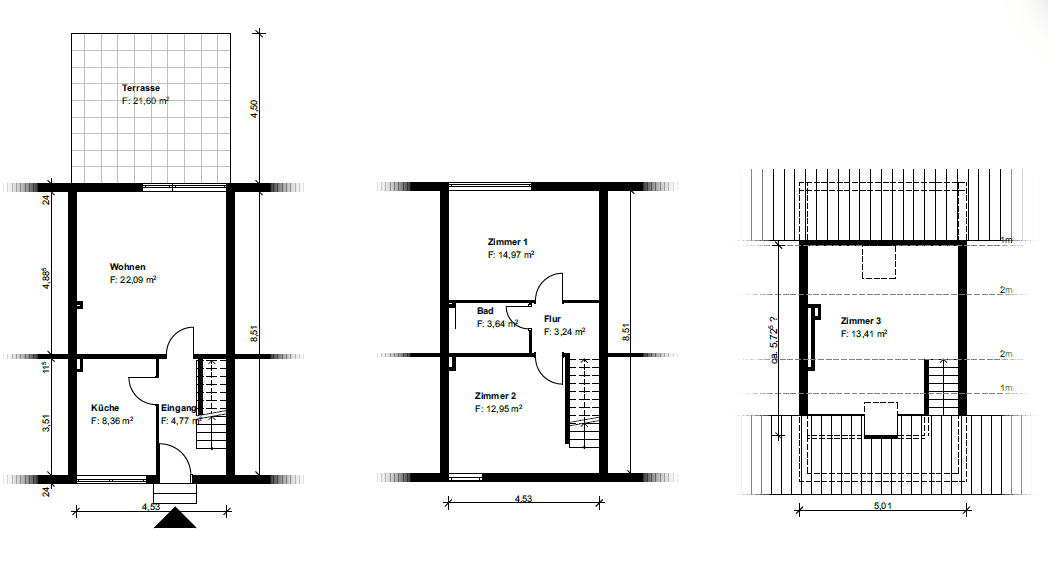
Tento atraktívny radový dom v Braunschweig-Stöckheim ponúka na približne 94 m² obytného priestoru moderné bývanie v tichej a obľúbenej lokalite. Budova, postavená v roku 1959, bola v roku 2025 kompletné zrekonštruovaná a energeticky uvedená na najnovší štandard.
V rámci rekonštrukcie bola stará plynová kúrenie nahradená efektívnou tepelnou čerpadlom, čím sa energetická trieda z H zlepšila na B. Všetky okná, dvere, potrubia a elektroinštalácia boli vymenené, rovnako aj kúpeľňa bola modernizovaná. Steny sú vysoko kvalitne štukované a brúsené, čo vytvára súčasnú bytovú atmosféru.
Obzvlášť je naozaj pozoruhodný nový prístav prístavby terasy s veľkým posuvným prvkom, ktorý vpúšťa do obytného priestoru veľa svetla a umožňuje priamy prístup do záhrady. Prípojky krbu v obývačke a na poschodí ponúkajú dodatočné možnosti zariadenia. Prístup na posledné poschodie je pohodlne priamo cez spálňu (prechodová izba) a ponúka krátke vzdialenosti aj dodatočnú, flexibilne využiteľnú plochu.
Aj vonkajšia časť domu je prezentovaná v novom stave: Predzáhrada je novopodalá, vstupové schody a vstupné dvere boli zrekonštruované, vonkajšie steny izolované a omietnuté a strecha bola opravená. Existujúca výsadba vytvára príjemnú atmosféru a robí zo záhrady ideálne miesto na útočisko s množstvom možností zariadenia.
Dom sa predáva bez kuchyne a nábytku, čo ponecháva veľa priestoru pre osobné vybavenie.
Voliteľne je možné zakúpiť garáž a parkovacie miesto (eni parkovacie miesto) vo vzdialenosti 50 m od domu (cena na vyžiadanie).
Vďaka kombinácii modernej techniky, vysokej energetickej efektívnosti a premyslenej dispozície je tento dom obzvlášť vhodný pre mladé rodiny a páry, ktoré hľadajú udržateľné a komfortné bývanie.
Radový dom sa nachádza v Braunschweig-Stöckheim, jednej z najobľúbenejších a najrodinnejších častí južnej časti Braunschweig. Poloha spája pokojné bývanie v zelenom prostredí s vynikajúcou infraštruktúrou.
Všetky zariadenia pre každodennú potrebu sa nachádzajú v bezprostrednej blízkosti: supermarkety, lekári, lekárne a gastronómia sú ľahko dostupné.
Doprava verejnou dopravou je veľmi dobrá – električkou a autobusom sa rýchlo dostanete do centra Braunschweig. Aj diaľnice A39 a A36 sú rýchlo dostupné, čo ponúka optimálnu mobilitu pre dochádzajúcich do práce.
Stöckheim taktiež ponúka vysokú hodnotu pre voľnočasové aktivity: početné zelené plochy, športové kluby, blízkosť k rieke Oker a cyklistické a pešie trasy robia z tejto štvrte atraktívne miesto na bývanie.
Ideálne pre mladé rodiny alebo páry, ktoré si cenia kvalitu, energetickú efektívnosť a harmonické prostredie.
Hlavné body rekonštrukcie:
- 2 novo zrekonštruované kúpeľne (parterová sprcha a vaňa, každá s WC)
- Energetické zlepšenie prostredníctvom izolácie a tepelného čerpadla na energetickú triedu B.
- Všetky okná a dvere boli kompletne vymenené
- Vysoko kvalitné povrchy stien
- Nová prístavba terasy s veľkým posuvným, parterovým prvkom do záhrady
- Možnosť inštalácie krbových prípojok v obývačke alebo na poschodí
Exteriér:
- Predzáhrada: novozastavaná dlažba
- Vstupové schody boli zrekonštruované, nové vstupné dvere
- Vonkajšie steny izolované a omietnuté
- Záhrada upravená a okamžite využiteľná
Realitné kancelárie nie sú vítané! Podľa § 7 UWG sú nevyžiadané kontakty zo strany realitných maklérov bez výslovného súhlasu príjemcu zakázané!
Parametre nehnuteľnosti
| Vek | Nad 50 rokov |
|---|---|
| Stav | Po rekonštrukcii |
| Číslo inzerátu | 985927 |
| Úžitková plocha | 95 m² |
| Celkové poschodia | 2 |
| Dostupné od | 30. 1. 2026 |
|---|---|
| Dispozícia | 4+1 |
| PENB | B - Veľmi úsporné |
| Plocha pozemku | 185 m² |
| Cena za jednotku | 3 674 € / m2 |
Čo táto nehnuteľnosť ponúka?
| Balkón | |
| Garáž | |
| MHD 6 minút pešo |
| Pivnica | |
| Parkovanie | |
| Terasa |
V okolí nehnuteľnosti nájdete
Stále hľadáte to pravé?
Nastavte si strážneho psa. Ponuky vybrané na mieru dostanete súhrnne 1× denne e-mailom. S Premium profilom máte po ruke rovno 5 strážcov a keď sa niečo objaví, informujú vás obratom.


























