Predaj domu • 258 m² bez realitky, Severné Porýnie - Westfálsko
Die nehnuteľnosť bola pôvodne postavená ako rodinný dom v roku 1958 v masívnej konštrukcii s obytnou plochou 126,65 m² a úplným suterénom. V roku 1994 bol dom následne rozšírený o druhú obytnú jednotku s prístavbou o veľkosti 131,35 m². Momentálne je nehnuteľnosť rozdelená ako dvojrodinný dom.
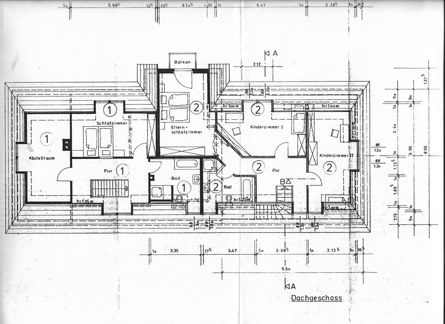
Obytná časť je preniknutá svetlom vďaka veľkým oknám, ktoré vytvárajú príjemnú atmosféru. Priestory navrhnuté s ohľadom na rodiny sa rozprestierajú na 258 m² obytného priestoru, obsahujú 5 spální, 3 obývacie izby, 2 kúpeľne, 2 samostatné WC, 2 kuchyne a sú tak ideálne vhodné pre veľkú rodinu alebo pre bývanie viacerých generácií. Samozrejme, je možné aj prenajať jednu obytnú jednotku, čím sa zabezpečí finančná udržateľnosť.
Pozemok s rozlohou 4565 m² s vlastným lesom sa nachádza v okrajovej oblasti a susedí na juhu s chránenou prírodou. Preto je jedinečný výhľad na Weserbergland nezahaliteľný, čo si môžete vychutnať z dvoch terás – a to v ideálnej kombinácii s vysokou mierou kľudu a súkromia. Milovníci prírody, zvierat aj rodiny tu nájdu najlepšie podmienky na bývanie. Pre deti je tu dostatok priestoru na hry. Na pozemku sú umiestnené 2 samostatné garáže.
Nechajte sa ráno prebudiť slnečnými lúčmi vo svojej spálni a večer si vychutnajte západ slnka na svojej terase, v jednej z najexkluzívnejších lokalít v Neuenknick.
Dom je vybavený olejovým vykurovací systémom (energetický preukaz je k dispozícii) a optickým pripojením. Inštalácia krbovej pece je možná.
Pozemok je tiež deliteľný. Na pozemku sa nachádza aj druhý stavebný pozemok.
Ako dátum odovzdania sme plánovali prvé polročne obdobie 2026. Dom predávame súkromne, takže sa neuplatňuje žiadna predajná provízia, čo ušetrí veľa peňazí potenciálnym kupcom aj nám. Dopyty zo strany realitných maklérov však nie sú zohľadňované.
Prehliadka je možná iba po dohodnutí termínu. Radi si môžete osvojiť lokalitu nehnuteľnosti. Ďalšie informácie a presnú adresu získate prostredníctvom uvedenej emailovej adresy.
Toto impozantné sídlo sa nachádza na východ od spolcesty 482 v meste Petershagen, v časti Neuenknick (okres Minden-Lübbecke). Mesto sa vyznačuje pokojnou, vidieckou atmosférou a úzkou komunitou, ktorá robí život tu mimoriadne príjemným. Okolie Neuenknick je charakterizované zelenými lúkami, poľami a lesmi, ktoré ponúkajú množstvo príležitostí na prechádzky, jazdu na bicykli a iné voľnočasové aktivity. Idylická krajina vás pozýva vychutnať si prírodu a oddýchnuť si.
Školky, základné školy, obchody, ako aj lekári a lekárne sa nachádzajú v blízkych obciach.
Dobre vybavená infraštruktúra umožňuje rýchle spojenie s väčšími mestami, ako napríklad Minden, Nienburg alebo Hannover.
Parametre nehnuteľnosti
| Vek | Nad 50 rokov |
|---|---|
| Číslo inzerátu | 985803 |
| Úžitková plocha | 258 m² |
| Celkové poschodia | 2 |
| Stav | Dobrý |
|---|---|
| PENB | G - Mimoriadne nehospodárne |
| Plocha pozemku | 4 565 m² |
| Cena za jednotku | 1 550 € / m2 |
Čo táto nehnuteľnosť ponúka?
| Balkón | |
| Garáž | |
| MHD 2 minúty pešo |
| Pivnica | |
| Parkovanie | |
| Terasa |
V okolí nehnuteľnosti nájdete
Stále hľadáte to pravé?
Nastavte si strážneho psa. Ponuky vybrané na mieru dostanete súhrnne 1× denne e-mailom. S Premium profilom máte po ruke rovno 5 strážcov a keď sa niečo objaví, informujú vás obratom.











