Predaj domu 7+1 • 238 m² bez realitkyHof Hof Bayern 95032
Je ponúkaná surová stavba s už dokončenou základovou doskou, zdverenými tehlovými stenami s integrovanou izoláciou a s dokončenou plochou strechou. Stavebné prvky sú už zabudované. Na dokončenie budovy patria okrem iného práce na atike, vonkajšom omietnutí, tesneniach a kompletnom vnútornom spracovaní. Ideálne pre kupujúcich, ktorí si chcú zrealizovať svoje vlastné predstavy a hľadajú projekt s priestorom na dizajn.
Dom sa nachádza medzi existujúcimi obytnými budovami a zároveň ponúka prírodné prostredie s otvoreným charakterom. Južná orientácia zaručuje optimálne osvetlenie a príjemný, slnečný priebeh pozemku.
Surová stavba s dokončenou základovou doskou, zdverenými tehlovými stenami s integrovanou izoláciou a vykonanou plochou strechou. Okna a dvere sú už zabudované. Základná omietka a surové inštalácie pre elektro inštaláciu a sanitárne zariadenia sú pripravené. Atika, vonkajšia omietka, tesnenia a kompletné vnútorné spracovanie ešte čakajú na dokončenie.
Parametre nehnuteľnosti
| Stav | Vo výstavbe |
|---|---|
| Číslo inzerátu | 985754 |
| Plocha pozemku | 1 272 m² |
| Cena za jednotku | 1 592 € / m2 |
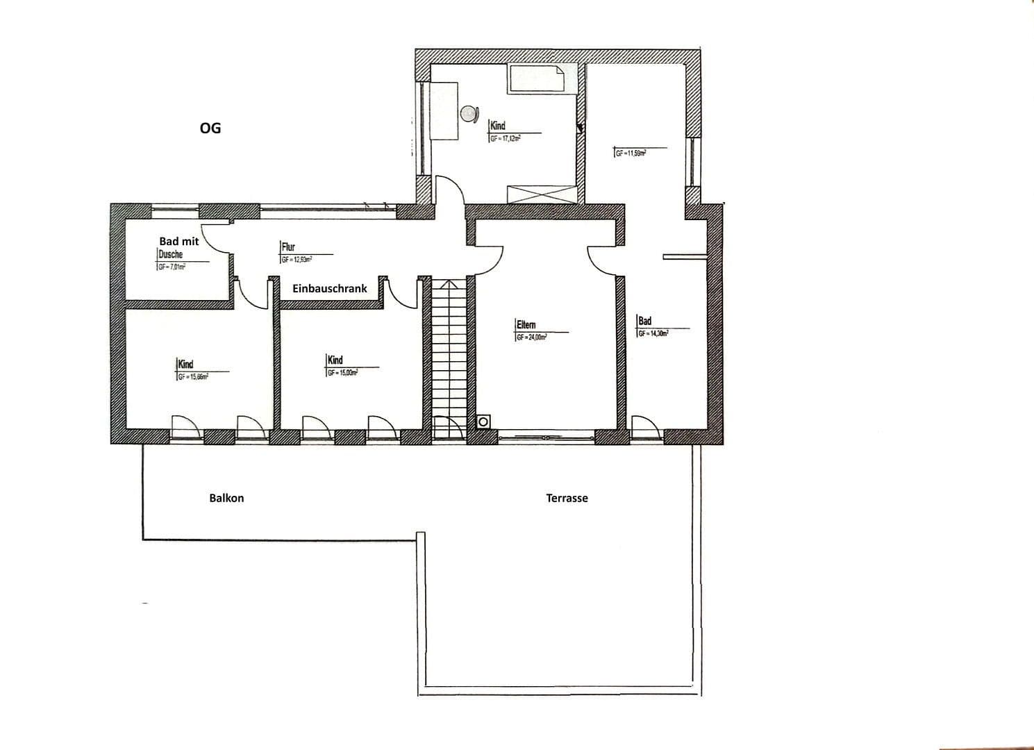
| Dispozícia | 7+1 |
|---|---|
| Úžitková plocha | 238 m² |
| Celkové poschodia | 2 |
Čo táto nehnuteľnosť ponúka?
| Balkón | |
| MHD 1 minúta pešo |
| Garáž | |
| Terasa |
V okolí nehnuteľnosti nájdete
Stále hľadáte to pravé?
Nastavte si strážneho psa. Ponuky vybrané na mieru dostanete súhrnne 1× denne e-mailom. S Premium profilom máte po ruke rovno 5 strážcov a keď sa niečo objaví, informujú vás obratom.


