Predaj domu • 480 m² bez realitkyEgenhofen Weyhern Bayern 82281
Tu na vás čaká niečo výnimočné …
História sa stretáva s modernou:
Komplex budov pochádza z roku 1793 a bol považovaný za klenot bavorského baroka. Rok výstavby tohto pamiatkového objektu je vyrezaný do dobre zachovanej vstupnej dvere. Severný príčlen bol postavený okolo roku 1976. Pôvodná zámocká hostina spolu s dvoma prislúchajúcimi obytnými a hospodárskymi budovami sa nachádza priamo oproti zámku Weyhern.
V roku 2006 skončila 400-ročná história zámockej hostiny. Objekt hrozil chátranie.
V roku 2012 sa našiel súkromný kupca, ktorý nehnuteľnosť preorientoval na obytný dom a s maximálnym osobným i technickým úsilím, ako aj s patričnou dávkou kreativity, podľa prísnych pamiatkových predpisov premenil objekt na vysnívané obytné sídlo.
Stavba:
Ide o masívny múrovaný objekt s konštrukciou strešnej konštrukcie typickou pre stolárske práce a strechou pokrytou biberschwanzom. Čiastočne podzemná budova stojí na obvodnom, kompletne izolovanom základe a disponuje dvoma plnohodnotnými poschodiami a dvojpodlažným strešným rámom.
Vybavenie / Využitie:
Nehnuteľnosť pozostáva z troch múrovaných budov a viacerých drevených príbudov.
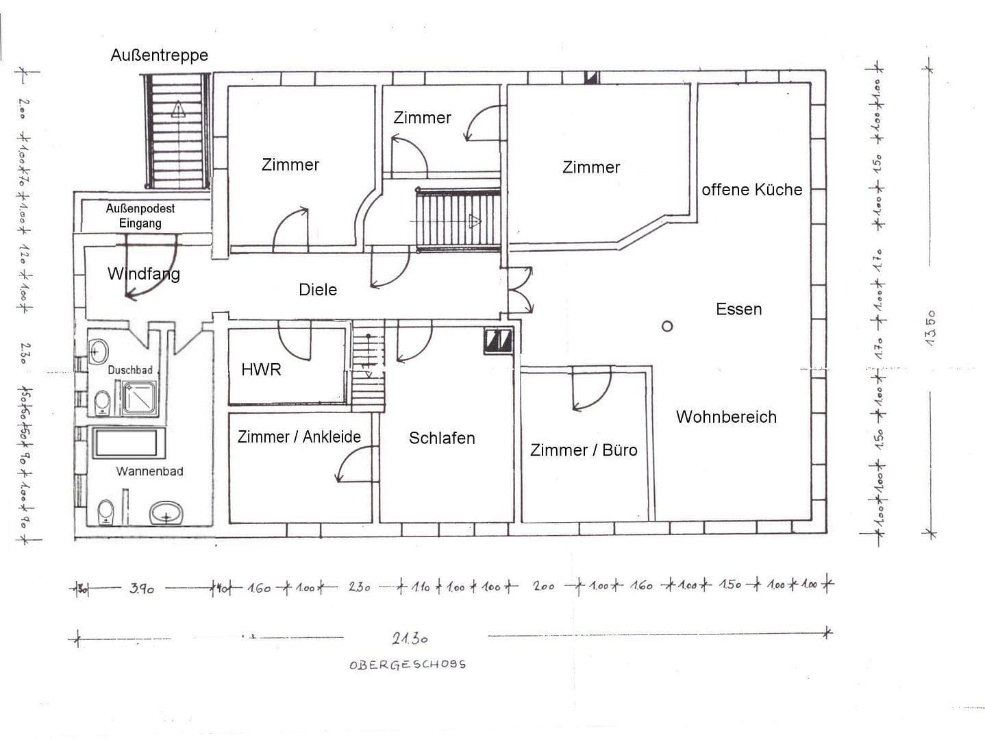
Samotná hlavná budova meria približne 23 m x 13,5 m. Historicky zrekonštruovaná vstupná dvere boli zachované, avšak nie sú využívané ako vstup. Za nimi sa otvára dlhý chodba, z ktorej vedie prístup do izieb a kúpeľní. Historické dvere boli vkusne zrekonštruované, rovnako ako vnútorné drevené schody vedúce na horné poschodie. Pôvodná hostinská miestnosť bola premenená na obývaciu časť s múrovaným krbom, zatiaľ čo schánka, kuchyňa a skladové priestory boli prispôsobené na jedáleň, domácu izbu a otvorenú modernú kuchyňu s ostrovčekom a všetkými elektrickými spotrebičmi. Bývalé hostinské toalety boli premenené na priestranné a atraktívne kúpeľne. Nadstrešený hlavný vstup je teraz na východnej strane, sprevádzaný halou a šatníkom.
Horné poschodie bolo navrhnuté ako úplne samostatná obytná jednotka, ku ktorej sa dá pristupovať nielen vnútornými schodmi, ale aj z vonkajšej strany prostredníctvom drevených schodov s oddeleným vstupom. Aj tu nájdete vysoko kvalitné, vkusné prevedenie a vybavenie. „Obrovský“ obytný priestor s otvorenou kuchyňou, ako aj 5–6 izieb, domácu izbu a 2 kúpeľne poskytujú dostatok priestoru pre veľkú rodinu.
Rozsiahly strešný priestor nie je zariadený, avšak ponúka ako úžitkovú plochu obrovský potenciál. Bol v rámci rekonštrukcie úplne zrekonštruovaný a novozasklenený.
Bývalý západný pivný dvor bol premenený na úžasnú viacrozmernú kameňovú terasu. Pôvodná kužeľová dráha bola z veľkej časti zachovaná a dnes slúži ako mimoriadne útulná záhradná chata a priestor na uskladnenie náradia.
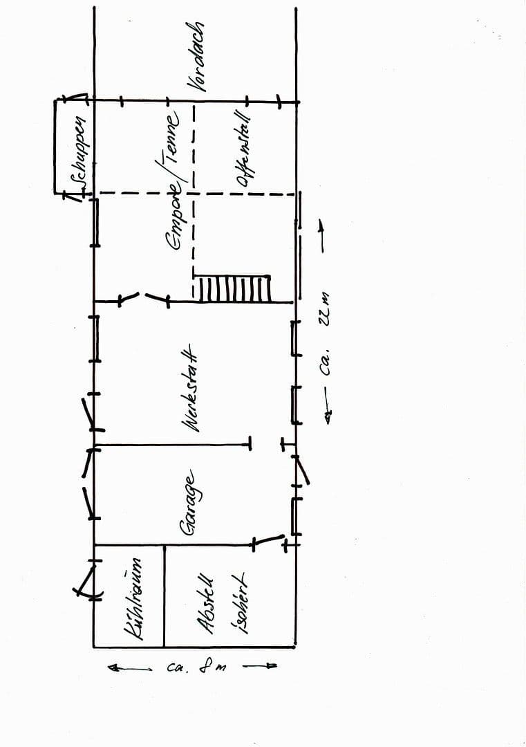
Veľká vedľajšia budova, Remise, ponúka rôzne využiteľné priestranné úložné a skladové priestory, garáže, dielňu a bývalý koňský stajňu, pričom v štýle sedlového strešného tvaru prebieha nepretržitá klenba. Ideálna konštelácia napríklad pre remeselné podniky s potrebou veľkých vnútorných skladových priestorov alebo pre (veľké) zvieratá.
Druhý malý vedľajší dom, bývalý hostinský dom, je láskavo zrekonštruovaný a zariadený a možno ho využiť ako úplne samostatnú malú obytnú jednotku, ktorá zahŕňa obývaciu izbu, vnútorné drevené schody vedúce do dvojčasti rozdeleného strešného priestoru pre spálňu a detskú izbu, malú kúpeľňu a kuchyňu.
Všetko toto je obklopené rozlohou približne 7000 m² „parku“. To umožňuje chov zvierat či koní na vlastnom pozemku ako aj dostatok parkovacích miest pre automobily.
Hlavná budova je oplotená („unikovo bezpečná“ – ideálna napríklad pre chov psov); zvyšné plochy sú ohraničené plotmi.
V dôsledku meniaceho sa zamerania vlastníkov sa nehnuteľnosť predáva kompletne a po dohode pripravená na nasťahovanie novému majiteľovi. Na požiadanie je možná (čiastočná) mobalizácia, vrátane kuchyne.
Weyhern / Egenhofen – zelená idyla cca 30 km od západných brán Mníchova
Tento klenot bavorskej histórie a dnes jedinečne zrekonštruovaná a modernizovaná nehnuteľnosť je z mníchovského západného okraja dostupná autom za približne 30 minút po diaľnici A8 – výjazd Odelzhausen.
Práve oproti kompletne zrekonštruovanému a zmodernizovanému zámku Weyhern sa nachádza táto nehnuteľnosť, pôvodná historická zámocká hostina z roku 1793. Idylicko situovaná pri toku rieky Glonn, tradičná hostina s pivnicou bola až do približne pred 15 rokmi obľúbeným výletným cieľom s gastronomickým zážitkom, známa ďaleko za okresnými hranicami.
Autom sa dostanete do diaľnice A8 v Odelzhausene za cca 7 minút, kde nájdete väčšinu zariadení každodenného života, rovnako ako v okolitých obciach Egenhofen, Mammendorf, Maisach či vo Fürstenfeldbrucku.
Aj verejnou dopravou je to pohodlne – autobusom 871 (priamo pred dverami) sa dostanete na S-Bahn v Maisach.
Ponuka na oddych naozaj neponúka málo! Okrem okolitých lúk a lesov, ktoré poskytujú nekonečné možnosti pre cyklistiku, jazdu na koni a pešiu turistiku, vás pozvú dve golfové ihriská a početné športové kluby s modernými športovými zariadeniami na rôzne voľnočasové aktivity. Celkový zážitok dopĺňa množstvo atraktívnych podnikov rôzneho zamerania, tradičné pivnice a početné kultúrne podujatia v obciach a kultúrnom centre okolo Fürstenfeldbruckého zámku.
Nie je ťažké spoznať, že táto nehnuteľnosť svojou poloha, charakterom a vybavením je jedinečná a túži po novom majiteľovi, ktorý ocení jej úroveň.
Je vhodná ako rodinný dom, objekt pre viaceré generácie alebo work-life domov rovnako.
Kvalita rekonštrukcie a použitých stavebných materiálov, vysoko kvalitné vybavenie a zariadenie zodpovedajú, vďaka kompletnej rekonštrukcii a modernizácii, vysokej úrovni stavby a vysokým nárokom súčasných obyvateľov.
Pri vážnom záujme a preukázaní možnosti financovania vás srdečne pozývame, aby ste si tento jedinečný objekt osobne prezreli. Objekt je v mene predávajúceho exkluzívne a pre kupujúceho bez provízie ponúkaný Hans-Jürgenom Stegom (certifikovaný znalcovi pre oceňovanie nehnuteľností, ZIS Sprengnetter Zert (S), web: steg-projekte.de). Kupujúca provízia sa neplatí!
Prosím, žiadne maklérske dopyty! Ďakujem.
Parametre nehnuteľnosti
| Vek | Nad 50 rokov |
|---|---|
| Číslo inzerátu | 985707 |
| Plocha pozemku | 6 939 m² |
| Cena za jednotku | 5 521 € / m2 |
| Stav | Po rekonštrukcii |
|---|---|
| Úžitková plocha | 480 m² |
| Celkové poschodia | 2 |
Čo táto nehnuteľnosť ponúka?
| Pivnica | |
| Parkovanie | |
| Terasa |
| Garáž | |
| MHD 2 minúty pešo |
V okolí nehnuteľnosti nájdete
Stále hľadáte to pravé?
Nastavte si strážneho psa. Ponuky vybrané na mieru dostanete súhrnne 1× denne e-mailom. S Premium profilom máte po ruke rovno 5 strážcov a keď sa niečo objaví, informujú vás obratom.


































