Prenájom bytu 4+1 • 77 m² bez realitky, Meklenbursko-Predpomoransko
, Meklenbursko-PredpomoranskoMHD 2 minúty pešo • ParkovaniePrenajíma sa podkrovné bytie v trojrodinnom dome. V celom byte je podlahové kúrenie. Dom, ktorý má celkovo 3 nájomné jednotky, je kúrený zemnou teplou, pričom náklady na kúrenie sú zahrnuté v prevádzkových nákladoch.
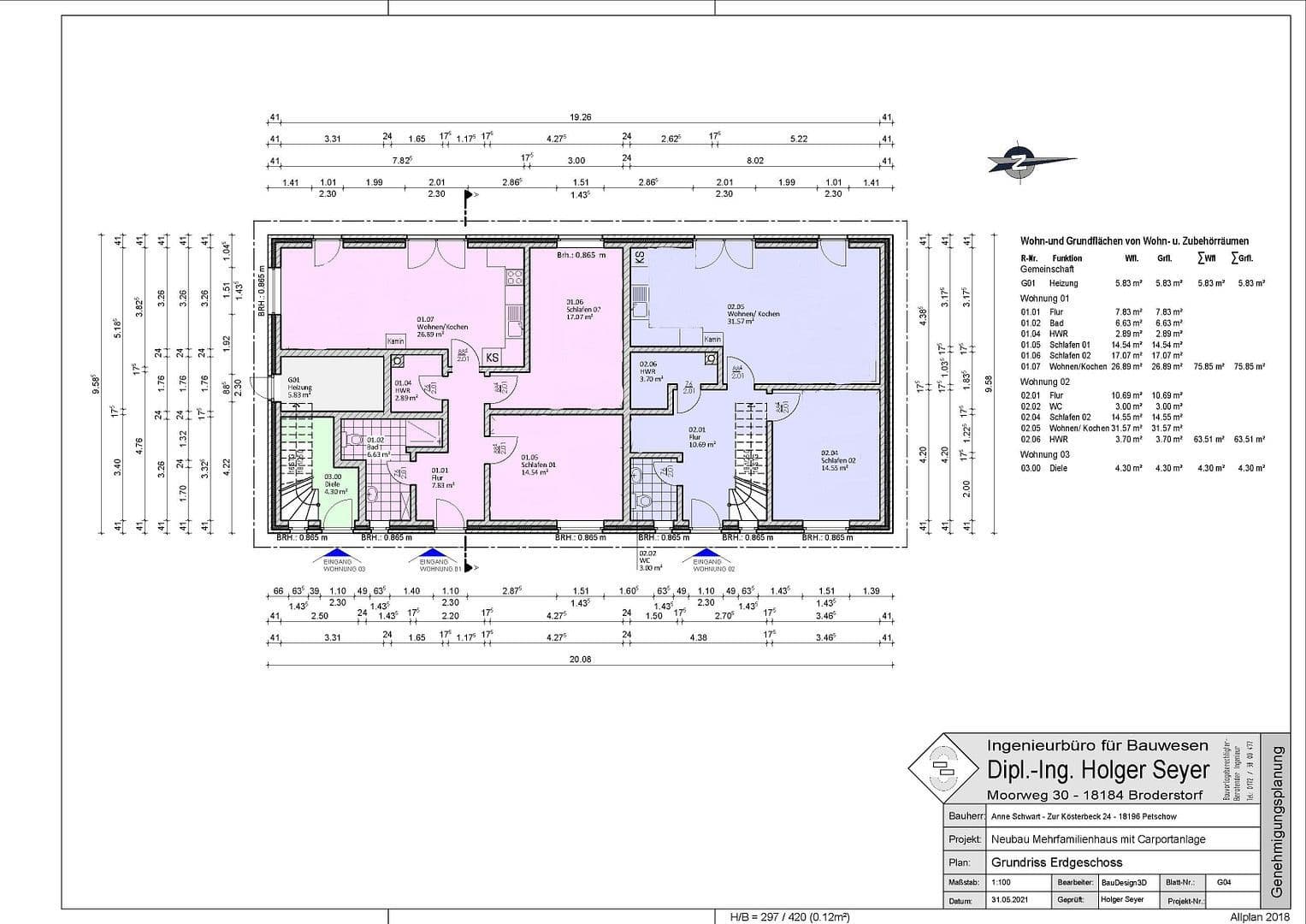
Základová plocha bytu je 94 m² a jeho obytná plocha je 77 m².
Všetky šikmé strešné okná sú vybavené elektricky ovládanými vonkajšími žalúziami. Keďže dom má orielok, detská izba aj spálňa nemajú šikmé steny.
V obývacej kuchyni je nainštalované pripojenie pre krb, kde môže nájomník umiestniť a pripojiť krbový kachl.
Za domom sa nachádza malá záhrada, ktorú využíva iba táto nájomná jednotka, ako aj parkovacie miesta pre 2 osobné automobily pod carportom. V tejto oblasti sa nachádza aj ďalší úložný priestor vhodný napríklad na bicykle.
Na obrázkoch pôdorysov je byt zobrazený zelenou farbou.
V prípade záujmu zašlite, prosím, sebavýpoveď nájomníka – dotazy budú zodpovedané len v prípade, že takáto sebavýpoveď bola odoslaná, a prehliadky budú dohodnuté až po jej predložení.
Lieblingshof je časť obce Dummerstorf a nachádza sa 20 km juhovýchodne od hansedanského mesta Rostock. Pokojná poloha ponúka upravené obytné prostredie s dedinským charakterom.
Vďaka regionálnym cestným spojniciam je Rostock dostupný v krátkej dobe, čo znamená, že možnosti nakupovania, pracovné miesta, vzdelávacie príležitosti a zdravotná starostlivosť sú pohodlne prístupné. Aj samotný Dummerstorf ponúka základné zariadenia denného používania.
Vďaka krátkej vzdialenosti od hansedanského mesta Rostock je lokalita ideálna aj pre dojížďaných, pričom výborné diaľničné napojenie umožňuje rýchlu dostupnosť celej oblasti a ešte ďalej.
Za parkovacie miesta pod carportom, úložný priestor a záhradu sa neúčtujú žiadne dodatočné náklady – všetko je zahrnuté v nájomnom.
Kuchyňa môže byť prebratá od predchádzajúceho nájomníka.
Parametre nehnuteľnosti
| Vek | Nad 50 rokov |
|---|---|
| Dispozícia | 4+1 |
| Číslo inzerátu | 985689 |
| Úžitková plocha | 77 m² |
| Stav | Po rekonštrukcii |
|---|---|
| Poschodie | 1. poschodie |
| PENB | A - Mimoriadne úsporné |
| Cena za jednotku | 15 € / m2 |
Čo táto nehnuteľnosť ponúka?
| Parkovanie |
| MHD 2 minúty pešo |
V okolí nehnuteľnosti nájdete
Stále hľadáte to pravé?
Nastavte si strážneho psa. Ponuky vybrané na mieru dostanete súhrnne 1× denne e-mailom. S Premium profilom máte po ruke rovno 5 strážcov a keď sa niečo objaví, informujú vás obratom.
















