Prenájom bytu 5+1 • 164 m² bez realitkyAm Buchenbaum 21 Duisburg Dellviertel Nordrhein-Westfalen 47051
Am Buchenbaum 21 Duisburg Dellviertel Nordrhein-Westfalen 47051MHD 2 minúty pešo • VýťahHravý a dobre navrhnutý spolubývací byt v centrálnej lokalite. Prvé využitie po kompletnom zrekonštruovaní v roku 2025. Bytovo-obchodná budova v pokojnej vedľajšej ulici, príjemní nájomníci a ďalšie spolubývacie skupiny v dome. Dobrá dostupnosť MHD. Parkovacie miesto priamo pred domom je dostupné na mesačný alebo ročný prenájom (prostredníctvom externého poskytovateľa).
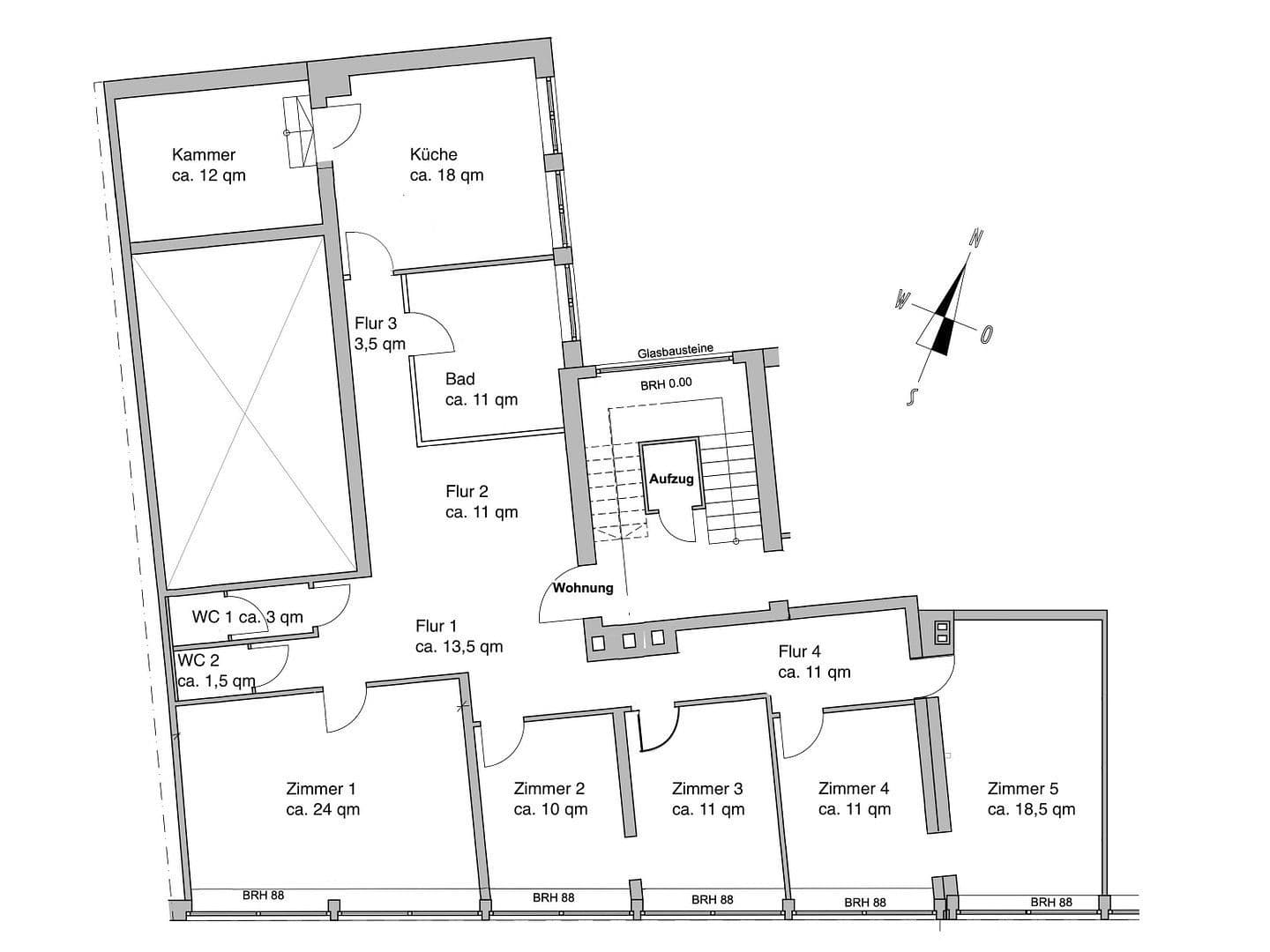
5 izieb
Veľký vstupný priestor/hala
Priestranná kuchyňa
Praktická skladacia miestnosť
Sprchovňa s oknom a inštaláciou na práčku
2 WC
Suterén
Veľmi centrálny, na zadnej strane pešej zóny Königstraße.
5 minút do hlavnej stanice s prístupom k DB, k regionálnym expresným a regionálnym vlakovým spojením (cestovná doba napr. do Düsseldorfu: 17 minút), ako aj k S-Bahn Rhein-Ruhr a mestskému metru Duisburg.
Vjazd na diaľnicu priamo pred hlavnou stanicou. Voľná plocha s parkovacími miestami (prenájom na mesačnej alebo ročnej báze) priamo pred domom alebo využitie podzemnej garáže Königstraße.
Pieskovcovo farebné obklady
Vhodné pre alergikov
Veľká sprchovňa s oknom a inštaláciou na práčku
2 WC
Skladacia komora
Suterén
Výťah
Ústredné kúrenie
Dálkovodné teplo
Dobre dostupné univerzity/vysoké školy:
Duisburgská pobočka "Folkwang Universität der Künste", "Universität Duisburg-Essen", "Hochschule Rhein-Waal" (kampus Kamp-Lintfort a kampus Kleve), "Hochschule für Polizei und öffentliche Verwaltung Nordrhein-Westfalen", "Internationale Hochschule" (IU Campus Duisburg), "FOM Hochschule" (kampus Duisburg)
Kultúra/voľný čas:
Múzeum Lehmbruck a park Immanuel-Kant so sochárskou záhradou, cubus kunsthalle, múzeum DKM, múzeum Küppersmühle pre moderné umenie, "Deutsche Oper am Rhein" v mestskom divadle, filharmónia Mercatorhalle, filmforum, UCI, The Game Box, športový park Duisburg
Nákupy:
Farmársky trh 3× týždenne v pešej zóne, rôzne maloobchodné prevádzky, Forum Duisburg, City Palais, Königsgalerie, Mercator Center
Parametre nehnuteľnosti
| Vek | Nad 50 rokov |
|---|---|
| Dispozícia | 5+1 |
| Číslo inzerátu | 985658 |
| Úžitková plocha | 164 m² |
| Stav | Po rekonštrukcii |
|---|---|
| Poschodie | 1. poschodie z 4 |
| PENB | D - Menej hospodárne |
| Cena za jednotku | 7 € / m2 |
Čo táto nehnuteľnosť ponúka?
| Pivnica | |
| MHD 2 minúty pešo |
| Výťah |
V okolí nehnuteľnosti nájdete
Stále hľadáte to pravé?
Nastavte si strážneho psa. Ponuky vybrané na mieru dostanete súhrnne 1× denne e-mailom. S Premium profilom máte po ruke rovno 5 strážcov a keď sa niečo objaví, informujú vás obratom.















