Prenájom kancelárie • 155 m² bez realitkyBrettergartenstraße 57 Nürnberg Schniegling Bayern 90427
Brettergartenstraße 57 Nürnberg Schniegling Bayern 90427MHD 1 minúta pešo • Parkovanie • GarážNa prenájom je atraktívna a multifunkčne využiteľná obchodná jednotka v dobrej lokalite. Jednotka je ideálna pre kancelárske, lekárske, služby alebo obchodné využitie a disponuje dodatočným skladovacím priestorom v suteréne, ktorý je pohodlne prístupný cez cestu vo vonkajšom priestore s priamym vstupom do dvojitej garáže.
V prípade potreby je možné bezplatne prevziať aj existný nábytok a zariadenie, čo umožňuje rýchly a bezproblémový začiatok využívania.
Priestory sa nachádzajú v udržiavanom objekte a oslovia funkčným rozložením priestorov a dobrým osvetlením.
K nehnuteľnosti patrí aj dvojitá garáž, ktorá poskytuje komfortné parkovacie a odkladacie priestory. Priamo pred dvojitou garážou je k dispozícii ďalšie parkovacie miesto, takže je celkovo dostatočné množstvo parkovacích plôch pre zamestnancov, zákazníkov alebo dodávateľov.
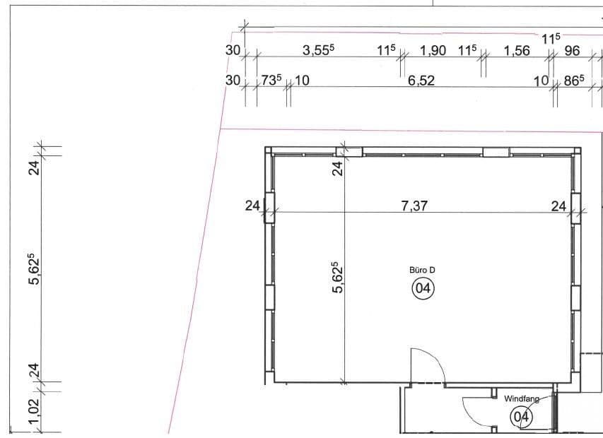
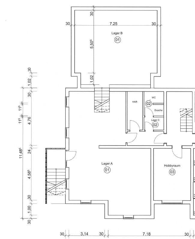
Rozloha priestorov:
• Kancelárske priestory (prízemie): cca 50 m²
• Skladovací priestor (suterén): cca 105 m²
• Celková rozloha: cca 155 m²
Prehľad nájmu:
• Kancelárske priestory v prízemí: 450,00 €
• Skladovací priestor v suteréne: 500,00 €
• Dvojitá garáž: 180,00 €
Mesačný celkový nájom: 1.130,00 € plus prevádzkové a vykurovacie náklady
Nehnuteľnosť sa nachádza na adrese Brettergartenstraße 57 v nuremberskej štvrti Schniegling na severe Nürnbergu. Lokalita je charakteristická príjemnou zmesou obytného a obchodného využitia a ponúka pokojné, a zároveň dobre napojené prostredie.
Dopravná dostupnosť je veľmi dobrá: cez blízke hlavné cestné komunikácie je rýchlo dostupné centrum Nürnbergu, tak aj okolitá mestská časť a nadštátna cestná sieť. Diaľnice A3 a A73 sú dostupné v krátkej dobe jazdy a zaručujú optimálne napojenie pre dochádzajúcich, ako aj pre zákazníkov a dodávky.
Verejná doprava je tiež dobre rozvinutá. Zastávky autobusov a električiek sú v pešej vzdialenosti a ponúkajú priamu spojenie do centra mesta a k ďalším dôležitým uzlom.
V bezprostrednom okolí sa nachádzajú predajne pre každodenné potreby, gastronomické zariadenia, ako aj rôzne služby a obchodné prevádzky. Okrem toho blízke zelené plochy a rekreačné zóny zabezpečujú vysokú kvalitu pobytu a príjemnú rovnováhu k pracovnej dobe.
Celkovo lokalita pôsobí presvedčivo svojou pokojnou, no centrálnou polohou, dobrou dostupnosťou a všestranným využitím – ideálne predpoklady pre úspešné obchodné pôsobenie.
• Svetlé a dobre usporiadané kancelárske priestory
• Samostatný skladovací priestor v suteréne
• K dispozícii sanitárne zariadenia
• Vykurovanie prostredníctvom centrálneho plynového vykurovania
• Dvojitá garáž vrátane parkovacieho miesta pred garážou
• Klimatizácia
• Samostatný vstup
• Voliteľne je možné navyše prenajať ďalší skladovací priestor v suteréne (mesačný nájom 80,00 €)
Parametre nehnuteľnosti
| Vek | Nad 50 rokov |
|---|---|
| Číslo inzerátu | 985460 |
| Cena za jednotku | 3 € / m2 |
| Stav | Dobrý |
|---|---|
| Plocha kancelárie | 155 m² |
Čo táto nehnuteľnosť ponúka?
| Pivnica | |
| Parkovanie |
| Garáž | |
| MHD 1 minúta pešo |
V okolí nehnuteľnosti nájdete
Stále hľadáte to pravé?
Nastavte si strážneho psa. Ponuky vybrané na mieru dostanete súhrnne 1× denne e-mailom. S Premium profilom máte po ruke rovno 5 strážcov a keď sa niečo objaví, informujú vás obratom.













