Predaj domu 2+1 • 56 m² bez realitky, Dolné Sasko
V Sandhorste bol v roku 2025 postavený tento atraktívny dvojdom s dvoma vysoko kvalitnými jednotkami na vlastníckom pozemku o rozlohe približne 679 m², ktorý sa nachádza približne 900 metrov od lesa. Renomovaný developer aj všetky stavebné a remeselné firmy sú špecializované spoločnosti z regiónu. Tento bungalov má približne 56 m² obytného priestoru. Predná obytná jednotka už je predaná.
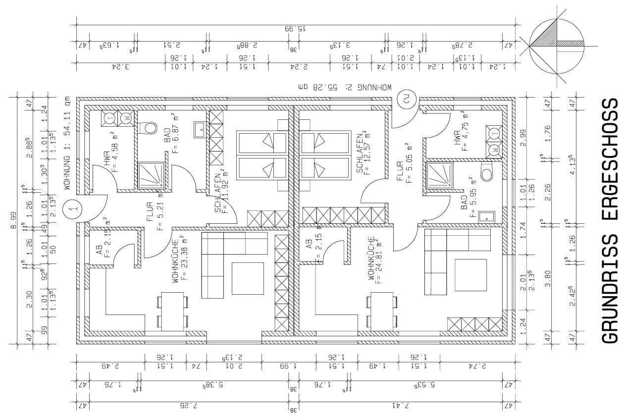
V prízemí sa nachádza priestranná, svetlom preniknutá „obytná kuchyňa“ s oknami od podlahy až po strop a priamym vstupom na terasu. Prízemie dopĺňa spálňa, kúpeľňa, komora na zásoby, práčovňa so zásuvkou pre práčku a chodba.
Kompletný rozpis priestorov si môžete pozrieť na priložených pôdorysných náčrtkoch.
Celý dom je vybavený podlahovým kúrením. Medzi ďalšie výhody patrí decentralizovaný systém vetrania a zásobovania vzduchom firmy Bosch s rekuperáciou tepla, trojnásobne izolačné plastové okná (antracitové) s elektricky ovládanými žalúziami, vzduchová tepelná čerpadlo od Bosch, satelitný príjem a domové prípojky. Všetky stropy v prízemí sú tapetované s textúrou «Rauhfaser» a natreté, pričom steny sú natreté na bielo. Medzistropie medzi nosníkmi je izolovaná a na podkroví máte ešte ďalšie možnosti prístavby. Podlaha v prízemí s chodbou a časťou „obývanie, jedáleň a kuchyňa“, komora aj spálňa budú vybavené vinylovými dizajnovými podlahovými krytinami (štandardná montáž). Kúpeľňa s prístupnou sprchou a práčovňa budú obložné. Vonkajšie úpravy vrátane dlažby chodníkov, parkovacieho miesta a terasy, ako aj úprava záhrady (zasievanie trávnika), boli prevedené nami. Vstavaná kuchyňa nie je zahrnutá v kúpnej cene, môže však byť ponúknutá ako dodatočná možnosť.
Tento úžasný dvojdom bol obložený kvalitným tehličkovým obkladom (Röben „Sheffield“) a strecha je krytá čiernymi taškami.
V exteriéri máte k dispozícii nielen vlastný záhradný pozemok, ale aj terasu a parkovacie miesto pre osobné vozidlo.
Kúpa tejto nehnuteľnosti je pre kupujúceho bezprovízná. Ponuková cena 249 000 € sa vzťahuje na jednotku č. 2 (zadná, väčší podiel záhrady, pozemok o výmere 481 m²). Predná jednotka č. 1 je už predaná.
Energetický preukaz bude záujemcovi pri prehliadke odovzdaný alebo dodaný neskôr!
Tento pozemok sa nachádza v pokojnej obytné oblasti, približne 800 metrov od závodu Enercon. Približne 900 metrov od neho sa nachádza les.
Parametre nehnuteľnosti
| Vek | Nad 50 rokov |
|---|---|
| Číslo inzerátu | 985230 |
| Úžitková plocha | 56 m² |
| Cena za jednotku | 4 446 € / m2 |
| Dispozícia | 2+1 |
|---|---|
| PENB | A - Mimoriadne úsporné |
| Plocha pozemku | 481 m² |
Čo táto nehnuteľnosť ponúka?
| Parkovanie | |
| Terasa |
| MHD 3 minúty pešo |
V okolí nehnuteľnosti nájdete
Stále hľadáte to pravé?
Nastavte si strážneho psa. Ponuky vybrané na mieru dostanete súhrnne 1× denne e-mailom. S Premium profilom máte po ruke rovno 5 strážcov a keď sa niečo objaví, informujú vás obratom.









