Prenájom nebytového priestoru • 270 m² bez realitkyWartburgstr. 5, , Durínsko
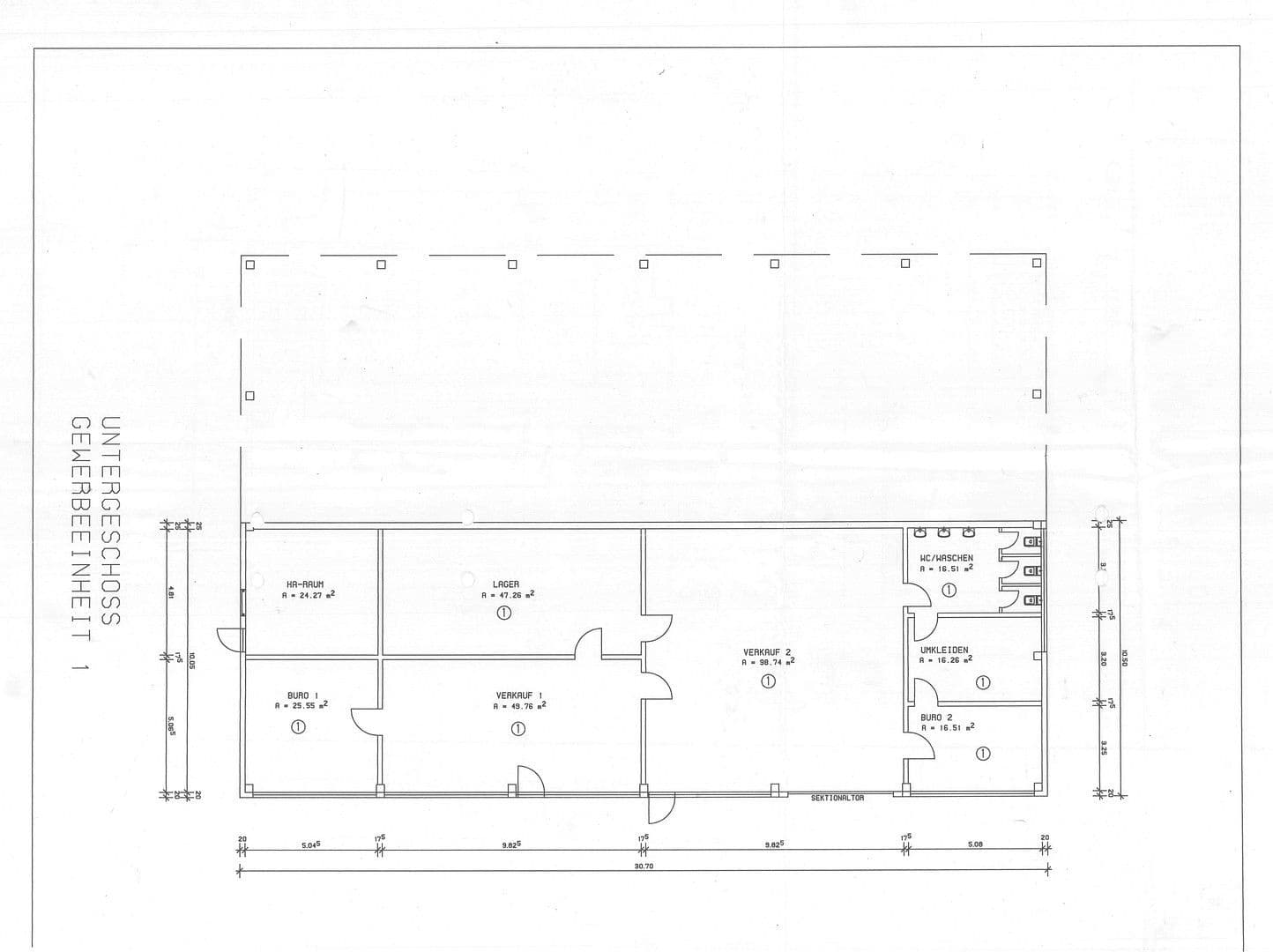
Wartburgstr. 5, , DurínskoMHD 1 minúta pešoPonúkaná obchodná jednotka sa nachádza v budovom komplexe postavenom v roku 1992, v prízemí, a disponuje približne 270 m² využiteľnej plochy. Na príslušnom pozemku o rozlohe cca 1000 m² má budúci nájomca navyše k dispozícii približne 300 m² trávnatej plochy (NIE JE ZARATANÁ V NÁJOMNOM CENE – CENA: 1,00 €/m²) a približne 300 m² spevnených parkovacích miest. Obchodná jednotka je umiestnená v prízemí a je úplne oddelená od dvoch ďalších, prenajatých obchodných jednotiek (štúdio športovej fyzioterapie + výrobca náradia), ktoré sa nachádzajú na zadnej časti budovy. Využiteľná plocha pozostáva zo 7 miestností:
1. Sanitárna miestnosť cca 16,5 m², so 3 toaletami a 3 umývadlami
2. Šatňa cca 16 m²
3. Kancelária/kuchyňa cca 16,5 m² s obkladom z dlaždíc a prípojkami pre kuchyňu
4. Výstavná/produkčná/predajná miestnosť cca 100 m² s plne zasklenou frontbou
5. Výstavná/predajná/poradcovacia miestnosť cca 50 m² s plne zasklenou frontbou
6. Sklad/produkcia cca 50 m²
7. Kancelária/predaj cca 25 m²
Približne 30 m zasklených fóni a okien poskytuje voľný výhľad na neobydlenú krajinu.
Obchodná jednotka je vzhľadom na dispozíciu, polohu a vybavenie mimoriadne všestranná. Priestory doteraz slúžili ako predajné a výstavné priestory nábytku.
Vybavenie:
Ponúkané obchodné priestory sa nachádzajú v Stedtfeld OT Eisenach/Gewerbepark. Priestory sú situované priamo pri uliciach Oberlandstr. a Wartburgstr., a preto sú veľmi centrálne. Najbližšie prípojné body diaľnice BA 4 sú Eisenach-West a Herleshausen (cca 8 minút autom). Autobusová zastávka sa nachádza priamo vedľa obchodného objektu. Úplne nová cyklotrasa (50 m vzdialená) vedie popri rieke do Eisenachu.
Podlahové krytiny sú z laminátu a dlaždíc.
Vonku sú markízy a vo vnútri žalúzie.
Kúrenie: diaľkové kúrenie
Teplá voda: prietokový ohrev alebo kotol na diaľkové kúrenie
Optické vlákno už je vedené do budovy a bude čoskoro pripojené.
Už novo inštalovaná fotovoltaická elektráreň s výkonom cca 30 kW ponúka možnosť lacnejšej energie.
Parametre nehnuteľnosti
| Vek | Nad 50 rokov |
|---|---|
| Číslo inzerátu | 985227 |
| Plocha pozemku | 1 000 m² |
| Stav | Dobrý |
|---|---|
| Plocha nebytového priestoru | 270 m² |
| Cena za jednotku | 6 € / m2 |
Čo táto nehnuteľnosť ponúka?
| MHD 1 minúta pešo |
V okolí nehnuteľnosti nájdete
Stále hľadáte to pravé?
Nastavte si strážneho psa. Ponuky vybrané na mieru dostanete súhrnne 1× denne e-mailom. S Premium profilom máte po ruke rovno 5 strážcov a keď sa niečo objaví, informujú vás obratom.



























