Predaj domu • 200 m² bez realitkyErnst-Haeckel-Straße 8, , Severné Porýnie - Westfálsko
Vitajte vo vašom novom rodinnom dome v idylickom meste Sendenhorst!
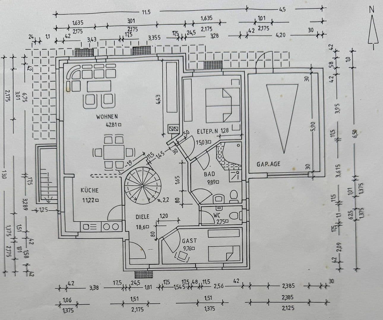
S premysleným dizajnom a veľmi priestrannou obytnou plochou cca 200 m², tento dom určite splní mnoho vašich želaní a predstáv.
Dom bol postavený na pôde s dlhodobým prenájmom (erbpacht), ročný poplatok činí 1732,-€ a zostávajúca doba je 71 rokov.
Dom vám ponúka osem miestností, vrátane piatich spální, dvoch kúpeľní so sprchou, vaňou a oknom, ako aj hostínskeho WC a sprchovacej kúpeľne v suteréne.
Vychutnajte si dodatočný priestor v suteréne, ktorý vám v troch vykurovaných miestnostiach s veľkými oknami ponúka rozmanité možnosti využitia.
Ďalej je tu veľká podkrovná miestnosť s dvoma oknami a s výškou stropu až 2,41 m, ktorá poskytuje množstvo dodatočného priestoru.
Sendenhorst sa nachádza v srdci Münsterlandu (okres Warendorf), juhovýchodne od Münsteru (cca 20 km) a východne od Drensteinfurt, charakterizovaný západnoflamskou parkovou krajinou so skvelým napojením na región prostredníctvom štátnych ciest a v blízkosti väčších miest ako Warendorf, Beckum a Ahlen, ako aj s prístupom na diaľnice A1/A2, pričom sa etabloval ako malé hospodárske centrum so zameraním na priemysel a služby.
Geografické zaradenie:
Región: Münsterland.
Okres: Warendorf.
Okolie: Juhovýchodne od Münsteru, blízko Warendorfu, Beckumu, Ahlen a Drensteinfurt.
Dopravné spojenie:
Cesty: Dostupné po štátnych cestách (L 520, L 586, L 811, L 851).
Diaľnica: A1 a A2 sú dosiahnuteľné približne vo vzdialenosti 15 km.
Koleje: Historická železničná trať do Münsteru a Beckumu, pričom sa usiluje o jej reaktiváciu pre regionálnu dopravu (momentálne iba nákladná doprava).
Letisko: Letisko Münster/Osnabrück (FMO) je vzdialené približne 40 minút.
Charakter / Okolie:
Krajina: Typická parková krajina Münsterlandu, vhodná pre cyklistické výlety (napr. 100-zámková trasa).
Městský obraz: Historický okružný park a zelené plochy tvoria jadro mesta.
Mestské časti: Spojený s časťou Albersloh, ktorá susedí priamo s Münster-Wolbeck.
Ekonomika:
Malé a stredné podniky, silné v strojárstve, plastovom priemysle a dopravnom sektore.
VEKA AG je veľkým zamestnávateľom.
Zhrnutím možno povedať, že Sendenhorst je strategicky dobre umiestnené malé mesto v Münsterlande, ktoré tvorí most medzi veľkým Münsterom a východným Porúriom a ponúka vysokú kvalitu života vďaka vidieckej štruktúre a dobrej infraštruktúre.
Vybavenie
- Nové plynové kúrenie od Bosch bolo inštalované v roku 2023
- Plastové okná s dvojsklom
- Tepelne izolovaná vonkajšia fasáda
- Všetky miestnosti s oknami s denným svetlom a elektrickými rolietami
- Jednoducho udržiavaná záhrada
- Krátke vzdialenosti do domu
Parametre nehnuteľnosti
| Vek | Nad 50 rokov |
|---|---|
| Číslo inzerátu | 985155 |
| Úžitková plocha | 200 m² |
| Celkové poschodia | 3 |
| Stav | Dobrý |
|---|---|
| PENB | A - Mimoriadne úsporné |
| Plocha pozemku | 543 m² |
| Cena za jednotku | 2 600 € / m2 |
Čo táto nehnuteľnosť ponúka?
| Pivnica | |
| Parkovanie | |
| Terasa |
| Garáž | |
| MHD 8 minút pešo |
V okolí nehnuteľnosti nájdete
Stále hľadáte to pravé?
Nastavte si strážneho psa. Ponuky vybrané na mieru dostanete súhrnne 1× denne e-mailom. S Premium profilom máte po ruke rovno 5 strážcov a keď sa niečo objaví, informujú vás obratom.




























