
Predaj domu 6+1 • 146 m² bez realitkyKlingerstraße 7b Nürnberg Worzeldorf Bayern 90455
Na predaj je udržiavaný radový dom situovaný v pokojnej obytné štvrti priamo pri Ludwig-Donau-Main-kanáli. Dom bol postavený v roku 1994 masívnou tehlovou konštrukciou a rozprestiera sa na troch podlažiach s obytnou plochou cca 146 m² na pozemku o veľkosti cca 144 m². Pozemok je orientovaný na juh a nehrá s ním priamo susedná stavba.
K dispozícii je podkrovie s rozlohou cca 50 m² a už upravené podkrovie.
Nehnuteľnosť obsahuje celkovo šesť miestností, vrátane troch spálň/detských izieb, kancelárie, izby pre hostí a veľkej obývačkovej jedálne. Radový dom je navyše vybavený vstavanou kuchynskou linkou, návštevným WC, kúpeľňou s veľkou vaňou/WC umývadlom, kúpeľňou so sprchou/WC, bidetom, umývadlom a praktickými prídavnými priestormi v suteréne. Záhradu s priestrannou terasou, ktorá láka k oddychu a vychutnávaniu slnka, dopĺňa komfort bývania.
Samostatnú garáž v blízkom garážovom dvorí je možné zakúpiť dodatočne.
Kúpna cena garáže: 15.000 €
Predaj garáže prebieha prednostne spoločne s domom.
Mestská časť Worzeldorf je obľúbenou obytnou lokalitou na juhu Norimberka.
Blízkosť južných prírodných chránených oblastí a poloha priamo pri starom Ludwigskanáli zaručujú vysokú kvalitu života.
Ulica Klingerstraße prechádza ako slepá ulica cez dopravne upokojenej obytnú štvrť, ktorá je prevažne zastavaná radovými aj rodinnými domami.
Výborné pešo dostupné spojenia zabezpečujú mestské autobusové linky 51, 52, 53 a 651, ktoré spojujú Worzeldorf spoľahlivo s centrom mesta (cca 30 min), Klinikum Süd, Kornburg a ďalšími južnými časťami mesta.
Automobilom sú diaľnice A6 a A73 vzdialené len niekoľko minút jazdy, do centra mesta je cca 15 minút.
Zároveň okolie ponúka množstvo voľnočasových a rekreačných možností, ako sú prechádzkové a cyklistické trasy v prírode.
Obchody každodenných potrieb, materské školy, školy, ako aj lekári a lekárne sú dostupné v priebehu niekoľkých minút.
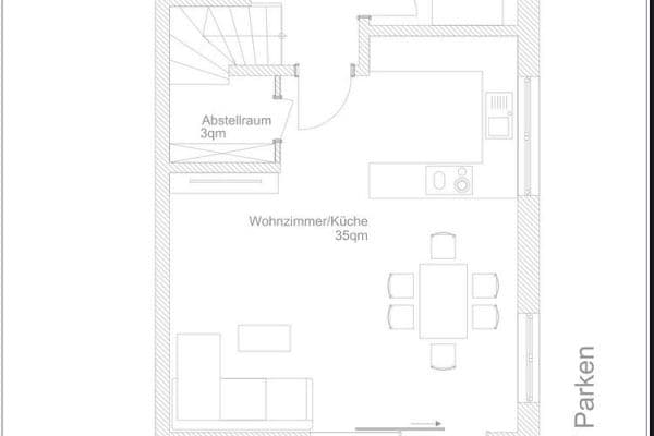
Prízemie cca 50,38 m²
- Obývanie-jedenie 34,04 m²
Švédska pec
- Kuchyňa 8,48 m²
- Chodba 3,71 m²
- Návštevné WC 1,65 m²
- Priehladová miestnosť 2,50 m²
Terasa cca 20,56 m²
- Elektrická markíza
- Grillovacia kachľa s ohniskom
Záhrada cca 48 m²
- Biohort - domček na náradie AvantGarde
- Plážová lehátko
Horné podlažie cca 50,84 m²
- Spálňa 19,00 m²
- Dieťa-1 10,02 m²
- Dieťa-2 10,01 m²
- Chodba 6,16 m²
- Kúpeľňa 5,65 m²
Vaňa/WC, 2 umývadlá
Podkrovie cca 39,79 m²
- Izba pre hostí 15,82 m²
Elektrické/solárne poháňané rolety
- Pracovňa 13,37 m²
- Chodba 6,14 m²
- Kúpeľňa 4,46 m²
Sprcha/WC/bidet, 1 umývadlo
Suterén cca 50,00 m²
- Wolf CGS-2-24/200 plynová kondenzačná jednotka
Samostatnú garáž v blízkom garážovom dvorí je možné zakúpiť dodatočne.
Kúpna cena garáže: 15.000 €
Predaj garáže prebieha prednostne spoločne s domom.
Parametre nehnuteľnosti
| Vek | Nad 50 rokov |
|---|---|
| Dispozícia | 6+1 |
| PENB | C - Hospodárne |
| Plocha pozemku | 182 m² |
| Cena za jednotku | 3 760 € / m2 |
| Stav | Dobrý |
|---|---|
| Číslo inzerátu | 984863 |
| Úžitková plocha | 146 m² |
| Celkové poschodia | 3 |
Čo táto nehnuteľnosť ponúka?
| Pivnica | |
| MHD 4 minúty pešo |
| Garáž | |
| Terasa |
V okolí nehnuteľnosti nájdete
Stále hľadáte to pravé?
Nastavte si strážneho psa. Ponuky vybrané na mieru dostanete súhrnne 1× denne e-mailom. S Premium profilom máte po ruke rovno 5 strážcov a keď sa niečo objaví, informujú vás obratom.































