Predaj domu 4+1 • 128 m² bez realitky, Sasko
, SaskoMHD 1 minúta pešo • GarážNa predaj sú dva súvislé pozemky. Na zadnom pozemku sa nachádza rodinný dom a dvojgaráž. Predný pozemok je nezastavaný a ponúka možnosť postaviť ďalší rodinný dom. Všetky prípojové náklady pre oba pozemky boli už uhradené.
Moderný a láskavo zariadený rodinný dom sa nachádza v pokojnej rezidenčnej oblasti v Radebergu. Školy, škôlky, lekári, MHD aj možnosti pre voľný čas sú pohodlne dostupné pešo. Dom bol postavený v roku 1997 v pevnej konštrukcii a odvtedy bol priebežne modernizovaný, naposledy v roku 2022 s kvalitným vonkajším natretím.
Skutočným lákadlom je priestranná terasa s elektrickou markízou, krytý bazénový priestor, ako aj wellness a fitness zóna v kúriteľnom suteréne. Solárna inštalácia, dažďový cistern a mnoho ďalších vybavení dokonale dopĺňajú túto ponuku.
Radeberg leží na severovýchod od Drážďan a ponúka vynikajúcu infraštruktúru a vysokú kvalitu života. Obchody, školy, škôlky a lekári sa nachádzajú v bezprostrednej blízkosti a sú pohodlne dostupní pešo. Pokojná lokalita spája bývanie v prírode s rýchlou dostupnosťou hlavného mesta Drážďan.
• Celkové vonkajšie natretie
• Strešná izolácia na pôdeľnej podlahe
• Radiátory v suterénnych miestnostiach
• Smart-home vybavenie pre termostaty radiátorov a podlahové kúrenie
• Elektronické ovládanie žalúzií
• Anker Pro solárny batériový systém (4,8 kW, rozšíriteľný) / solárna inštalácia
•
• Masívna konštrukcia s proton tehličkami a 4 cm vonkajšou izoláciou
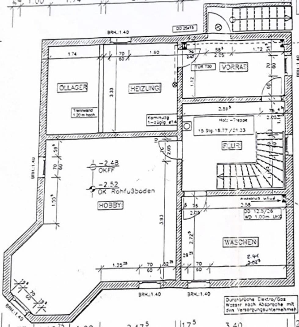
• Úplne podsuterénovaný, s možnosťou kúrenia
• Podkrovie s tepelnou izoláciou
• Rustikálne dubové vnútorné dvere
• Okna z dreva meranti s vyklápacimi lamielkami, s rolety
• Ovládanie vykurovania cez WLAN
•
• Kompletné obklady dlažbou, podlahové kúrenie (oddelené vykurovacie okruhy, ovládané cez WLAN)
• Priestranná obývacia izba s otvorenou zabudovanou kuchyňou a vyklenutým priestorom
• Kúpeľňa so sprchou a umývadlom
• Prístup na terasu cca 24 m², elektrická markíza (5 m × 3,5 m)
• Vstupné dvere s PIN kódom a ochrannou sieťou proti hmyzu
•
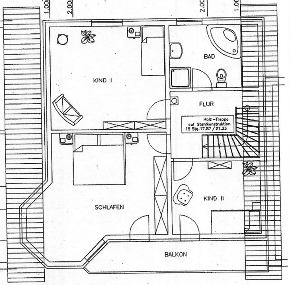
• 3 svetlé izby (laminát a parkety)
• Kúpeľňa so sprchou, vaňou, toaletou a umývadlom (dlažbou obložená)
• Balkón cca 6,70 m × 1,30 m, prístup z dvoch izieb
•
• Možnosť kúrenia, tepelnoizolačné okná, výška miestností cca 2,19 m
• Sauna a fitness zóna
• Rustikálne zariadený pivničný priestor pre oslavy
• Centrálne vykurovanie na olej (nádrž 3 750 l)
• Anker Pro solárny batériový systém (4,8 kW, rozšíriteľný)
•
• Dvojgaráž cca 6 m × 6 m
• Krytý bazén so pieskovým filtrom, solárne rohože na ohrev vody a bazénový robot
• Dažďový cistern 1 000 l s čerpadlom
• Domček pre techniku cca 2,5 m × 1,7 m
• Záhradný rybník s rybami a filtrovacím systémom
• Miesto na grilovanie s krbom a elektrickou údiacou pecou, drevený prístrešok
• Terasa z douglaska cca 6 m × 4 m, markíza (5 m × 3,5 m) plus bočné veterné markízy
• Video dohľad nad pozemkom
Táto ponuka spája upravený a láskavo zariadený rodinný dom s dodatočným stavebným pozemkom – ide o zriedkavú príležitosť, ktorá je vysoko atraktívna pre tých, ktorí potrebujú viac priestoru, ako aj pre investorov. Dom je okamžite pripravený na nasťahovanie a vďaka množstvu extra vybavení ponúka mimoriadny zážitok z bývania.
Parametre nehnuteľnosti
| Vek | Nad 50 rokov |
|---|---|
| Stav | Veľmi dobrý |
| Číslo inzerátu | 984857 |
| Úžitková plocha | 128 m² |
| Celkové poschodia | 3 |
| Dostupné od | 30. 1. 2026 |
|---|---|
| Dispozícia | 4+1 |
| PENB | D - Menej hospodárne |
| Plocha pozemku | 823 m² |
| Cena za jednotku | 3 750 € / m2 |
Čo táto nehnuteľnosť ponúka?
| Balkón | |
| Garáž | |
| Terasa |
| Pivnica | |
| MHD 1 minúta pešo |
V okolí nehnuteľnosti nájdete
Stále hľadáte to pravé?
Nastavte si strážneho psa. Ponuky vybrané na mieru dostanete súhrnne 1× denne e-mailom. S Premium profilom máte po ruke rovno 5 strážcov a keď sa niečo objaví, informujú vás obratom.




























