
Predaj domu 6+1 • 166 m² bez realitkyHamburg Eidelstedt Hamburg 22523
Hamburg Eidelstedt Hamburg 22523MHD do minúty pešo • Parkovanie • GarážTento priestranný rodinný dom s parcielou o rozlohe 1 067 m² ponúka mimoriadne veľký priestor a rôzne možnosti využitia – ideálny pre rodiny alebo viacgeneračné domácnosti. Nehnuteľnosť sa nachádza v tichej slepej uličke a očarúva príjemnou súkromnosťou a rodinne priateľským prostredím.
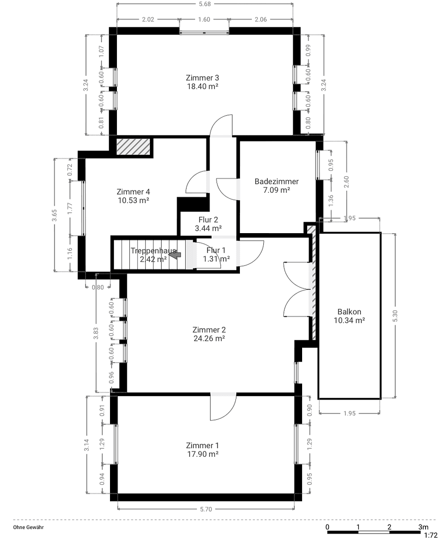
Dom má celkovo šesť izieb, ktoré je možné flexibilne využívať ako spálňu, detskú izbu, pracovňu alebo izbu pre hostí. Srdcom domu je moderná obývacia kuchyňa, ktorá so svojím otvoreným konceptom a novým krbom vytvára príjemnú atmosféru pre spoločné varenie, stolovanie a stretnutia.
Veľká, jednoducho udržiavateľná záhrada ponúka veľa priestoru na hranie, oddych a tvorivé vyžitie. Čiastočne krytá terasa a balkón rozširujú obytný priestor do exteriéru a umožňujú príjemné pobyty na čerstvom vzduchu počas celého roka.
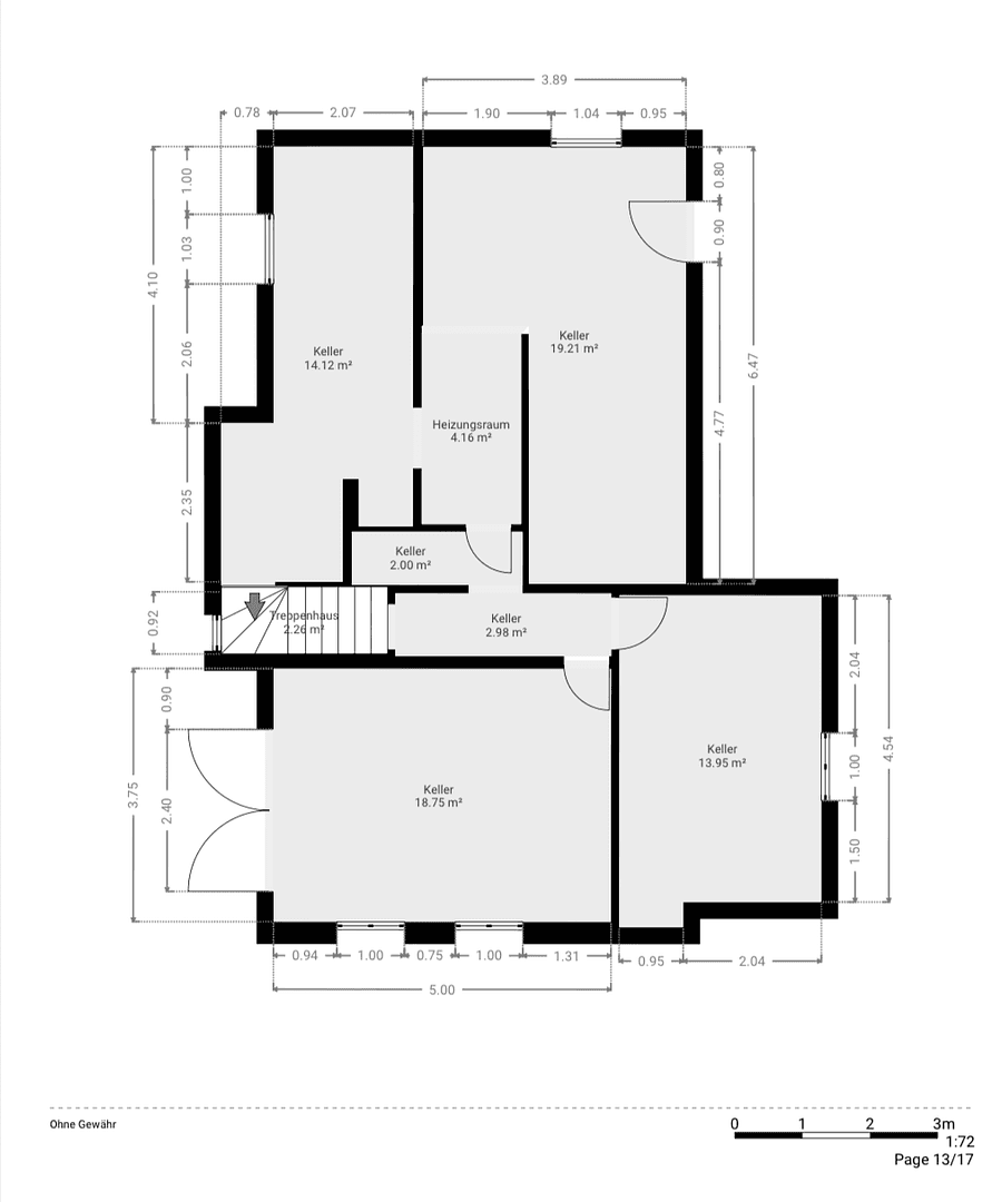
Ďalší úložný priestor ponúkajú aj pivnica a podkrovie, ktoré poskytujú rôzne možnosti úložiska alebo ďalšieho využitia. Garáž a niekoľko parkovacích miest na pozemku zabezpečujú pohodlné parkovanie – dokonca aj pre viacero vozidiel.
Dom je priamo obývateľný, avšak v niektorých častiach vyžaduje rekonštrukciu. Toto dáva kupujúcim príležitosť zrealizovať vlastné predstavy a individuálne bývanie, pričom dom možno dlhodobo prispôsobiť osobným potrebám.
Celkovo ide o nehnuteľnosť s pevnou štruktúrou, veľkým priestorom a obrovským potenciálom – ideálny domov pre rodiny, ktoré ocenia priestor, pokoj a možnosti rozvoja.
Zvlášť treba zdôrazniť, že ide o bezprovízný súkromný predaj: Kúpa prebieha bez maklérskych poplatkov, priamo od súkromnej osoby a na rovnakej úrovni – transparentne a férovo.
Rodinný dom sa nachádza v tichej a detsky priateľskej slepej uličke v žiadanej oblasti Hamburga, v štvrti Eidelstedt. Dopravne upokojujúca poloha ponúka bezpečné prostredie na hranie a vyrastanie a zároveň ohromuje výbornou každodennou infraštruktúrou.
Mnoho škôl, materských škôl a zariadení starostlivosti o deti sa nachádza v bezprostrednom okolí a je ľahko dosiahnuteľných pešo alebo na bicykli – krátke vzdialenosti, ktoré výrazne uľahčujú rodinný život. Blízke mestské centrum Eidelstedt ponúka rozmanité možnosti nákupov, zdravotníckych služieb, lekární a voľnočasových aktivít pre deti aj dospelých.
Doprava je optimálna: Diaľnice A7 a A23 sú rýchlo dostupné, čo umožňuje flexibilnú mobilitu pre dochádzajúcich do práce. Len 300 metrov od domu sa nachádza autobusová linka číslo 4, ktorá pohodlne a bez prestupu spája hamburské štvrte a centrálnu časť mesta.
Táto lokalita spája pokojné, bezpečné bývanie s mestskou blízkosťou a robí z domu ideálny domov pre rodiny, ktoré si cenia kvalitu života a dobrú dostupnosť.
Dom je momentálne ešte obývaný, ale je možné ho kedykoľvek prezrieť dohodou. Termín odovzdania je rokovateľný.
Parametre nehnuteľnosti
| Vek | Nad 50 rokov |
|---|---|
| Dispozícia | 6+1 |
| Úžitková plocha | 166 m² |
| Celkové poschodia | 2 |
| Stav | Po rekonštrukcii |
|---|---|
| Číslo inzerátu | 984574 |
| Plocha pozemku | 1 067 m² |
| Cena za jednotku | 4 789 € / m2 |
Čo táto nehnuteľnosť ponúka?
| Balkón | |
| Garáž | |
| MHD 0 minút pešo |
| Pivnica | |
| Parkovanie | |
| Terasa |
V okolí nehnuteľnosti nájdete
Stále hľadáte to pravé?
Nastavte si strážneho psa. Ponuky vybrané na mieru dostanete súhrnne 1× denne e-mailom. S Premium profilom máte po ruke rovno 5 strážcov a keď sa niečo objaví, informujú vás obratom.
























