Prenájom bytu 4+1 • 80 m² bez realitkyBahnhofstraße 42, , Bavorsko
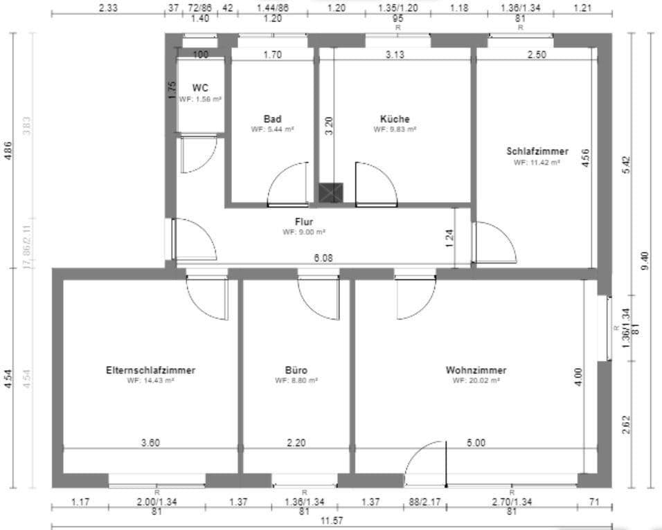
Bahnhofstraße 42, , BavorskoMHD 1 minúta pešo • ParkovanieByt sa nachádza v prízemí malej a pokojnej viacgeneračnej budovy a bol v lete 2025 čerstvo zrekonštruovaný.
Kúpeľňa bola úplne prerobená a teraz žiari moderným vzhľadom s novostavbovým charakterom.
Rovnako boli všetky okná vymenené za nové trojsklené energeticky úsporné okná, ako aj boli obnovené všetky podlahy a steny.
Bytu patria štyri krásne a svetlé izby s veľkými oknami, ako aj balkón.
Okrem toho máte k dispozícii vstavanú kuchyňu, parkovacie miesto pre vaše auto a pivnicu.
Nehnuteľnosť sa nachádza v Unterelchingen, neďaleko stanice.
Vlakom to trvá len 13 minút do centra Ulmu.
Unterelchingen leží priamo pri diaľničnom uzle A7/A8, čo vám umožňuje veľmi rýchlo cestovať autom vo všetkých smeroch.
V bezprostrednom okolí nájdete rôzne supermarkety, dve reštaurácie, pekáreň a kaviareň.
Takisto je v blízkosti niekoľko fitness centier, ako aj zelená plocha a park.
Predškolské zariadenia aj základná škola sú veľmi dobre dostupné pešo.
Ročná spotreba energie, ako aj trieda energetickej efektívnosti, sú založené na spotrebiteľských hodnotách pred rekonštrukciou a preto ešte nezohľadňujú novovstavané trojsklené energeticky úsporné okná.
Parametre nehnuteľnosti
| Vek | Nad 50 rokov |
|---|---|
| Stav | Po rekonštrukcii |
| Číslo inzerátu | 984557 |
| Úžitková plocha | 80 m² |
| Dostupné od | 1. 4. 2026 |
|---|---|
| Dispozícia | 4+1 |
| PENB | E - Nehospodárne |
| Cena za jednotku | 13 € / m2 |
Čo táto nehnuteľnosť ponúka?
| Balkón | |
| Parkovanie |
| Pivnica | |
| MHD 1 minúta pešo |
V okolí nehnuteľnosti nájdete
Stále hľadáte to pravé?
Nastavte si strážneho psa. Ponuky vybrané na mieru dostanete súhrnne 1× denne e-mailom. S Premium profilom máte po ruke rovno 5 strážcov a keď sa niečo objaví, informujú vás obratom.



















