Predaj bytu 2+1 • 53 m² bez realitkyHermann-Geib-Straße 27 Regensburg Kasernenviertel Bayern 93053
Hermann-Geib-Straße 27 Regensburg Kasernenviertel Bayern 93053MHD 1 minúta pešo • ParkovaniePredám moju spoľahlivo prenajímanú 2-izbovú byty so stupňovitým nájomným zmluvou.
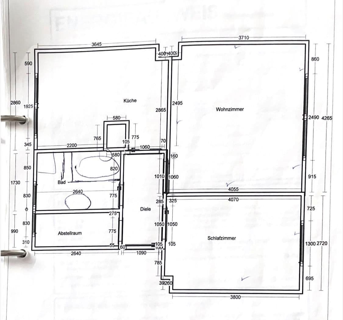
Dispozícia je optimálna pre jednotlivcov, páry či aj študentov. Byt nikdy neostal prázdny a je tak ideálne vhodný ako investícia.
Lokalita je skvelá, len 10 minút pešo k obchodnému centru, všetky nákupné možnosti v bezprostrednom okolí.
K dispozícii je priestranná kuchyňa spojená s obývacou časťou vrátane vstavaných kuchynských liniek s novými elektrospotrebičmi.
Z chodby vedú aj obývačka, spálňa a kúpeľňa s denným svetlom vrátane vane. Malá priečná miestnosť s oknom dopĺňa perfektne využitý dispozíciu.
Kúrenie je zabezpečené cez plynový ústredný kotol vrátane moderného ovládacieho panelu (inštalácia 2009).
Strecha bola nedávno nákladne zrekonštruovaná (2025).
Fasáda bude dokončená v roku 2026.
Čistý ročný nájom (kaltmiete): 7 980 €
Byt sa nachádza v ulici Hermann-Geib-Straße.
Predaj prebieha bez makléra (dopyty od maklérov nebudú zodpovedané).
Súkromný predaj, prípadné omyly vyhradzujeme.
Lokalita je skvelá, všetko, čo potrebujete na život, je v tesnej blízkosti, obchodné centrum je dosiahnuteľné pešo za 10 minút.
Byt bol v roku 2009 kompletne zrekonštruovaný, vrátane inštalácie plynového ústredného kotla s moderným ovládaním. Vstavaná kuchyňa je zahrnutá v kúpnej cene.
Miestne parkovacie miesto je už niekoľko rokov navyše prenajímané a môže byť prevzaté.
Parametre nehnuteľnosti
| Vek | Nad 50 rokov |
|---|---|
| Stav | Dobrý |
| Poschodie | 1. poschodie z 5 |
| PENB | D - Menej hospodárne |
| Cena za jednotku | 4 245 € / m2 |
| Dostupné od | 28. 1. 2026 |
|---|---|
| Dispozícia | 2+1 |
| Číslo inzerátu | 984552 |
| Úžitková plocha | 53 m² |
Čo táto nehnuteľnosť ponúka?
| Pivnica | |
| MHD 1 minúta pešo |
| Parkovanie |
V okolí nehnuteľnosti nájdete
Stále hľadáte to pravé?
Nastavte si strážneho psa. Ponuky vybrané na mieru dostanete súhrnne 1× denne e-mailom. S Premium profilom máte po ruke rovno 5 strážcov a keď sa niečo objaví, informujú vás obratom.















