Prenájom bytu 3+1 • 77 m² bez realitkyAm Fuchsberg 10b Magdeburg Leipziger Straße Sachsen-Anhalt 39112
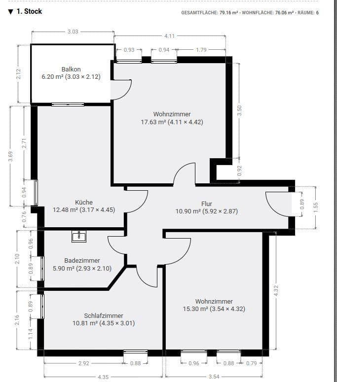
Am Fuchsberg 10b Magdeburg Leipziger Straße Sachsen-Anhalt 39112MHD 4 minúty pešo • Výťah • GarážNa približne 76 m² ponúka byt svetlom naplnené miestnosti.
Byt pozostáva z 3 pekných izieb, kúpeľne, ako aj samostatnej (veľkej) kuchyne a chodby.
WC je vybavené vaňou.
Iné zvýraznené výhody
Mrazo odolné a bezpečné parkovanie vďaka vlastnému miestu v podzemnej garáži:
Flexibilita pre vodičov bez stresu hľadania parkovacieho miesta.
Dodatočný parkovateľný priestor vďaka priestrannému úložnému priestoru:
Dostatok miesta pre všetko, čo máte radi, bez zahltenia obytných priestorov.
Bezprostredná blízkosť MHD s električkovou a autobusovou dopravou:
Perfektné spojenie, ktoré vás rýchlo a pohodlne dovezie do mesta a ďalej.
Obchodné možnosti a reštaurácie v bezprostrednej blízkosti:
Aldi, Edeka a mnoho reštaurácií zaručujú krátke trasy a kulinársku rozmanitosť.
Perfektné spojenie na mestskú diaľnicu:
Ideálne pre dochádzajúcich alebo víkendové výlety – vjazd/výjazd je len pár križovatiek ďalej (blízko, ale bez hlukového rušenia).
Energeticky efektívna budova:
Energetická trieda C+ šetrí prevádzkové náklady a chráni životné prostredie – moderné bývanie so zodpovednosťou.
Zaujali sme vás? Kontaktujte nás ešte dnes a zabezpečte si termín obhliadky skôr, než bude tento byt opäť obsadený!
V jednej z najkrajších obytných lokalít mesta, blízko centra a napriek tomu pokojným, sa nachádza tento svetlý 3-izbový byt.
Budova bola postavená v roku 1996 a disponuje osobným výťahom, ktorý zabezpečuje prístup vhodný pre starších ľudí a bezbariérové bývanie.
Príjemnú kvalitu bývania pocítite už pri vstupe do bytu.
- Osobný výťah
- WC s vaňou
- Laminátová podlaha
- Podzemná garáž
Svetlom naplnený byt:
Veľké okná zaručujú svetlé, priateľské miestnosti a vytvárajú teplú, príjemnú atmosféru, ktorá vás okamžite príjemne pohladí.
Kvalitná laminátová podlaha v optike dubového dreva:
Štýlová podlaha dodáva bytu moderný a útulný charakter – je robustná a zároveň jednoduchá na údržbu.
Novo inštalované dvere v bielej farbe:
Čerstvé a moderné – malý, ale vkusný detail, ktorý dopĺňa celkový dojem.
Rôzne zásuvky v každej miestnosti:
Viac zásuviek v každej miestnosti pre maximálnu flexibilitu – zabudnite na predlžovacie káble, ideálne pre domácnosti s modernou technikou a viacerými elektronickými zariadeniami.
Novo natreté radiátory v celom byte:
Nový vzhľad a optimálne rozloženie tepla pre útulnú atmosféru v každom ročnom období.
Zavesené WC:
Moderný vzhľad v kombinácii s ľahkou údržbou – hygienické a praktické.
Parametre nehnuteľnosti
| Vek | Nad 50 rokov |
|---|---|
| Stav | Po rekonštrukcii |
| Poschodie | 1. poschodie z 4 |
| PENB | C - Hospodárne |
| Cena za jednotku | 7 € / m2 |
| Dostupné od | 28. 1. 2026 |
|---|---|
| Dispozícia | 3+1 |
| Číslo inzerátu | 984525 |
| Úžitková plocha | 77 m² |
Čo táto nehnuteľnosť ponúka?
| Balkón | |
| Pivnica | |
| Výťah |
| Bezbariérový prístup | |
| Garáž | |
| MHD 4 minúty pešo |
V okolí nehnuteľnosti nájdete
Stále hľadáte to pravé?
Nastavte si strážneho psa. Ponuky vybrané na mieru dostanete súhrnne 1× denne e-mailom. S Premium profilom máte po ruke rovno 5 strážcov a keď sa niečo objaví, informujú vás obratom.
















