
Predaj domu 4+1 • 130 m² bez realitkyEielkampsweg 27, , Šlezvicko-Holštajnsko
Eielkampsweg 27, , Šlezvicko-HolštajnskoMHD 5minút pešo • ParkovanieRodinný dom postavený v roku 2000 konvenčnou stavebnou metódou má v prízemí priestrannú obývaciu/jedálenskú miestnosť (42 m²), kuchyňu (13 m²) s prístupom na terasu, ako aj hosťovské WC a veľmi priestranný vstupný priestor. Obývacia izba je vybavená parketovou podlahou, zatiaľ čo všetky ostatné miestnosti v prízemí sú obložené dlažbou.
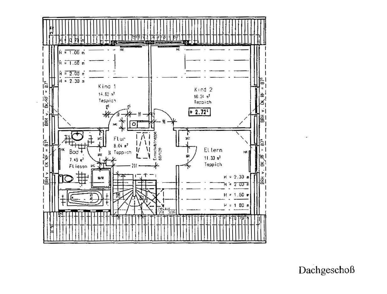
Na poschodí sa nachádzajú tri priestranné izby a kompletne vybavená kúpeľňa s dvoma umývadlami, sprchovacím kútom a vaňou.
Veľká väčšina okien je vybavená rolietami; okná s podlahovou výškou v prízemí sú už predinštalované s priestormi pre rolety.
V suteréne sú všetky miestnosti obložené dlažbou; v najväčšej suterénnej miestnosti (hobby miestnosť) je navyše umiestnený radiátor.
Ďalšie úložné priestory sa nachádzajú na podkroví domu, ku ktorému je prístup prostredníctvom vysúvacej schodíka.
Kúrenie bolo v októbri 2021 obnovené. Jedná sa o moderné kondenzačné kúrenie značky Junkers.
Momentálne je k dispozícii jedno parkovacie miesto. Možnosť postavenia druhého parkovacieho miesta a prístrešku na auto je možná.
Ulica Eielkampsweg je pokojná prístupová ulica. Objekt sa nachádza v druhej rade. Záhrada je orientovaná na juh.
Halstenbek má dva diaľničné uzly na A23 a je vzdialený 17 km od centra Hamburgu. Mesto disponuje veľmi dobrou infraštruktúrou – má niekoľko materských škôl, všetky základné a stredné školy a obchody pokrývajúce bežné denné potreby.
Objekt sa nachádza v okruhu 750 metrov od stanice S-Bahn Halstenbek (linka S3).
Parametre nehnuteľnosti
| Vek | Nad 50 rokov |
|---|---|
| Stav | Dobrý |
| Číslo inzerátu | 984511 |
| Úžitková plocha | 130 m² |
| Celkové poschodia | 2 |
| Dostupné od | 28. 1. 2026 |
|---|---|
| Dispozícia | 4+1 |
| PENB | C - Hospodárne |
| Plocha pozemku | 517 m² |
| Cena za jednotku | 5 685 € / m2 |
Čo táto nehnuteľnosť ponúka?
| Pivnica | |
| MHD 5 minút pešo |
| Parkovanie | |
| Terasa |
V okolí nehnuteľnosti nájdete
Stále hľadáte to pravé?
Nastavte si strážneho psa. Ponuky vybrané na mieru dostanete súhrnne 1× denne e-mailom. S Premium profilom máte po ruke rovno 5 strážcov a keď sa niečo objaví, informujú vás obratom.





























