Predaj bytu 3+1 • 90 m² bez realitkyStrahlsunder Ring 8 Wolfsburg Wolfsburg Niedersachsen 38444
Byt je momentálne v rekonštrukcii – fotografie ukazujú neobnovený byt.
Rekonštrukcia:
Budú obnovené steny, podlahové krytiny a kúpeľňa.
Svetlý byt sa nachádza v 5. poschodí.
Dom má 6 poschodí a obsahuje 36 jednotiek, pričom je udržiavaný.
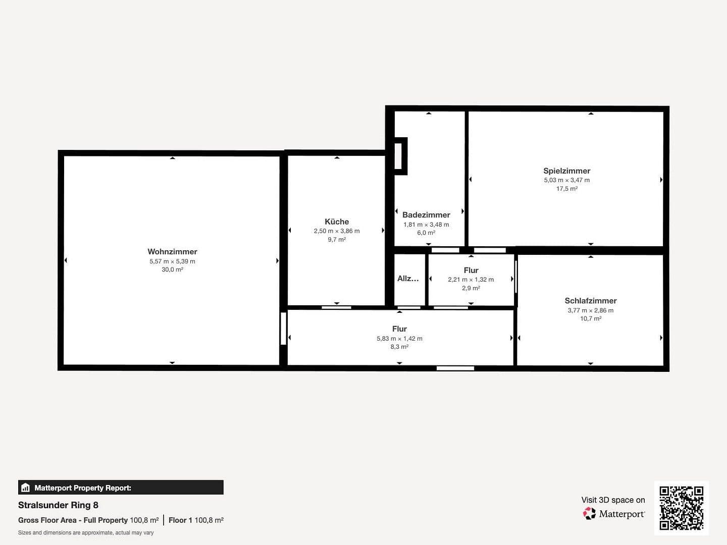
Priestranný obývací priestor ponúka prístup na slnečný balkón.
Okrem toho sú k dispozícii dve ďalšie miestnosti, ktoré môžu byť využité ako spálňa alebo pracovňa.
Modernizovaná kúpeľňa je vybavená podľa súčasných štandardov.
Kuchyňa ponúka dostatok priestoru na vlastnú úpravu.
Nehnuteľnosť sa nachádza na Stralsunder Ring v mestskej časti Westhagen mesta Wolfsburg. Obytná štvrť je charakterizovaná viacposchodovou výstavbou, priestrannými zelenými plochami a rozvinutou infraštruktúrou.
Obchody denného využitia, školy, materské školy, lekári a ďalšie služby sú dostupné pešo alebo v krátkej vzdialenosti. Aj dostupnosť verejnej dopravy je v bezprostrednej blízkosti, čo umožňuje dobré spojenie do centra Wolfsburgu a do ďalších častí mesta.
Westhagen ponúka praktickú lokalitu s krátkymi cestami, vysokým komfortom každodenného života a solídnou dopravnou dostupnosťou – atraktívnu ako pre bývateľov, tak aj pre investorov.
Impresum:
Bongart Immobilien
Schiffbauerdamm 40
Kancelária 5405
10117 Berlín
+49 (0) 177 412 22 68
Vlastník: Maximilian Bongart
DIČ: DE271204680
Povolenie podľa §34c GewO bolo udelené:
Okresný úrad Mitte v Berlíne dňa 03.03.2009
Príslušný dozorný orgán:
Okresný úrad Mitte v Berlíne, odbor hospodárstva,
Úrad pre nehnuteľnosti a mestský úrad,
Karl-Marx-Allee 31
10178 Berlín
Parametre nehnuteľnosti
| Vek | Nad 50 rokov |
|---|---|
| Poschodie | 5. poschodie z 6 |
| PENB | C - Hospodárne |
| Cena za jednotku | 1 644 € / m2 |
| Dispozícia | 3+1 |
|---|---|
| Číslo inzerátu | 984224 |
| Úžitková plocha | 90 m² |
Čo táto nehnuteľnosť ponúka?
| Výťah |
| MHD 2 minúty pešo |
V okolí nehnuteľnosti nájdete
Stále hľadáte to pravé?
Nastavte si strážneho psa. Ponuky vybrané na mieru dostanete súhrnne 1× denne e-mailom. S Premium profilom máte po ruke rovno 5 strážcov a keď sa niečo objaví, informujú vás obratom.






