Predaj domu • 443 m² bez realitkyOttobeurer Straße 17, , Bavorsko
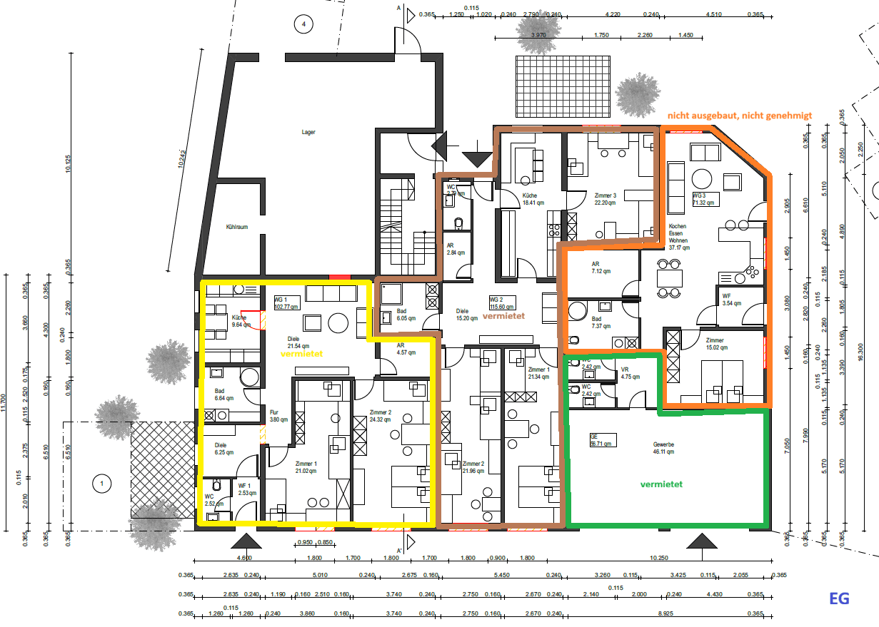
Ottobeurer Straße 17, , BavorskoMHD 2 minúty pešoTento viacfamilijný dom (pravdepodobne postavený v roku 1900; prístavba 1990) s piatimi obytnými jednotkami a jednou prenajatou komerčnou jednotkou predstavuje atraktívnu investičnú príležitosť s plynulým cashflow a značným rozvojovým potenciálom.
V súčasnosti sú štyri byty prenajaté, jedna jednotka je neobsadená (z ktorej jeden bude k dispozícii od februára). Súčasný ročný nájom bez zahrňujúceho vykurovanie dosahuje približne 43 000 € a už poskytuje solídnu základnú návratnosť.
Hlavným lákadlom pre investorov je neviazaný odhad rozšírenia o približne 350 m², ktorý – samozrejme podliehajúci schváleniu príslušnými orgánmi – umožňuje vytvorenie ďalších obytných jednotiek a tak značné zvýšenie nájomných príjmov a hodnoty nehnuteľnosti.
Nemovitost je ideálna nielen pre stratégie typu buy-and-hold so zameraním na dlhodobý cashflow, ale aj pre koncepcie fix-and-flip s jasnou exit stratégiou.
Cielenými rekonštrukčnými a optimalizačnými opatreniami je možné existujúci ziskový potenciál krátkodobo zvýšiť a dlhodobo rozvíjať. Stav stavby je celkovo solídny, čiastočne je možný okamžitý nástup do bývania, avšak vyžaduje si rekonštrukciu, ktorá aktívnym investorom otvára priestor na tvorbu hodnoty.
Okna sú čiastočne realizované z plastu s dvojitým zasklením, čiastočne ako drevené okná. Vykurovací systém bol obnovený v roku 2018 a tvorí dobrý technický základ.
Zobrazené pôdorysy na obrázkoch slúžia len ako nezáväzný plán.
Celkovo ide o rozvojový investičný objekt s pravidelnými príjmami, možnosťou okamžitej optimalizácie neobsadených priestorov a značným rozšírením – ideálny pre investorov s víziou a dlhodobým výhľadom.
Nehnuteľnosť sa nachádza v centrálnej časti obce Markt Rettenbach (87733). Všetky zariadenia každodenných potrieb ako pekáreň, mäsiar, obchod s potravinami, lekár, banka, materská škola a autobusová zastávka sú pohodlne dostupné pešo.
Zároveň ste v priebehu niekoľkých minút v prírode a môžete si vychutnať pokojné, vidiecke prostredie Allgäu.
Blízkosť k Ottobeuren a poloha medzi Kempten, Memmingen a Mindelheim robí lokalitu mimoriadne atraktívnou. Diaľnica A96 je rýchlo dostupná a zaisťuje tak dobré regionálne i nadregionálne spojenie.
Dom je orientovaný na juh vďaka balkónom, čo zaručuje veľa slnečného svetla a príjemnú obytnú atmosféru.
Prosím, berte na vedomie, že doba odpovede môže trvať približne 2 dni. Radi Vám zároveň dohodneme termín prehliadky.
Parametre nehnuteľnosti
| Vek | Nad 50 rokov |
|---|---|
| Stav | Pred rekonštrukciou |
| PENB | F - veľmi nehospodárne |
| Plocha pozemku | 1 079 m² |
| Dostupné od | 27. 1. 2026 |
|---|---|
| Číslo inzerátu | 984212 |
| Úžitková plocha | 443 m² |
| Cena za jednotku | 1 916 € / m2 |
Čo táto nehnuteľnosť ponúka?
| Balkón | |
| MHD 2 minúty pešo |
| Pivnica | |
| Terasa |
V okolí nehnuteľnosti nájdete
Stále hľadáte to pravé?
Nastavte si strážneho psa. Ponuky vybrané na mieru dostanete súhrnne 1× denne e-mailom. S Premium profilom máte po ruke rovno 5 strážcov a keď sa niečo objaví, informujú vás obratom.





































