Prenájom bytu 4+1 • 66 m² bez realitkyBerliner Straße 59, , Severné Porýnie - Westfálsko
Berliner Straße 59, , Severné Porýnie - WestfálskoMHD 8minút pešo • Výťah • ParkovanieTento štýlový byt sa nachádza v prízemí viacrodinného domu s 6 obytnými jednotkami v Ibbenbüren. Viacrodinný dom je novostavba, starostlivo zariadená. Tu sa spája najmodernejší komfort bývania s kvalitou života atraktívneho mesta.
Byt sa nachádza v mestskej časti Püsselbüren, ktorá zaujme svojou dokonalou dostupnosťou do centra Ibbenbüren, pričom si uchováva vidiecku atmosféru.
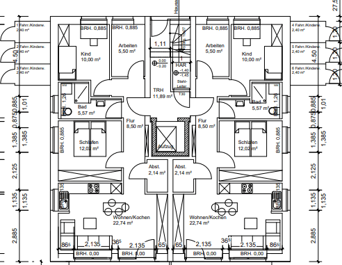
Byt s približne 67,00 m² obytného priestoru nenecháva nič na túžbu. Z chodby vedú 4 obytné miestnosti, medzi ktoré patria dve približne rovnako veľké spálne, pracovňa a veľká, svetlom naplnená obývacia izba, kde sú spojené kuchyňa a obývacia časť. V obývacej časti sa nachádza vysoko kvalitná vstavaná kuchyňa, ktorá už obsahuje všetky elektrospotrebiče. Táto kuchyňa je prenajímaná za 50 € mesačne. Ďalšie dvere vedú do modernej kúpeľne s denným svetlom a prístupnou sprchou. Navyše vám kompaktná skladacia miestnosť poskytne dostatočný úložný priestor.
Vďaka peknému výhľadu zo sedačky vzniká útulná atmosféra, v ktorej sa hneď budete cítiť ako doma.
Krásny byt má navyše aj veľkú terasu s ideálnou juhozápadnou orientáciou, ku ktorej sa dostanete priamo z obývacej izby.
Vďaka použitým vysoko kvalitným materiálom vznikla kvalita bývania, ktorá spĺňa všetky požiadavky na moderné bývanie.
A to najlepšie: Do všetkých poschodí domu sa dostanete bez schodov, pretože sme pre výnimočný luxus zariadili aj výťah.
O svoje auto sa nemusíte ani starať. Parkovacie miesto je prenajímané za 20 € mesačne.
Tešíme sa na obhliadku s vami!
Parametre nehnuteľnosti
| Vek | Nad 50 rokov |
|---|---|
| Stav | Veľmi dobrý |
| Číslo inzerátu | 984188 |
| Úžitková plocha | 66 m² |
| Dostupné od | 1. 2. 2026 |
|---|---|
| Dispozícia | 4+1 |
| PENB | A - Mimoriadne úsporné |
| Cena za jednotku | 13 € / m2 |
Čo táto nehnuteľnosť ponúka?
| Balkón | |
| Výťah | |
| MHD 8 minút pešo |
| Bezbariérový prístup | |
| Parkovanie |
V okolí nehnuteľnosti nájdete
Stále hľadáte to pravé?
Nastavte si strážneho psa. Ponuky vybrané na mieru dostanete súhrnne 1× denne e-mailom. S Premium profilom máte po ruke rovno 5 strážcov a keď sa niečo objaví, informujú vás obratom.






