
Prenájom bytu 2+1 • 41 m² bez realitky, Hesensko
, HesenskoMHD 7minút automKrásny starý dom bol v roku 2025 zrekonštruovaný. Nové centrálny kúrenie poháňa vzduchové tepelné čerpadlo (všetky radiátory boli vymenené). Teplá voda je zabezpečená pomocou prietokového ohrievača (nie je zahrnutá v prevádzkových nákladoch). Pôvabný dvor a záhrada.
Pokojná jednosmerná ulica. Pešo sa dostanete za 3 minúty na Kirdorfer Feld so svojimi ovocnými sadmi a chránenou prírodnou a krajinnou oblasťou pri úpätí Taunusu. O 2 minúty (za roh) je autobusová zastávka linky 3 do Kurhausu a na S-Bahn stanicu Bad Homburg.
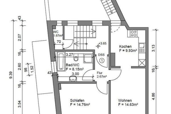
Byt má premyslené usporiadanie, je svetlý a čerstvo zrekonštruovaný. Všetky izby sú prístupné z chodby. Má tiež malú úložnú miestnosť. V suteréne sa nachádza samostatné pripojenie pre práčku určené pre byt. Prostredníctvom skladacích schodíkov v stropnej konštrukcii chodby je prístup k nevyhrievanému podkrovi, ktorý môžu výlučne využívať nájomníci z najvyššieho poschodia. Žiadosť o pripojenie optickým vláknom bola podaná.
Parametre nehnuteľnosti
| Vek | Nad 50 rokov |
|---|---|
| Stav | Po rekonštrukcii |
| Poschodie | 2. poschodie z 1 |
| PENB | E - Nehospodárne |
| Cena za jednotku | 17 € / m2 |
| Dostupné od | 23. 1. 2026 |
|---|---|
| Dispozícia | 2+1 |
| Číslo inzerátu | 984040 |
| Úžitková plocha | 41 m² |
Čo táto nehnuteľnosť ponúka?
| Pivnica |
| MHD 7 minút autom |
V okolí nehnuteľnosti nájdete
Stále hľadáte to pravé?
Nastavte si strážneho psa. Ponuky vybrané na mieru dostanete súhrnne 1× denne e-mailom. S Premium profilom máte po ruke rovno 5 strážcov a keď sa niečo objaví, informujú vás obratom.
























