
Predaj bytu 3+1 • 58 m² bez realitkyEinbecker Straße 20 Bremen Hemelingen Bremen 28207
Einbecker Straße 20 Bremen Hemelingen Bremen 28207MHD 3 minúty pešoTáto vysoko kvalitne zrekonštruovaná 3-izbová byt sa nachádza v podkroví pokojného 3-rodinného domu v prednej časti Hastedtu a predáva sa súkromne, bez makléra.
Byt sa odovzdáva voľne.
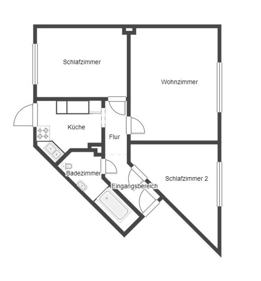
Byt s obytnou plochou približne 58 m² pozostáva z troch izieb, kuchyne a kúpeľne. Všetky miestnosti sú prístupné z chodby.
K dispozícii je pivničná miestnosť.
Práčku je možné pripojiť v priestrannej práčovni.
Viacrodinný dom sa nachádza na Einbecker Straße v Bremene-Hastedt, neďaleko Osterdeichu.
Ulica je známa svojim pokojom, s množstvom jednosmerných ulíc a vysokou kvalitou bývania.
Lekári, lekárne, prvotriedne nákupné možnosti, školy ako aj útulné kaviarne a reštaurácie sú v bezprostrednej blízkosti.
Vďaka vynikajúcej dostupnosti verejnej dopravy je centrum Bremien rýchlo a jednoducho dostupné.
Možnosti relaxácie a voľnočasových aktivít sú neskutočne bohaté.
Všetky potreby každodenného života sú priamo v okolí.
Čo sa týka vysokej kvality vybavenia a komplexných rekonštrukčných prác, chcem upozorniť na nasledovné:
- Nová elektrika
- Parkety z masívneho dreva
- Nová kuchyňa a nová kúpeľňa
- Vlastná pivnica
Na tento rodinný dom sa vzťahuje záloha na údržbu vo výške 10 093,71 € (stav k 31.12.2023).
Parametre nehnuteľnosti
| Vek | Nad 50 rokov |
|---|---|
| Stav | Po rekonštrukcii |
| Poschodie | 2. poschodie |
| PENB | F - veľmi nehospodárne |
| Cena za jednotku | 3 431 € / m2 |
| Dostupné od | 29. 1. 2026 |
|---|---|
| Dispozícia | 3+1 |
| Číslo inzerátu | 983942 |
| Úžitková plocha | 58 m² |
Čo táto nehnuteľnosť ponúka?
| MHD 3 minúty pešo |
V okolí nehnuteľnosti nájdete
Stále hľadáte to pravé?
Nastavte si strážneho psa. Ponuky vybrané na mieru dostanete súhrnne 1× denne e-mailom. S Premium profilom máte po ruke rovno 5 strážcov a keď sa niečo objaví, informujú vás obratom.











