Prenájom bytu 3+1 • 96 m² bez realitkyMainzer Straße 7, , Hesensko
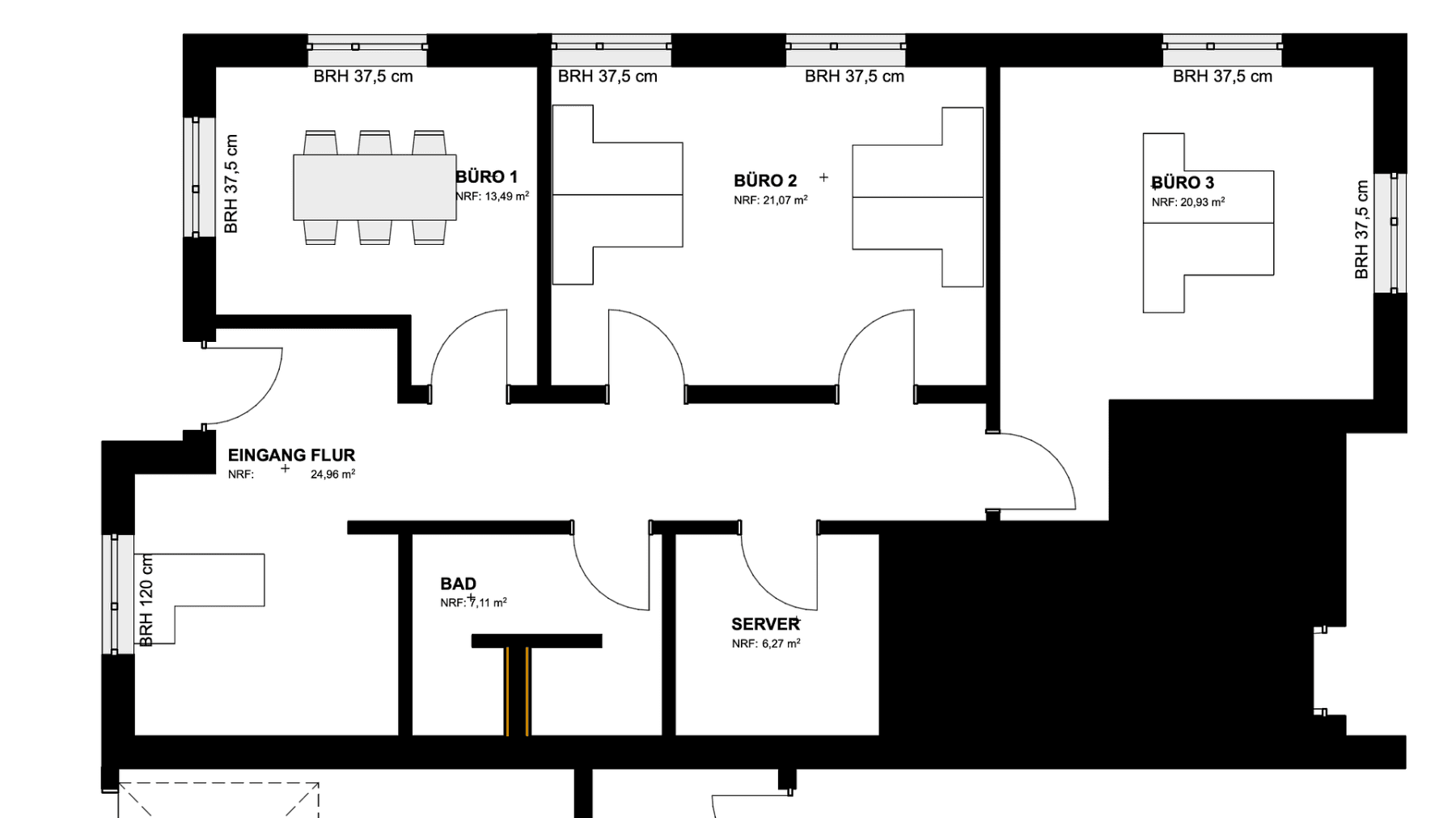
Mainzer Straße 7, , HesenskoMHD 4 minúty pešo • Parkovanie • GarážNa prenájom sú k dispozícii kvalitné, všestranne využiteľné priestory s obytnou alebo užitkovou plochou cca 94 m² v mestskej časti Langendernbach. Jednotka je variabilne využiteľná a je ideálna ako obytné, kancelárske alebo ordinácia priestory.
Hlavné prednosti nehnuteľnosti:
- Novostavba – moderné, svetlé priestory
- Kuchynská linka už zaradená
- Vynikajúca viditeľnosť so skvelou dostupnosťou vďaka priamemu umiestneniu pri federálnej ceste B54
- Prístup z rovnej úrovne – bezbariérový a komfortný
- Kvalitná vinylová podlaha vo všetkých miestnostiach
- Sieťové prípojky vo všetkých miestnostiach pre optimálne technické vybavenie
Radi vám poskytneme ďalšie informácie alebo dohodneme termín prehliadky.
Budova sa nachádza v mestskej časti Langendernbach v obci Dornburg. Langendernbach ponúka pokojné, avšak zároveň výborne dopravne napojené prostredie a je obzvlášť atraktívny vzhľadom na svoju blízkosť k dôležitým dopravným ťahom.
Nehnuteľnosť sa nachádza priamo pri federálnej ceste B54, ktorá umožňuje rýchle spojenie smerom na Limburg, Rennerod a s okolnými obcami. Prístup na diaľnicu A3 (Köln–Frankfurt) je dostupný v krátkej jazdnej vzdialenosti, čím sú aj medziregiónové ciele vynikajúco napojené.
- Novostavba – moderné, svetlé priestory
- Kuchynská linka už zaradená
- Prístup z rovnej úrovne – bezbariérový a komfortný
- Kvalitná vinylová podlaha vo všetkých miestnostiach
- Sieťové prípojky vo všetkých miestnostiach pre optimálne technické vybavenie
Parametre nehnuteľnosti
| Vek | Nad 50 rokov |
|---|---|
| Stav | Novostavba |
| Číslo inzerátu | 983540 |
| Úžitková plocha | 96 m² |
| Dostupné od | 23. 1. 2026 |
|---|---|
| Dispozícia | 3+1 |
| PENB | A - Mimoriadne úsporné |
| Cena za jednotku | 11 € / m2 |
Čo táto nehnuteľnosť ponúka?
| Bezbariérový prístup | |
| Parkovanie |
| Garáž | |
| MHD 4 minúty pešo |
V okolí nehnuteľnosti nájdete
Stále hľadáte to pravé?
Nastavte si strážneho psa. Ponuky vybrané na mieru dostanete súhrnne 1× denne e-mailom. S Premium profilom máte po ruke rovno 5 strážcov a keď sa niečo objaví, informujú vás obratom.








